Connect

11162 W Mesa Run, Littleton, CO – $1,275,000

  • 3 Beds
  • 4 Baths
  • 4,292 Sqft
  • .43 Acres
  • 3 Beds
  • 4 Baths
  • 4,292 Sqft
  • .43 Acres

New Search X

11162 W Mesa Run

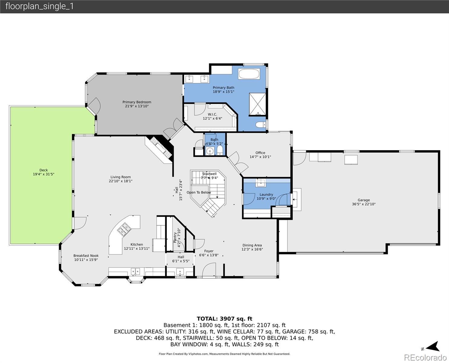
This gorgeous custom home in the foothills of Roxborough Park offers sweeping views of Chatfield Lake, Downtown Denver, and the surrounding mountains. Located in a gated community known for its dramatic red rock formations, scenic hiking trails, and proximity to Arrowhead Golf Course and Ravenna Country Club, this home provides an exceptional blend of natural beauty and luxury living. Inside, enjoy numerous updates, including fresh interior paint throughout and a stunning newly remodeled primary suite bathroom with a freestanding tub, oversized glass-enclosed shower, and elegant designer finishes. Step into an open floor plan with high ceilings and a warm, inviting great room with a gas fireplace. The formal dining room is perfect for entertaining, while the gourmet kitchen features hardwood flooring, 42” cabinets, granite countertops, a tile backsplash, a large center island with a 5-burner gas cooktop, double ovens, pendant lighting, a walk-in pantry, a butler’s pantry with sink, and a bright breakfast nook with foothill views. Enjoy Colorado living on the expansive composite deck overlooking the foothills, Chatfield Lake, and the Denver skyline, or relax on the private patio off the main-floor study with French doors and a built-in outdoor table—ideal for morning coffee. The walkout basement is perfect for entertaining, offering a spacious family room with a gas fireplace, a wet bar with a refrigerator, and a dedicated wine tasting room with a wine cellar. The lower level also includes a large office with custom built-ins, two bedrooms with walk-in closets connected by a jack-and-jill bathroom, and an elevated patio. Additional highlights include two furnaces and two hot water heaters. Don’t miss this exceptional home in an incredible location surrounded by breathtaking natural beauty.

Listing Office: Luxe Haven Realty

Essential Information

  • MLS® #8414239
  • Price$1,275,000
  • Bedrooms3
  • Bathrooms4.00
  • Full Baths1
  • Half Baths2
  • Square Footage4,292
  • Acres0.43
  • Year Built2003
  • TypeResidential
  • Sub-TypeSingle Family Residence
  • StyleTraditional
  • StatusPending

Community Information

  • Address11162 W Mesa Run
  • SubdivisionRoxborough Park
  • CityLittleton
  • CountyDouglas
  • StateCO
  • Zip Code80125

Amenities

  • Parking Spaces3
  • # of Garages3

Amenities

Clubhouse, Garden Area, Gated, Park, Playground, Security, Trail(s)

Utilities

Cable Available, Electricity Available, Natural Gas Available

View

City, Golf Course, Lake, Mountain(s), Water

Interior

  • HeatingForced Air
  • CoolingCentral Air
  • FireplaceYes
  • # of Fireplaces2
  • StoriesOne

Interior Features

Breakfast Bar, Built-in Features, Ceiling Fan(s), Eat-in Kitchen, Five Piece Bath, Granite Counters, High Ceilings, High Speed Internet, Jack & Jill Bathroom, Kitchen Island, Open Floorplan, Pantry, Primary Suite, Quartz Counters, Smoke Free, Walk-In Closet(s), Wet Bar

Appliances

Bar Fridge, Cooktop, Dishwasher, Double Oven, Microwave, Refrigerator

Fireplaces

Basement, Family Room, Gas, Living Room

Exterior

  • Exterior FeaturesBalcony, Garden
  • RoofConcrete

Lot Description

Corner Lot, Cul-De-Sac, Foothills, Landscaped

Windows

Bay Window(s), Window Coverings

School Information

  • DistrictDouglas RE-1
  • ElementaryRoxborough
  • MiddleRanch View
  • HighThunderridge

Additional Information

  • Date ListedJanuary 30th, 2026
  • ZoningPDU

Listing Details

  • Luxe Haven Realty
Please provide a valid email address.

Terms and Conditions: The content relating to real estate for sale in this Web site comes in part from the Internet Data eXchange ("IDX") program of METROLIST, INC., DBA RECOLORADO® Real estate listings held by brokers other than RE/MAX Professionals are marked with the IDX Logo. This information is being provided for the consumers personal, non-commercial use and may not be used for any other purpose. All information subject to change and should be independently verified.

Copyright 2026 METROLIST, INC., DBA RECOLORADO® -- All Rights Reserved 6455 S. Yosemite St., Suite 500 Greenwood Village, CO 80111 USA

Listing information last updated on February 15th, 2026 at 3:48pm MST.