Connect

1309 S Eliot Street, Denver, CO – $565,000

  • 6 Beds
  • 2 Baths
  • 1,952 Sqft
  • .16 Acres
  • 6 Beds
  • 2 Baths
  • 1,952 Sqft
  • .16 Acres

New Search X

1309 S Eliot Street

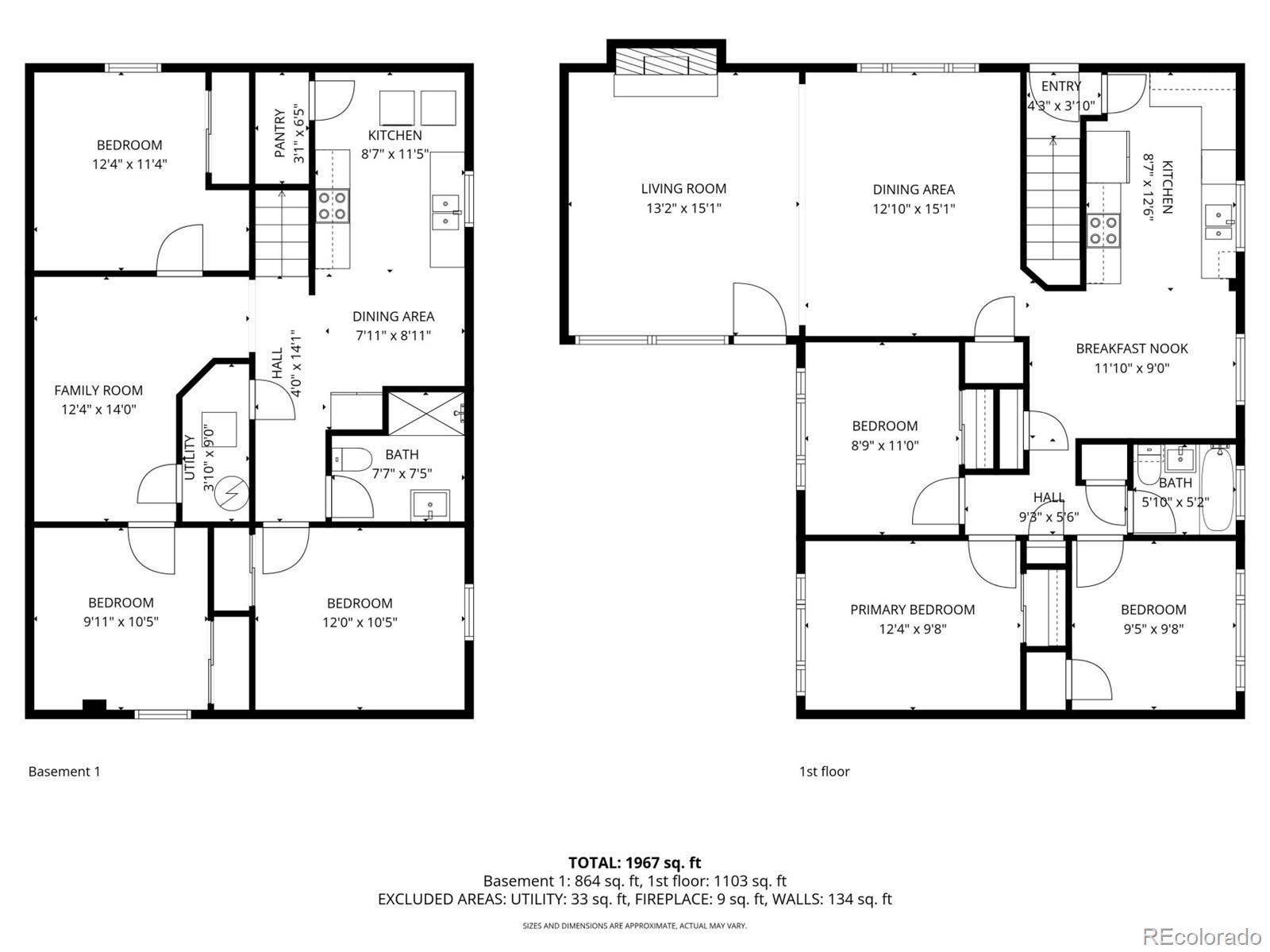
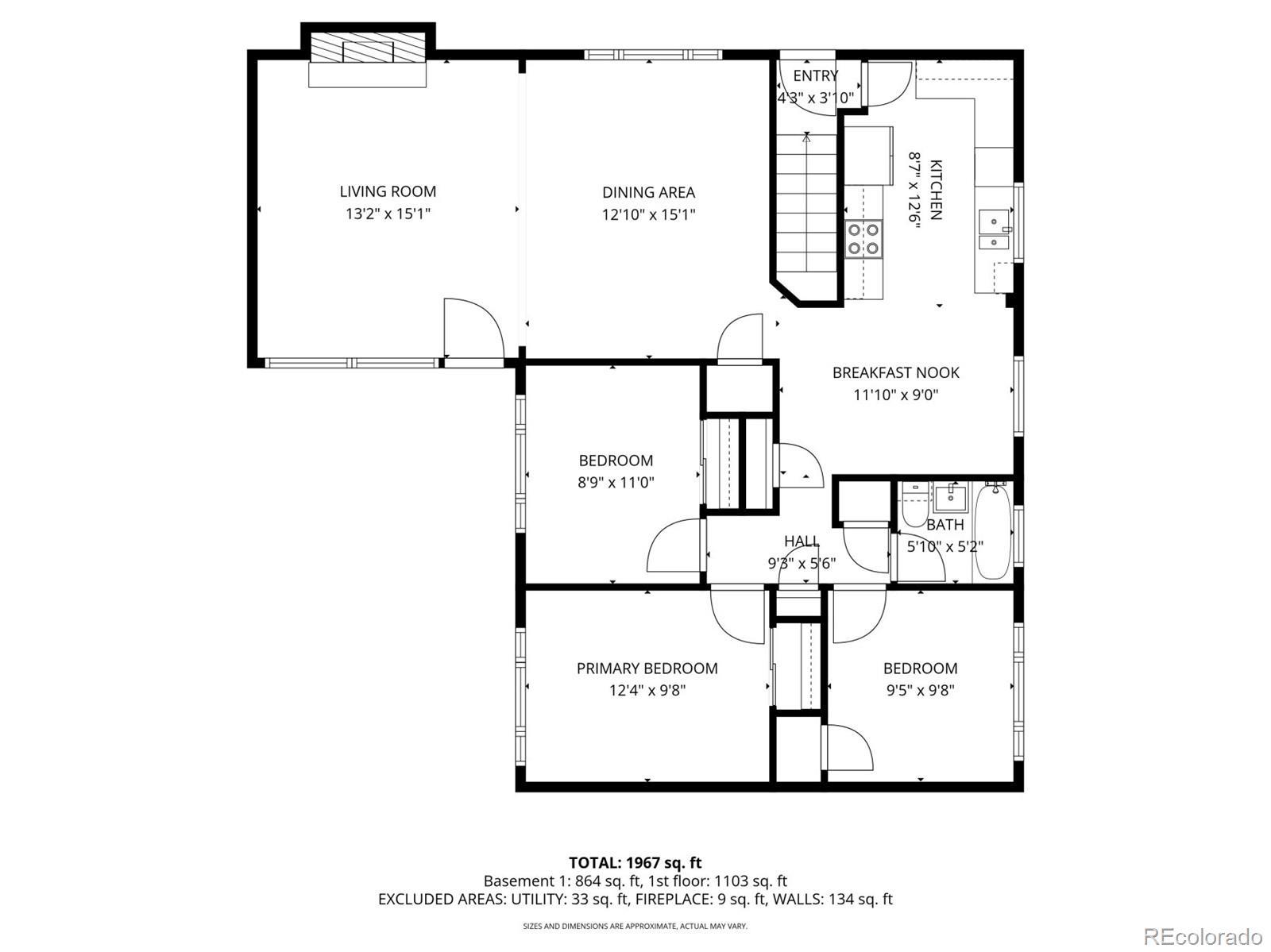
Centrally located Denver property delivers rare flexibility—functioning beautifully as a primary residence, strong income-producing investment, or an ideal house-hack opportunity. With separate living areas above & below, this ranch-style home offers a setup that supports multiple lifestyles while remaining easy to own, manage & envision. The main level features an open-concept layout where living room, dining area, & kitchen flow together, creating a space that feels modern and comfortable. Natural light pours in through newer vinyl windows, highlighting wood-looking LVP flooring, updated light fixtures, & clean, contemporary aesthetic throughout. An electric fireplace with mantel anchors the living area, while a large dining window adds brightness. The kitchen is thoughtfully updated with white quartz countertops, stainless steel appliances, deep farmhouse sink, & white shaker cabinetry with black hardware. Three bedrooms on the main level offer flexibility for guests or home office, supported by an updated full bathroom with newer vanity, modern fixtures, & rainfall shower head. The lower level expands versatility with a private exterior entrance, secondary kitchen, its own living area, updated 3/4 bathroom, & three conforming bedrooms with new egress windows. This space has successfully functioned as a long-term rental, mid-term rental, and Airbnb. Whether used for multi-generational living, supplemental income, or a full investment strategy, the layout allows each level to operate independently while remaining part of a single cohesive property. Outside, the low-maintenance design continues: covered back patio, newer fencing, turf landscaping, attached carport & additional gravel parking for the secondary unit, large lot & no HOA. Unpack and settle in, or activate an income strategy immediately—this is a property built for buyers who value modernization & long-term potential in Denver. Furnishing negotiable. https://youtube.com/shorts/5W4nq5L7ivM?feature=share

Listing Office: RE/MAX Synergy

Essential Information

  • MLS® #8502184
  • Price$565,000
  • Bedrooms6
  • Bathrooms2.00
  • Full Baths1
  • Square Footage1,952
  • Acres0.16
  • Year Built1955
  • TypeResidential
  • Sub-TypeSingle Family Residence
  • StyleTraditional
  • StatusPending

Community Information

  • Address1309 S Eliot Street
  • CityDenver
  • CountyDenver
  • StateCO
  • Zip Code80219

Subdivision

Carlson Mcclelland Frederics Green Acres Filing 1

Amenities

  • Parking Spaces3

Utilities

Electricity Connected, Internet Access (Wired), Natural Gas Connected

Interior

  • HeatingForced Air
  • CoolingCentral Air
  • FireplaceYes
  • # of Fireplaces1
  • FireplacesElectric, Family Room
  • StoriesOne

Interior Features

Eat-in Kitchen, Open Floorplan, Pantry, Quartz Counters, Radon Mitigation System, Smart Thermostat, Smoke Free

Appliances

Dishwasher, Disposal, Dryer, Gas Water Heater, Microwave, Range, Refrigerator, Washer

Exterior

  • Lot DescriptionLevel
  • WindowsDouble Pane Windows
  • RoofUnknown
  • FoundationSlab

Exterior Features

Lighting, Private Yard, Rain Gutters

School Information

  • DistrictDenver 1
  • ElementaryGodsman
  • MiddleKepner
  • HighAbraham Lincoln

Additional Information

  • Date ListedFebruary 5th, 2026
  • ZoningE-SU-DX

Listing Details

  • RE/MAX Synergy
Please provide a valid email address.

Terms and Conditions: The content relating to real estate for sale in this Web site comes in part from the Internet Data eXchange ("IDX") program of METROLIST, INC., DBA RECOLORADO® Real estate listings held by brokers other than RE/MAX Professionals are marked with the IDX Logo. This information is being provided for the consumers personal, non-commercial use and may not be used for any other purpose. All information subject to change and should be independently verified.

Copyright 2026 METROLIST, INC., DBA RECOLORADO® -- All Rights Reserved 6455 S. Yosemite St., Suite 500 Greenwood Village, CO 80111 USA

Listing information last updated on February 20th, 2026 at 5:18am MST.