Connect

5128 W 26th Avenue 311, Denver, CO – $750,000

  • 2 Beds
  • 3 Baths
  • 1,356 Sqft
  • .04 Acres
  • 2 Beds
  • 3 Baths
  • 1,356 Sqft
  • .04 Acres

New Search X

5128 W 26th Avenue 311

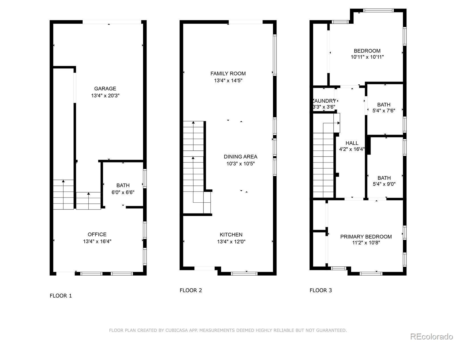
Welcome to this brand-new luxury townhome offering the best of Denver living with stunning views of Sloan’s Lake, the Rocky Mountains, and the vibrant downtown skyline. Designed across three levels with an expansive fourth-floor rooftop deck, this home blends modern style with thoughtful functionality, creating the perfect balance for both entertaining and everyday living. The main level opens with a versatile office highlighted by luxury vinyl flooring and recessed lighting—an ideal space for working from home or creative pursuits—paired with a stylish powder bath for convenience. Upstairs, the second level is the heart of the home, featuring a bright open-concept design where the family room and dining area flow seamlessly into the gourmet kitchen. The kitchen showcases quartz countertops, stainless steel Samsung appliances, a striking tile backsplash, and soft-close cabinetry, all illuminated by recessed lighting for a sleek and inviting atmosphere. On the third level, the private primary suite offers a serene retreat with dual closets, recessed lighting, and a spa-inspired bathroom complete with light gray soft-close cabinetry, quartz countertops, black accents, and a beautifully tiled walk-in shower. A secondary bedroom with an oversized closet also enjoys its own full en suite bath with tub and quartz-topped vanity, creating a perfect guest suite or secondary living space. A conveniently located laundry area completes this floor. Crowning this remarkable residence is the expansive rooftop deck, where panoramic views stretch from Sloan’s Lake to the Front Range and across the glittering downtown skyline. Whether hosting friends, enjoying sunrise coffee, or watching the sun dip behind the mountains, this rooftop defines Denver living at its finest. Just steps from Sloan’s Lake, trails, and green spaces, and minutes from Denver’s best dining, shopping, and nightlife, this townhome offers a lifestyle that is truly unmatched. WELCOME HOME!

Listing Office: Coldwell Banker Realty 18

Essential Information

  • MLS® #8564899
  • Price$750,000
  • Bedrooms2
  • Bathrooms3.00
  • Full Baths1
  • Half Baths1
  • Square Footage1,356
  • Acres0.04
  • Year Built2024
  • TypeResidential
  • Sub-TypeTownhouse
  • StyleContemporary
  • StatusActive

Community Information

  • Address5128 W 26th Avenue 311
  • SubdivisionSloans Lake
  • CityDenver
  • CountyDenver
  • StateCO
  • Zip Code80212

Amenities

  • Parking Spaces2
  • # of Garages1
  • ViewCity, Mountain(s), Water

Utilities

Cable Available, Electricity Available, Electricity Connected, Phone Available

Parking

Concrete, Dry Walled, Finished Garage, Lighted, Storage

Interior

  • HeatingForced Air
  • CoolingCentral Air
  • StoriesThree Or More

Interior Features

Ceiling Fan(s), Entrance Foyer, Open Floorplan, Primary Suite, Quartz Counters, Smoke Free

Appliances

Cooktop, Dishwasher, Disposal, Microwave, Oven, Refrigerator, Self Cleaning Oven

Exterior

  • Exterior FeaturesLighting, Rain Gutters
  • RoofMembrane
  • FoundationStructural

School Information

  • DistrictDenver 1
  • ElementaryEdison
  • MiddleStrive Sunnyside
  • HighNorth

Additional Information

  • Date ListedOctober 17th, 2025

Listing Details

  • Coldwell Banker Realty 18
Please provide a valid email address.

Terms and Conditions: The content relating to real estate for sale in this Web site comes in part from the Internet Data eXchange ("IDX") program of METROLIST, INC., DBA RECOLORADO® Real estate listings held by brokers other than RE/MAX Professionals are marked with the IDX Logo. This information is being provided for the consumers personal, non-commercial use and may not be used for any other purpose. All information subject to change and should be independently verified.

Copyright 2025 METROLIST, INC., DBA RECOLORADO® -- All Rights Reserved 6455 S. Yosemite St., Suite 500 Greenwood Village, CO 80111 USA

Listing information last updated on November 5th, 2025 at 11:33pm MST.