Connect

1201 N Williams Street 18a, Denver, CO – $1,850,000

  • $1.9M Price
  • 3 Beds
  • 3 Baths
  • 4,076 Sqft
  • $1.9M Price
  • 3 Beds
  • 3 Baths
  • 4,076 Sqft

New Search X

1201 N Williams Street 18a

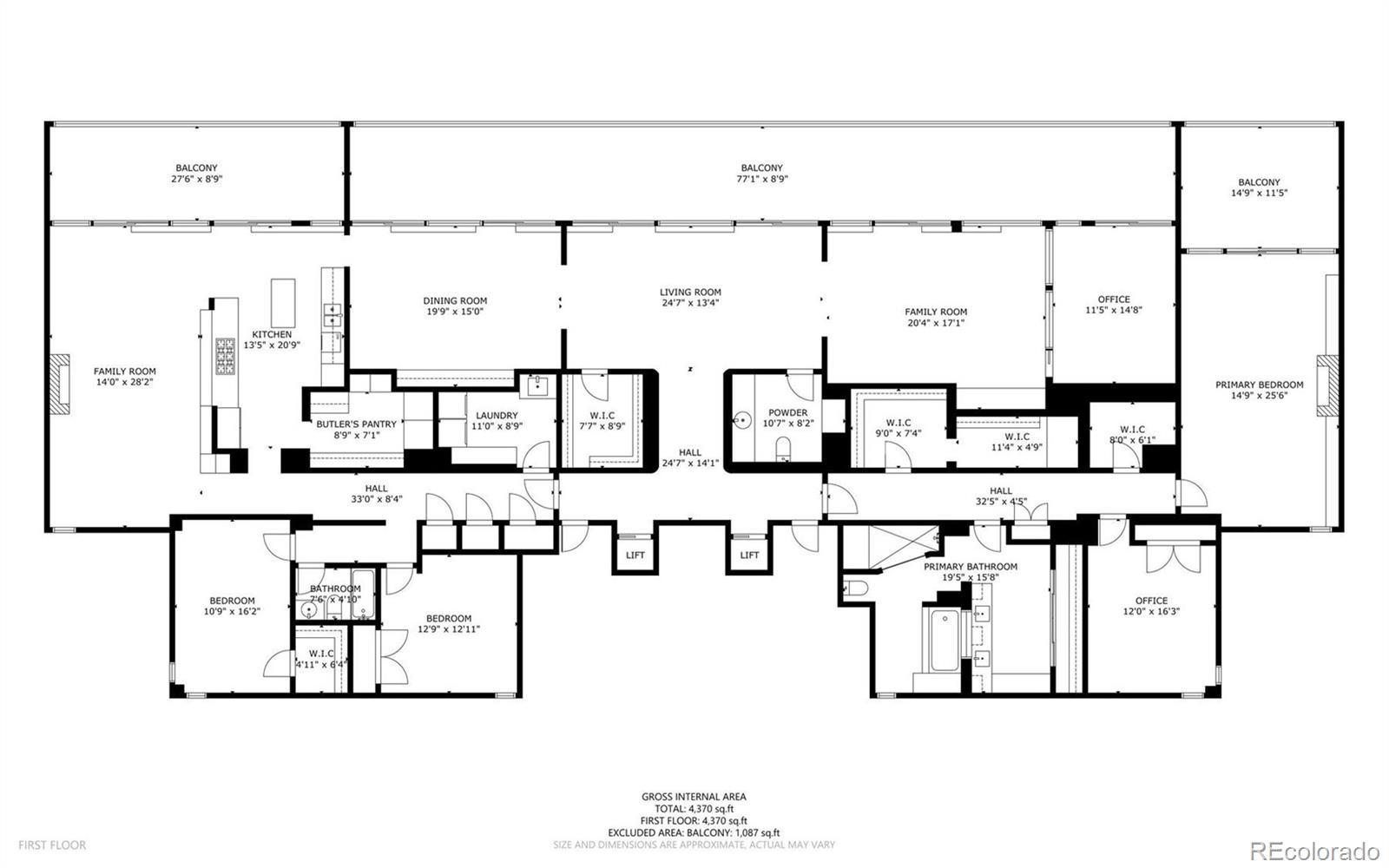
The owner has done a huge price reduction. This is a limited time opportunity. Must see full floor single level penthouse at One Cheesman, featuring stunning mountain views and overlooking Cheesman Park.One Cheesman Park is an iconic mid century landmark designed by architect Charles Sink, located centrally on vibrant 80 acre park.Abundant natural light floods this sophisticated sanctuary. Two southwest facing terraces with floor to ceiling windows extend the entire south side of building, offering breathtaking views.The living spaces are designed for entertaining Two keyed elevators open to this unique residence. The public areas have parquet, hardwood and marble floors throughout. The formal living room allows multiple seating areas and room for a grand piano. A formal dining room with tray ceilings can seat 12 or more guests. The chefs kitchen offers top of the line Dacor appliances, including a six burner gas range. A large walk-in butlers pantry features another refrigerator, a coffee center and abundant storage. The spacious kitchen opens to a breakfast area and an inviting library with a fireplace.The property is currently configured as a three bedroom residence, while the flexible floor plan and over 4,000 square feet allow for myriad possibilities. The primary bedroom includes a sitting area, fireplace and a private terrace. The main bath has a steam shower and soaking tub. Two secondary bedrooms are in a separate wing of the apartment. Closets, storage spaces and laundry space are abundant. There are two home offices.One of Denver’s most centrally located and vibrant parks is your front yard. Easy distance to Denver Botanic Gardens, Cherry Creek restaurants and shops, downtown and so much more.The property has a walkable score of 95/100. The unit includes two designated garage parking spaces. One Cheesman includes a seasonal swimming pool, gym, doorman and a club room. Pets ok

Listing Office: LIV Sotheby's International Realty

Essential Information

  • MLS® #8576623
  • Price$1,850,000
  • Bedrooms3
  • Bathrooms3.00
  • Full Baths2
  • Half Baths1
  • Square Footage4,076
  • Acres0.00
  • Year Built1969
  • TypeResidential
  • Sub-TypeCondominium
  • StyleMid-Century Modern
  • StatusActive

Community Information

  • Address1201 N Williams Street 18a
  • SubdivisionCheesman Park
  • CityDenver
  • CountyDenver
  • StateCO
  • Zip Code80218

Amenities

  • Parking Spaces2
  • # of Garages2
  • Has PoolYes
  • PoolOutdoor Pool

Amenities

Clubhouse, Concierge, Elevator(s), Fitness Center, Front Desk, On Site Management, Parking, Pool, Security, Storage

Utilities

Cable Available, Electricity Connected, Internet Access (Wired), Natural Gas Available, Phone Available

Parking

Concrete, Finished Garage, Oversized Door

Interior

  • HeatingBaseboard, Hot Water
  • CoolingCentral Air
  • FireplaceYes
  • # of Fireplaces1
  • StoriesOne

Interior Features

Eat-in Kitchen, Elevator, Entrance Foyer, Five Piece Bath, Primary Suite, Walk-In Closet(s)

Appliances

Cooktop, Dishwasher, Disposal, Dryer, Microwave, Oven, Refrigerator, Washer

Exterior

  • Exterior FeaturesBalcony, Elevator, Gas Grill
  • Lot DescriptionBorders Public Land
  • RoofOther

Windows

Double Pane Windows, Window Coverings

School Information

  • DistrictDenver 1
  • ElementaryDora Moore
  • MiddleMorey
  • HighEast

Additional Information

  • Date ListedAugust 30th, 2024
  • ZoningG-MU-20

Listing Details

LIV Sotheby's International Realty

Please provide a valid email address.

Terms and Conditions: The content relating to real estate for sale in this Web site comes in part from the Internet Data eXchange ("IDX") program of METROLIST, INC., DBA RECOLORADO® Real estate listings held by brokers other than RE/MAX Professionals are marked with the IDX Logo. This information is being provided for the consumers personal, non-commercial use and may not be used for any other purpose. All information subject to change and should be independently verified.

Copyright 2025 METROLIST, INC., DBA RECOLORADO® -- All Rights Reserved 6455 S. Yosemite St., Suite 500 Greenwood Village, CO 80111 USA

Listing information last updated on November 12th, 2025 at 1:33am MST.