Connect

3822 Broadmoor Loop, Broomfield, CO – $1,195,000

  • 4 Beds
  • 4 Baths
  • 3,278 Sqft
  • .33 Acres
  • 4 Beds
  • 4 Baths
  • 3,278 Sqft
  • .33 Acres

New Search X

3822 Broadmoor Loop

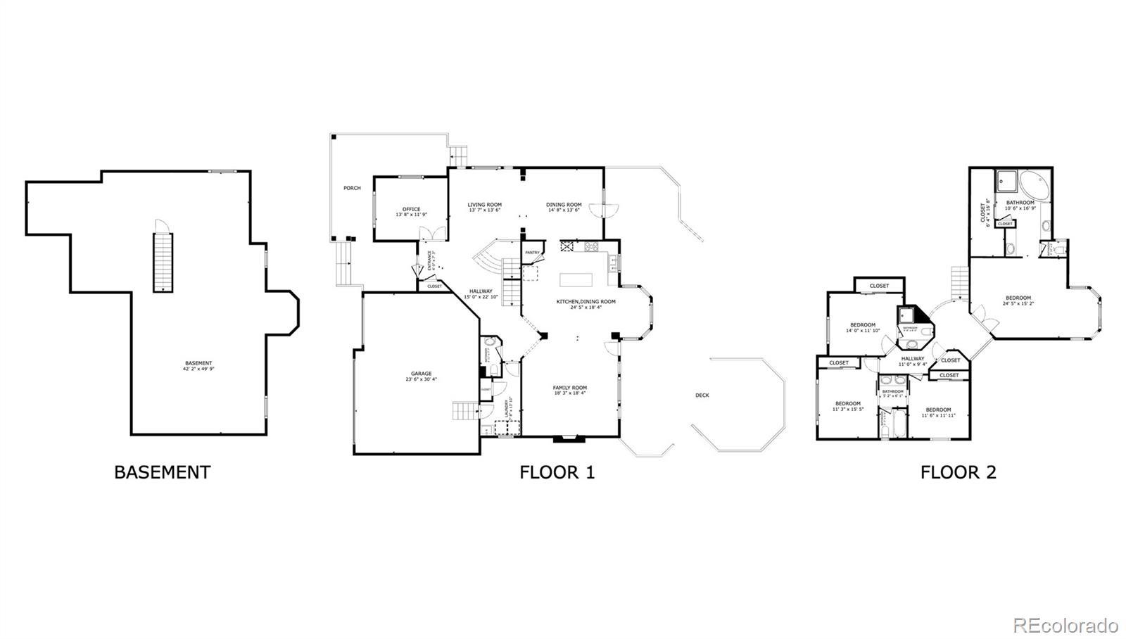
Welcome to this dreamy two-story that's perfectly perched on one of The Broadlands' largest wooded corner lots. Overlooking the golf course and a serene pond, this residence masterfully blends elegance with comfort, offering the perfect backdrop for entertaining and everyday relaxation. Experience true outdoor living on the private, shaded wrap-around mahogany front porch or the expansive back deck, where a show-stopping water feature and brand-new hot tub create a private oasis. Lush perennials, mature shade trees, and vibrant landscaping surround you, with plenty of plush grass still available for play. Inside, you'll be greeted by a dramatic foyer with high ceilings that carry through to the sun-filled living and family rooms. Tucked at the front of the home is the spacious, very private main-floor office with extensive built-ins. Gather friends and family in the spacious dining room, which features a custom copper tray ceiling and direct access to the deck. The gourmet kitchen is a chef's delight, with refinished cabinets, granite countertops, and stainless steel appliances. There's even plenty of room to expand the island! The kitchen also boasts a light-filled nook, which is great for everyday dining or as a coffee or cocktail nook. Upstairs, the primary bedroom suite offers a bump out sitting area, a spa-like five-piece bath, complete with a jetted tub and timeless travertine tile, as well as a walk-in closet. Three additional bedrooms and two more bathrooms (including a second en-suite!) complete the second story. In addition to the sprawling deck, the fenced backyard includes a slate patio, inset lighting, a custom water-fire feature, and two retractable awnings. A full, unfinished basement with 9-foot ceilings and rough-in plumbing provides a blank canvas for your vision, while recent upgrades throughout, from new paint and light fixtures to newly refinished hardwood floors, ensure a timeless, move-in-ready feel.

Listing Office: Compass - Denver

Essential Information

  • MLS® #8680661
  • Price$1,195,000
  • Bedrooms4
  • Bathrooms4.00
  • Full Baths2
  • Half Baths1
  • Square Footage3,278
  • Acres0.33
  • Year Built2000
  • TypeResidential
  • Sub-TypeSingle Family Residence
  • StatusPending

Community Information

  • Address3822 Broadmoor Loop
  • SubdivisionThe Broadlands
  • CityBroomfield
  • CountyBroomfield
  • StateCO
  • Zip Code80023

Amenities

  • Parking Spaces3
  • # of Garages3
  • ViewGolf Course, Water

Amenities

Clubhouse, Golf Course, Park, Playground, Pool, Trail(s)

Parking

220 Volts, Dry Walled, Floor Coating

Interior

  • HeatingForced Air, Natural Gas
  • CoolingCentral Air
  • FireplaceYes
  • # of Fireplaces1
  • FireplacesFamily Room
  • StoriesTwo

Interior Features

Breakfast Bar, Built-in Features, Ceiling Fan(s), Entrance Foyer, Five Piece Bath, Granite Counters, High Ceilings, Jack & Jill Bathroom, Kitchen Island, Open Floorplan, Pantry, Primary Suite, Smoke Free, Vaulted Ceiling(s)

Appliances

Dishwasher, Disposal, Microwave, Oven, Range, Range Hood, Refrigerator

Exterior

  • RoofComposition

Exterior Features

Gas Valve, Lighting, Private Yard, Spa/Hot Tub, Water Feature

Windows

Double Pane Windows, Window Coverings

School Information

  • DistrictAdams 12 5 Star Schl
  • ElementaryCoyote Ridge
  • MiddleWestlake
  • HighLegacy

Additional Information

  • Date ListedSeptember 12th, 2025
  • ZoningPUD

Listing Details

  • Compass - Denver
Please provide a valid email address.

Terms and Conditions: The content relating to real estate for sale in this Web site comes in part from the Internet Data eXchange ("IDX") program of METROLIST, INC., DBA RECOLORADO® Real estate listings held by brokers other than RE/MAX Professionals are marked with the IDX Logo. This information is being provided for the consumers personal, non-commercial use and may not be used for any other purpose. All information subject to change and should be independently verified.

Copyright 2025 METROLIST, INC., DBA RECOLORADO® -- All Rights Reserved 6455 S. Yosemite St., Suite 500 Greenwood Village, CO 80111 USA

Listing information last updated on November 7th, 2025 at 9:33pm MST.