Connect

169 Yates Street, Denver, CO – $597,000

  • 4 Beds
  • 3 Baths
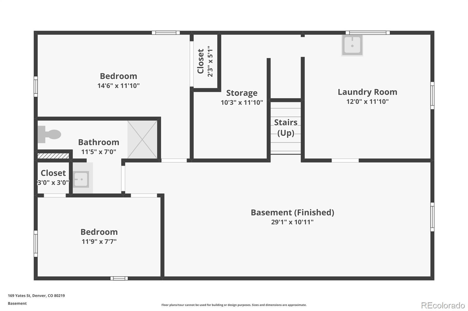
  • 2,000 Sqft
  • .16 Acres
  • 4 Beds
  • 3 Baths
  • 2,000 Sqft
  • .16 Acres

New Search X

169 Yates Street

Welcome to this beautifully remodeled single-family ranch located in Barnum West, brought to you by Shamrock Homes. This home has been thoughtfully renovated from top to bottom, combining timeless design with modern functionality to deliver a home that’s truly move-in ready. Step inside and immediately feel the difference. The open-concept floor plan offers a warm and inviting living space, perfect for both relaxing and entertaining. The chef-inspired kitchen is the heart of the home, featuring modern finishes, luxury cabinetry, quartz countertops, and smart appliances. The spacious primary suite offers a peaceful retreat with its walk-in closet and spa-inspired ensuite bathroom—ideal for unwinding after a busy day. Beyond the beauty of the finishes, this home offers true peace of mind. All of the major systems have been fully updated, including a brand-new sewer line, electrical system, central A/C, furnace, and plumbing. No surprises here—just comfort, efficiency, and reliability for years to come. Located just minutes from the vibrant energy of Downtown Denver, this home puts you right in the middle of it all while still offering a quiet, residential feel. Enjoy quick access to public transit and a straight shot to the city’s best entertainment—whether it’s cheering on your favorite team at a game, catching a concert or theater show, or dining at one of Denver’s top-rated restaurants. You get the best of both worlds: a serene home in a well-established neighborhood with the excitement of the city just moments away. Don’t miss the chance to own one of the best values in Barnum West. With quality craftsmanship, thoughtful updates, and unbeatable location, this one checks all the boxes. Listing Brokers are partial owners in the selling entity. Buyers or Buyer's Brokers are encouraged to call before submitting an offer. Ask about special financing offers from Seller's preferred lender.

Listing Office: eXp Realty, LLC

Essential Information

  • MLS® #8727720
  • Price$597,000
  • Bedrooms4
  • Bathrooms3.00
  • Full Baths1
  • Square Footage2,000
  • Acres0.16
  • Year Built1955
  • TypeResidential
  • Sub-TypeSingle Family Residence
  • StyleTraditional
  • StatusPending

Community Information

  • Address169 Yates Street
  • SubdivisionBarnum West
  • CityDenver
  • CountyDenver
  • StateCO
  • Zip Code80219

Amenities

  • Parking Spaces6
  • # of Garages2
  • ViewMountain(s)

Utilities

Cable Available, Electricity Connected, Natural Gas Connected, Phone Available

Parking

Concrete, Exterior Access Door, Oversized

Interior

  • HeatingForced Air, Natural Gas
  • CoolingCentral Air
  • StoriesOne

Interior Features

Built-in Features, Granite Counters, Open Floorplan, Pantry, Smart Thermostat, Smoke Free, Walk-In Closet(s)

Appliances

Convection Oven, Cooktop, Dishwasher, Disposal, Gas Water Heater, Smart Appliance(s)

Exterior

  • Exterior FeaturesLighting, Private Yard
  • RoofComposition

Lot Description

Landscaped, Level, Near Public Transit, Sprinklers In Front, Sprinklers In Rear

Windows

Double Pane Windows, Egress Windows

School Information

  • DistrictDenver 1
  • ElementaryNewlon
  • MiddleKepner
  • HighWest

Additional Information

  • Date ListedJune 13th, 2025
  • ZoningE-SU-DX

Listing Details

  • eXp Realty, LLC
Please provide a valid email address.

Terms and Conditions: The content relating to real estate for sale in this Web site comes in part from the Internet Data eXchange ("IDX") program of METROLIST, INC., DBA RECOLORADO® Real estate listings held by brokers other than RE/MAX Professionals are marked with the IDX Logo. This information is being provided for the consumers personal, non-commercial use and may not be used for any other purpose. All information subject to change and should be independently verified.

Copyright 2025 METROLIST, INC., DBA RECOLORADO® -- All Rights Reserved 6455 S. Yosemite St., Suite 500 Greenwood Village, CO 80111 USA

Listing information last updated on December 3rd, 2025 at 8:33pm MST.