Connect

14810 Pristine Drive, Colorado Springs, CO – $965,000

  • 4 Beds
  • 4 Baths
  • 4,122 Sqft
  • .48 Acres
  • 4 Beds
  • 4 Baths
  • 4,122 Sqft
  • .48 Acres

New Search X

14810 Pristine Drive

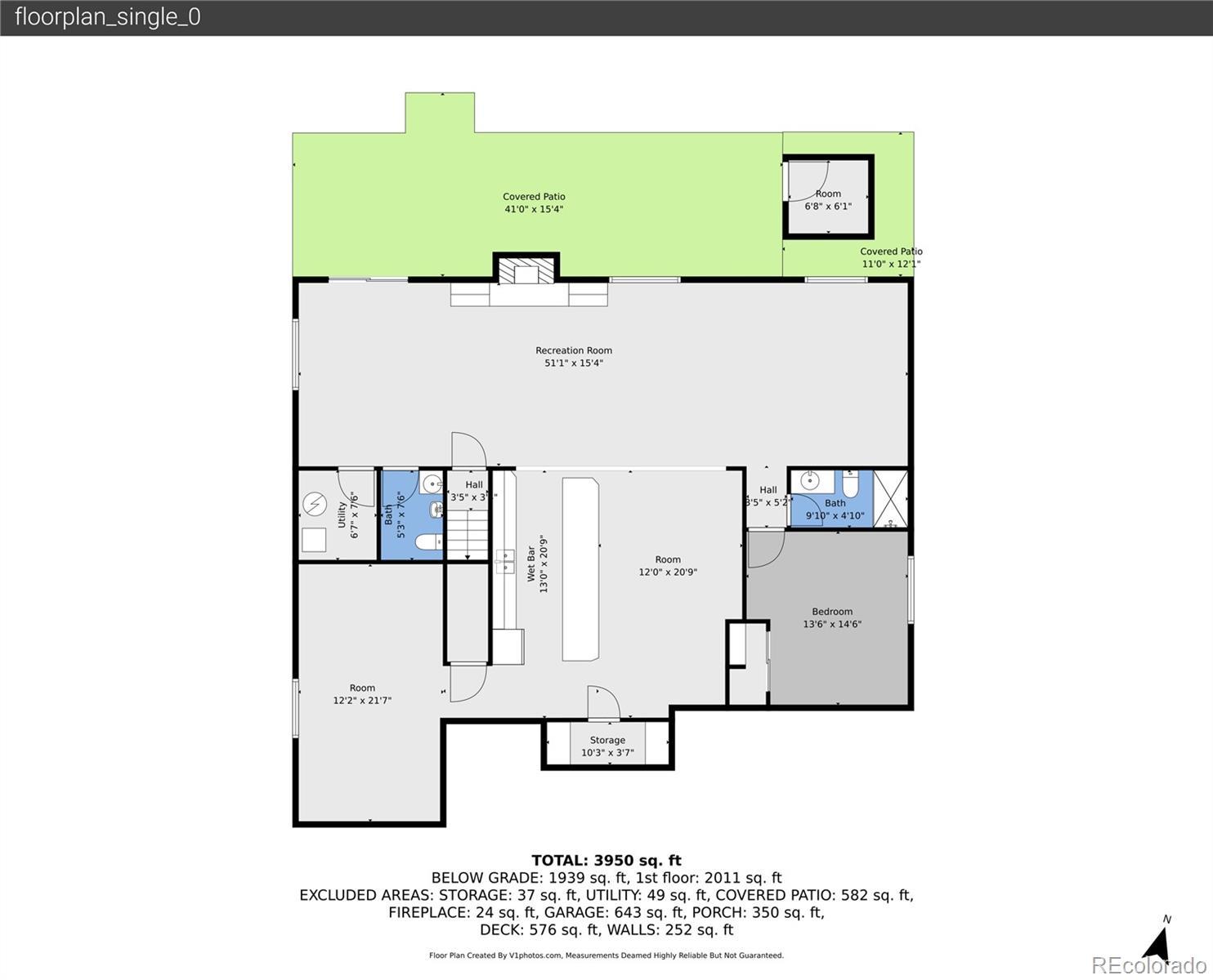
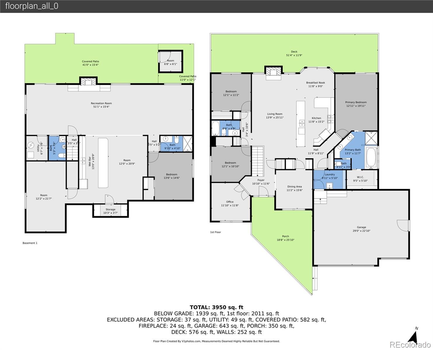
Welcome to a truly unique Colorado Springs home offering main-level living and an exceptional blend of comfort, functionality, and entertainment—nestled against peaceful open space, a scenic creek, and miles of trails throughout the Gleneagle neighborhood. The thoughtfully designed main level provides effortless everyday living, highlighted by a spacious primary suite featuring a five-piece bath, walk-in closet, and direct access to the deck with a hot tub connection, creating a private retreat. Two additional bedrooms, a dedicated office with Front Range views, a laundry room, and an updated open-concept kitchen complete this level, making both daily life and entertaining seamless. Designed with efficiency and peace of mind in mind, the home includes a central vacuum system with sweep inlets, a backup generator, and an oversized three-car garage, offering ample space for vehicles, storage, and outdoor gear. The walk-out basement expands the living and entertaining options with a pool hall and full bar, an additional bedroom, and a flex space ideal for a home gym, movie room, or extra storage—easily adapting to your lifestyle needs. Additional highlights include a new roof installed in 2023 and a southwest-facing driveway that delivers excellent sun exposure—something neighbors will definitely envy after a snowfall. As a fun and unique bonus, enjoy free, front-row views of USAFA Falcons flyovers, turning select days into unforgettable air show experiences right from your backyard. With versatile living spaces, seamless indoor-outdoor flow, and a setting that perfectly balances entertainment and tranquility, this home offers a lifestyle opportunity that is truly one of a kind.

Listing Office: Your Castle Real Estate Inc

Essential Information

  • MLS® #8927523
  • Price$965,000
  • Bedrooms4
  • Bathrooms4.00
  • Full Baths3
  • Half Baths1
  • Square Footage4,122
  • Acres0.48
  • Year Built1998
  • TypeResidential
  • Sub-TypeSingle Family Residence
  • StatusActive

Community Information

  • Address14810 Pristine Drive
  • SubdivisionGleneagle
  • CityColorado Springs
  • CountyEl Paso
  • StateCO
  • Zip Code80921

Amenities

  • Parking Spaces3
  • ParkingOversized
  • # of Garages3

Interior

  • CoolingCentral Air
  • StoriesOne

Interior Features

Ceiling Fan(s), Central Vacuum, Five Piece Bath, Primary Suite, Walk-In Closet(s)

Appliances

Dishwasher, Disposal, Microwave, Oven, Range, Refrigerator

Heating

Electric, Forced Air, Natural Gas

Exterior

  • RoofComposition

School Information

  • DistrictAcademy 20
  • ElementaryAntelope Trails
  • MiddleDiscovery Canyon
  • HighDiscovery Canyon

Additional Information

  • Date ListedJanuary 9th, 2026
  • ZoningRS-6000

Listing Details

  • Your Castle Real Estate Inc
Please provide a valid email address.

Terms and Conditions: The content relating to real estate for sale in this Web site comes in part from the Internet Data eXchange ("IDX") program of METROLIST, INC., DBA RECOLORADO® Real estate listings held by brokers other than RE/MAX Professionals are marked with the IDX Logo. This information is being provided for the consumers personal, non-commercial use and may not be used for any other purpose. All information subject to change and should be independently verified.

Copyright 2026 METROLIST, INC., DBA RECOLORADO® -- All Rights Reserved 6455 S. Yosemite St., Suite 500 Greenwood Village, CO 80111 USA

Listing information last updated on January 18th, 2026 at 6:03pm MST.