Connect

6435 E Cedar Avenue, Denver, CO – $825,000

  • $825k Price
  • 3 Beds
  • 4 Baths
  • 2,128 Sqft
  • $825k Price
  • 3 Beds
  • 4 Baths
  • 2,128 Sqft

New Search X

6435 E Cedar Avenue

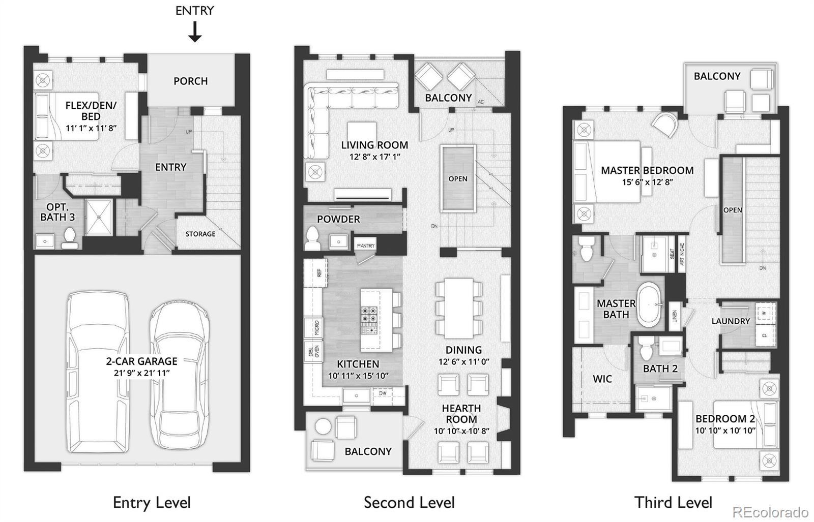
Gorgeous townhome just steps to Crestmoor Park and within walking distance of Lowry shopping and amenities! Beautiful home with modern, airy and open floorplan! • 9 and 10 ft ceilings throughout • THREE private balconies • Gourmet kitchen with slab granite counters and high-end appliances! • Modern gas horizontal fireplace • Primary Suite w/ 5 piece bath & walk-in closet • Secondary bedroom is a junior suite w/ private bath • Ground level bedroom (ideal guest room/office) with private bath • Custom Hardwood and Tile floors • Attached TWO CAR garage, spacious laundry room w/ new front-loader W/D, custom lighting, partial basement for storage, and many more features! Highly upgraded and ready to move into! Don't miss the opportunity to own a modern, high-end townhome just steps to one of the best parks in the city!!

Listing Office: REAL ESTATE REVOLUTION

Essential Information

  • MLS® #8960389
  • Price$825,000
  • Bedrooms3
  • Bathrooms4.00
  • Full Baths1
  • Half Baths1
  • Square Footage2,128
  • Acres0.00
  • Year Built2016
  • TypeResidential
  • Sub-TypeTownhouse
  • StatusPending

Style

Contemporary, Urban Contemporary

Community Information

  • Address6435 E Cedar Avenue
  • SubdivisionCrestmoor Park
  • CityDenver
  • CountyDenver
  • StateCO
  • Zip Code80224

Amenities

  • AmenitiesGarden Area, Parking
  • Parking Spaces2
  • # of Garages2

Utilities

Cable Available, Electricity Connected, Internet Access (Wired), Natural Gas Connected

Interior

  • HeatingForced Air
  • CoolingCentral Air
  • FireplaceYes
  • # of Fireplaces1
  • FireplacesGas, Great Room
  • StoriesThree Or More

Interior Features

Breakfast Bar, Built-in Features, Ceiling Fan(s), Eat-in Kitchen, Entrance Foyer, Five Piece Bath, Granite Counters, High Ceilings, In-Law Floorplan, Kitchen Island, Open Floorplan, Pantry, Primary Suite, Smoke Free, Solid Surface Counters, Walk-In Closet(s)

Appliances

Cooktop, Dishwasher, Disposal, Dryer, Microwave, Oven, Range, Refrigerator, Self Cleaning Oven, Washer

Exterior

  • Exterior FeaturesBalcony
  • Lot DescriptionGreenbelt
  • RoofShingle
  • FoundationSlab

Windows

Double Pane Windows, Window Coverings

School Information

  • DistrictDenver 1
  • ElementaryCarson
  • MiddleHill
  • HighGeorge Washington

Additional Information

  • Date ListedAugust 21st, 2024
  • ZoningS-MU-3

Listing Details

  • REAL ESTATE REVOLUTION
Please provide a valid email address.

Terms and Conditions: The content relating to real estate for sale in this Web site comes in part from the Internet Data eXchange ("IDX") program of METROLIST, INC., DBA RECOLORADO® Real estate listings held by brokers other than RE/MAX Professionals are marked with the IDX Logo. This information is being provided for the consumers personal, non-commercial use and may not be used for any other purpose. All information subject to change and should be independently verified.

Copyright 2026 METROLIST, INC., DBA RECOLORADO® -- All Rights Reserved 6455 S. Yosemite St., Suite 500 Greenwood Village, CO 80111 USA

Listing information last updated on February 20th, 2026 at 5:33am MST.