Connect

6961 E Arkansas Avenue, Denver, CO – $525,000

  • 2 Beds
  • 2 Baths
  • 1,784 Sqft
  • .16 Acres
  • 2 Beds
  • 2 Baths
  • 1,784 Sqft
  • .16 Acres

New Search X

6961 E Arkansas Avenue

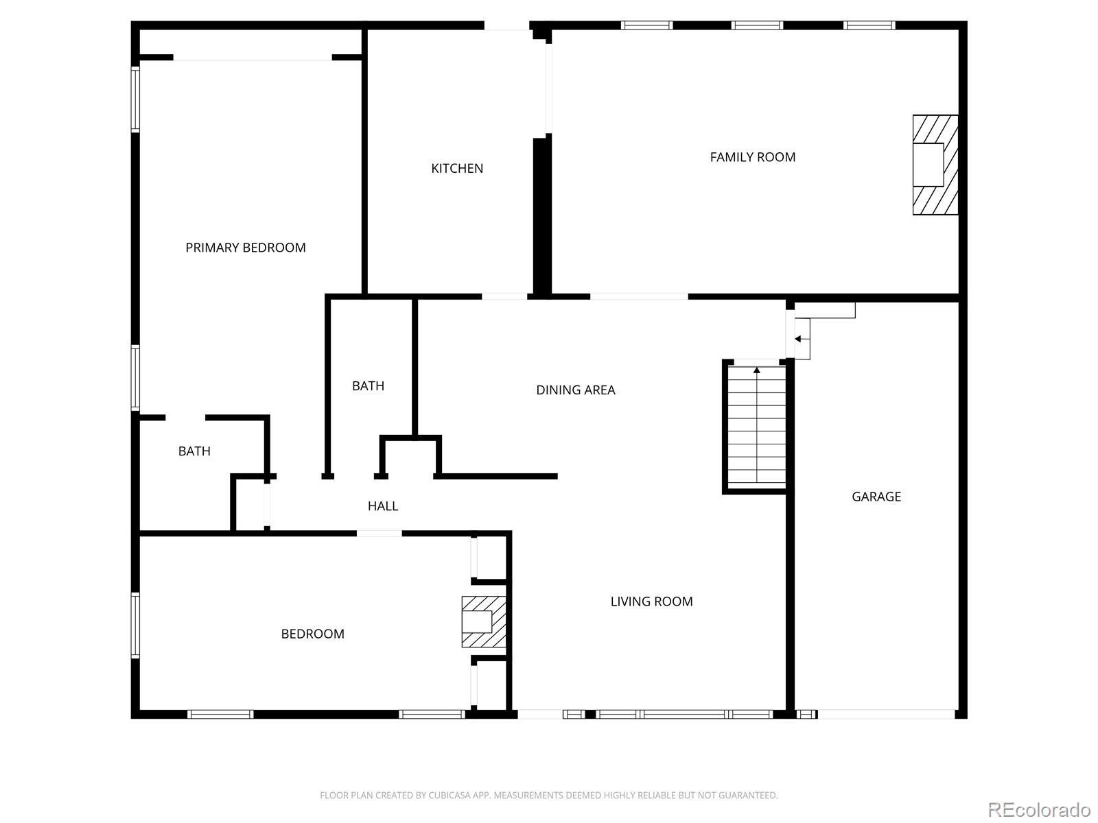
Located in an established southeast Denver neighborhood, this well-cared-for home offers a functional layout, timeless appeal, and a wonderful opportunity for today’s buyers. The bright, south-facing front of the home features a large picture window that fills the main living space with natural light, creating a warm and welcoming first impression. Main-floor features two bedrooms and two bathrooms, including a generously sized primary suite with its own ensuite bath - hard to find in this style home! Just off the kitchen, you’ll find a cozy family room that adds warmth and flexibility to the living space—perfect for everyday living, movie nights, or casual gatherings. The kitchen offers a practical, easy-to-live-in layout that has been well maintained over the years. As a bonus, the walls have been freshly skim-coated and painted crisp white, giving the home a clean, bright, move-in-ready feel. Downstairs, the basement provides ample storage along with additional potential for future living space. Whether you envision a home office, gym, guest area, or recreation space, this level offers flexibility to grow with your needs. A third bedroom space is partially finished, and rough-ins are already in place for a third bathroom. Recent exterior improvements include a newer roof and heated gutters, offering added peace of mind for the next owner. Outside, the backyard is a true highlight, featuring a lovely deck and a spacious, private setting—ideal for entertaining, relaxing, gardening, or enjoying Colorado’s beautiful seasons. Lovingly owned by the same family since 1972, this home reflects pride of ownership and thoughtful care throughout the years. Conveniently located near parks, trails, shopping, dining, and major commuter routes, it offers easy access to everything you need while still feeling tucked into a residential setting. Whether you’re a first-time buyer or someone with vision, this home presents a unique opportunity to create something special.

Listing Office: RE/MAX of Cherry Creek

Essential Information

  • MLS® #9097954
  • Price$525,000
  • Bedrooms2
  • Bathrooms2.00
  • Full Baths1
  • Square Footage1,784
  • Acres0.16
  • Year Built1965
  • TypeResidential
  • Sub-TypeSingle Family Residence
  • StatusPending

Community Information

  • Address6961 E Arkansas Avenue
  • SubdivisionLynwood
  • CityDenver
  • CountyDenver
  • StateCO
  • Zip Code80224

Amenities

  • Parking Spaces2
  • ParkingConcrete
  • # of Garages1

Interior

  • Interior FeaturesPantry, Primary Suite
  • HeatingForced Air
  • CoolingCentral Air
  • FireplaceYes
  • # of Fireplaces2
  • FireplacesBedroom, Family Room, Gas
  • StoriesOne

Appliances

Dishwasher, Disposal, Dryer, Gas Water Heater, Microwave, Oven, Refrigerator, Washer

Exterior

  • RoofShingle
  • FoundationConcrete Perimeter

Lot Description

Level, Sprinklers In Front, Sprinklers In Rear

School Information

  • DistrictDenver 1
  • ElementaryMcMeen
  • MiddleHill
  • HighGeorge Washington

Additional Information

  • Date ListedJanuary 29th, 2026
  • ZoningS-SU-D

Listing Details

  • RE/MAX of Cherry Creek
Please provide a valid email address.

Terms and Conditions: The content relating to real estate for sale in this Web site comes in part from the Internet Data eXchange ("IDX") program of METROLIST, INC., DBA RECOLORADO® Real estate listings held by brokers other than RE/MAX Professionals are marked with the IDX Logo. This information is being provided for the consumers personal, non-commercial use and may not be used for any other purpose. All information subject to change and should be independently verified.

Copyright 2026 METROLIST, INC., DBA RECOLORADO® -- All Rights Reserved 6455 S. Yosemite St., Suite 500 Greenwood Village, CO 80111 USA

Listing information last updated on February 16th, 2026 at 4:18pm MST.