Connect

1405 K Street, Salida, CO – $839,000

  • 4 Beds
  • 2 Baths
  • 2,016 Sqft
  • .24 Acres
  • 4 Beds
  • 2 Baths
  • 2,016 Sqft
  • .24 Acres

New Search X

1405 K Street

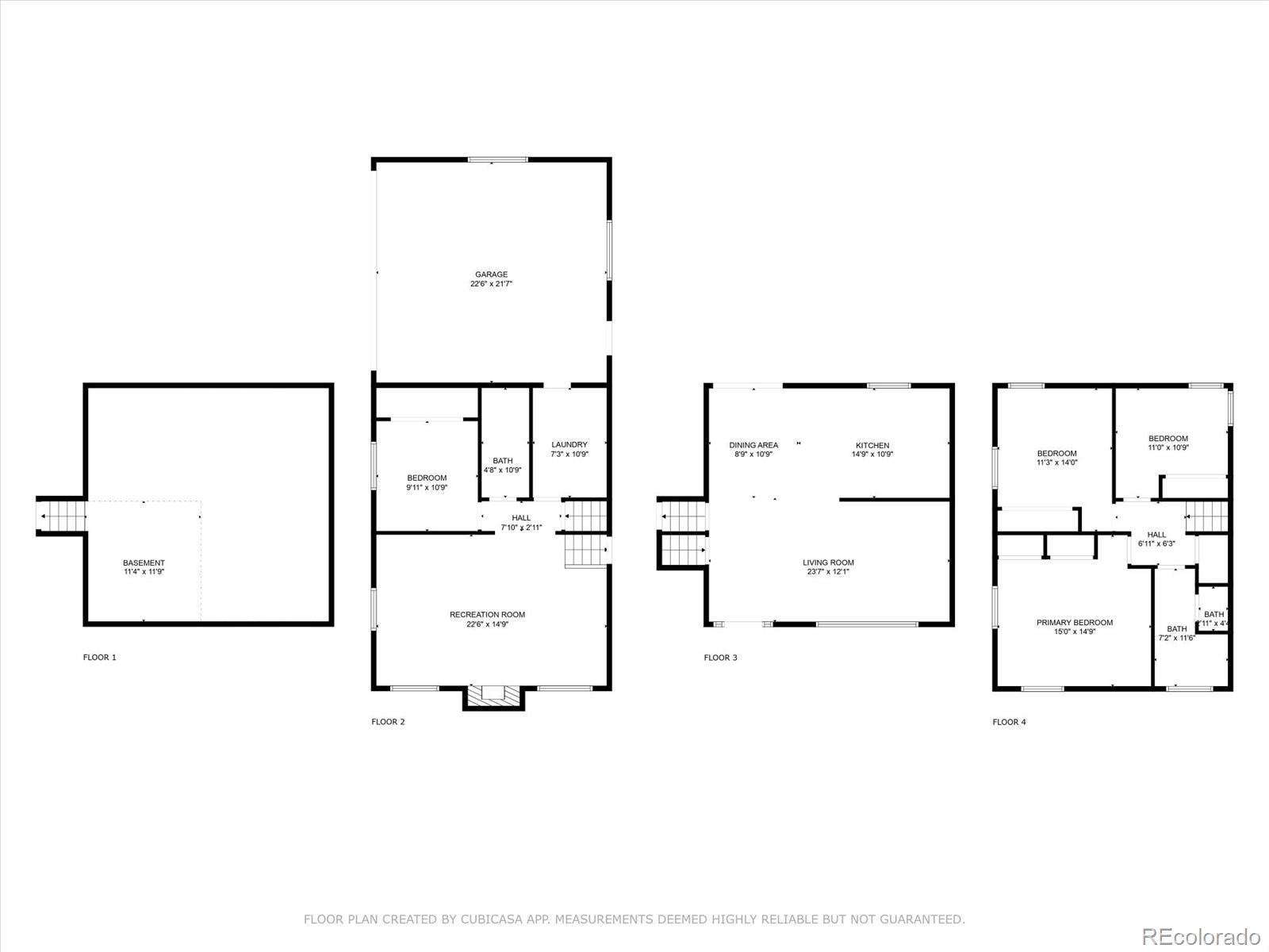
Spacious Split-Level Home on a Quiet Corner Lot in Salida Welcome to 1405 K Street! A well-maintained split-level home on a 0.24-acre corner lot in the quiet Kelseys Addition neighborhood of Salida. Built in 1975 and thoughtfully updated over the years, this 4-bedroom, 2-bathroom home offers 2,016 square feet of comfortable living space plus an unfinished basement for added storage or workshop space. The upper level includes three bright bedrooms and a full bath. The lower level features a private fourth bedroom, an additional full bath, and a second living area with a cozy fireplace, perfect for guests or multi-generational living. The main level flows easily from the living room to the kitchen and dining areas. Outside, you’ll find a covered front porch, a private back patio off the dining room, a spacious fenced backyard, and a storage shed with convenient alley access. The 576 square foot attached garage provides ample room for vehicles, tools, and gear. With over two city lots, the property offers plenty of space to spread out, garden, or build. Just minutes from downtown Salida, this home blends space, comfort, and location in one of Chaffee County’s most established neighborhoods.

Listing Office: First Colorado Land Office, Inc.

Essential Information

  • MLS® #9177808
  • Price$839,000
  • Bedrooms4
  • Bathrooms2.00
  • Full Baths2
  • Square Footage2,016
  • Acres0.24
  • Year Built1975
  • TypeResidential
  • Sub-TypeSingle Family Residence
  • StyleTraditional
  • StatusPending

Community Information

  • Address1405 K Street
  • SubdivisionKELSEYS ADD SALIDA
  • CitySalida
  • CountyChaffee
  • StateCO
  • Zip Code81201

Amenities

  • Parking Spaces2
  • # of Garages2

Parking

Concrete, Exterior Access Door

Interior

  • HeatingForced Air
  • CoolingNone
  • FireplaceYes
  • # of Fireplaces1
  • FireplacesFamily Room
  • StoriesMulti/Split

Interior Features

Kitchen Island, Laminate Counters

Appliances

Dishwasher, Range, Refrigerator

Exterior

  • Lot DescriptionCorner Lot, Level
  • RoofComposition
  • FoundationBlock

School Information

  • DistrictSalida R-32
  • ElementaryLongfellow
  • MiddleSalida
  • HighSalida

Additional Information

  • Date ListedMay 1st, 2025
  • ZoningR-2 Residential

Listing Details

First Colorado Land Office, Inc.

Please provide a valid email address.

Terms and Conditions: The content relating to real estate for sale in this Web site comes in part from the Internet Data eXchange ("IDX") program of METROLIST, INC., DBA RECOLORADO® Real estate listings held by brokers other than RE/MAX Professionals are marked with the IDX Logo. This information is being provided for the consumers personal, non-commercial use and may not be used for any other purpose. All information subject to change and should be independently verified.

Copyright 2025 METROLIST, INC., DBA RECOLORADO® -- All Rights Reserved 6455 S. Yosemite St., Suite 500 Greenwood Village, CO 80111 USA

Listing information last updated on November 7th, 2025 at 11:03pm MST.