Connect

7453 Slate Place, Frederick, CO – $519,900

  • 3 Beds
  • 3 Baths
  • 1,575 Sqft
  • .14 Acres
  • 3 Beds
  • 3 Baths
  • 1,575 Sqft
  • .14 Acres

New Search X

7453 Slate Place

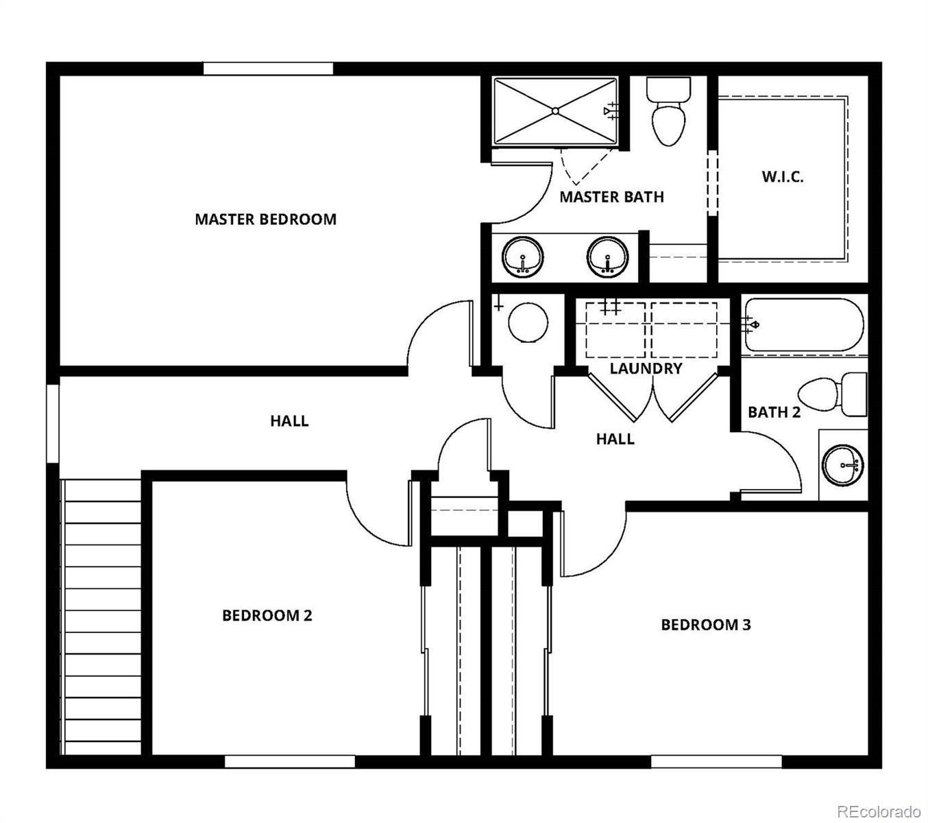
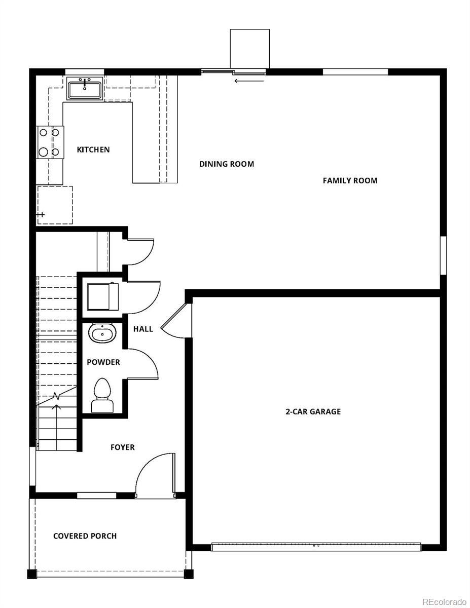
Welcome Home! Nothing compares to the comfort and convenience of a gorgeous community that is conveniently located and features 3 bedrooms, 2.5 baths, and a 2 car attached garage with an open floor plan. Our beautiful Laramie model plan has the privacy and space you need a thoughtful layout built for easy living including a large primary bedroom with a private bath, and large walk-in closets, upstairs laundry room, spacious kitchen, A/C, and covered porch. Discover the LGI Homes' CompleteHome package, this home has incredible upgrades at no additional cost including a gas range/oven, refrigerator, microwave and dishwasher, gorgeous granite countertops, wood blinds, designer wood cabinets, and a Wi-Fi-enabled garage door opener are just a few of the fabulous upgrades that make this house the place you want to call home. Located just minutes from I-25 and the new Silverstone Marketplace, this home provides easy access to a variety of shopping, dining, and entertainment options. The home pictured is representative of the property that is being built.

Listing Office: LGI Realty - Colorado, LLC

Essential Information

  • MLS® #9208710
  • Price$519,900
  • Bedrooms3
  • Bathrooms3.00
  • Full Baths2
  • Half Baths1
  • Square Footage1,575
  • Acres0.14
  • Year Built2025
  • TypeResidential
  • Sub-TypeSingle Family Residence
  • StyleTraditional
  • StatusActive

Community Information

  • Address7453 Slate Place
  • SubdivisionHidden Creek North
  • CityFrederick
  • CountyWeld
  • StateCO
  • Zip Code80530

Amenities

  • Parking Spaces2
  • ParkingConcrete
  • # of Garages2
  • ViewMountain(s)

Utilities

Cable Available, Electricity Connected, Internet Access (Wired), Natural Gas Connected, Phone Available

Interior

  • HeatingForced Air, Natural Gas
  • CoolingCentral Air
  • StoriesTwo

Interior Features

Ceiling Fan(s), Granite Counters, High Ceilings, High Speed Internet, Open Floorplan, Pantry, Primary Suite, Smart Thermostat, Smoke Free, Solid Surface Counters, Walk-In Closet(s)

Appliances

Dishwasher, Disposal, Electric Water Heater, Microwave, Oven, Range, Refrigerator, Self Cleaning Oven, Sump Pump

Exterior

  • RoofComposition
  • FoundationConcrete Perimeter

Exterior Features

Lighting, Private Yard, Rain Gutters

Lot Description

Landscaped, Sprinklers In Front

Windows

Double Pane Windows, Window Coverings

School Information

  • DistrictSt. Vrain Valley RE-1J
  • ElementaryLegacy
  • MiddleCoal Ridge
  • HighFrederick

Additional Information

  • Date ListedOctober 2nd, 2025

Listing Details

  • LGI Realty - Colorado, LLC
Please provide a valid email address.

Terms and Conditions: The content relating to real estate for sale in this Web site comes in part from the Internet Data eXchange ("IDX") program of METROLIST, INC., DBA RECOLORADO® Real estate listings held by brokers other than RE/MAX Professionals are marked with the IDX Logo. This information is being provided for the consumers personal, non-commercial use and may not be used for any other purpose. All information subject to change and should be independently verified.

Copyright 2026 METROLIST, INC., DBA RECOLORADO® -- All Rights Reserved 6455 S. Yosemite St., Suite 500 Greenwood Village, CO 80111 USA

Listing information last updated on February 2nd, 2026 at 2:04pm MST.