Connect

1661 Trenton Street, Denver, CO – $675,000

  • 5 Beds
  • 2 Baths
  • 2,320 Sqft
  • .15 Acres
  • 5 Beds
  • 2 Baths
  • 2,320 Sqft
  • .15 Acres

New Search X

1661 Trenton Street

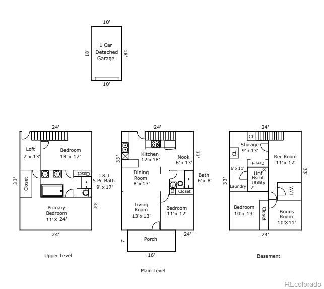
Welcome home to 1661 Trenton Street! See the 3D Tour at www.1661TrentonSt.com. Step inside this beautifully updated Denver home where comfort meets contemporary style. With 3 bedrooms, 2 full baths, and over 2,300 square feet of inviting living space, every corner has been thoughtfully refreshed for modern living. The remodeled kitchen is truly the heart of the home, featuring warm wood block countertops, stainless steel appliances, and gleaming hardwood floors. The sunny eat-in nook is perfect for morning coffee, casual dinners, or catching up with friends while cooking. The open main level flows easily from room to room with rich hardwood floors throughout. A main-floor bedroom and full updated bath make everyday living simple and flexible. Brand new interior and exterior paint. Upstairs, the spacious primary suite feels like a private retreat with vaulted ceilings, skylights, and a luxurious five-piece bath. A brand-new, fully permitted, balcony offers the perfect spot for quiet mornings or relaxing evenings under the stars. The third bedroom upstairs is light, bright, and features brand-new carpet, while all the windows upstairs have been freshly replaced for peace of mind and efficiency. Downstairs, the finished basement provides bonus space for work, play, or guests, with two additional non-conforming bedrooms, and a laundry area with washer and dryer included. Outside, enjoy a large, private backyard on a 6,350 sq. ft. lot with a covered patio for dining al fresco, plus a storage shed for all your gear. There’s also a one-car garage and plenty of off-street parking. Located in the heart of Denver, you’re close to everything. Just minutes to parks, shopping, local dining, and with easy access to I-70 for quick trips to downtown, the airport, or the mountains. Beautifully updated, full of natural light, and perfectly located, 1661 Trenton Street is ready to welcome you home.

Listing Office: Compass - Denver

Essential Information

  • MLS® #9236407
  • Price$675,000
  • Bedrooms5
  • Bathrooms2.00
  • Full Baths1
  • Square Footage2,320
  • Acres0.15
  • Year Built1927
  • TypeResidential
  • Sub-TypeSingle Family Residence
  • StyleBungalow, Contemporary
  • StatusPending

Community Information

  • Address1661 Trenton Street
  • SubdivisionEast Montrose
  • CityDenver
  • CountyDenver
  • StateCO
  • Zip Code80220

Amenities

  • Parking Spaces3
  • ParkingConcrete
  • # of Garages1
  • ViewMountain(s)

Utilities

Cable Available, Electricity Connected, Internet Access (Wired), Natural Gas Connected

Interior

  • HeatingForced Air, Natural Gas
  • CoolingAir Conditioning-Room
  • StoriesTwo

Interior Features

Butcher Counters, Ceiling Fan(s), Five Piece Bath, High Ceilings, High Speed Internet, Open Floorplan, Vaulted Ceiling(s)

Appliances

Dishwasher, Dryer, Gas Water Heater, Oven, Range, Refrigerator, Washer

Exterior

  • Exterior FeaturesBalcony, Private Yard
  • RoofComposition

Lot Description

Level, Sprinklers In Front, Sprinklers In Rear

Windows

Double Pane Windows, Skylight(s)

School Information

  • DistrictDenver 1
  • ElementaryAshley
  • MiddleHill
  • HighGeorge Washington

Additional Information

  • Date ListedDecember 30th, 2025
  • ZoningE-SU-DX

Listing Details

  • Compass - Denver
Please provide a valid email address.

Terms and Conditions: The content relating to real estate for sale in this Web site comes in part from the Internet Data eXchange ("IDX") program of METROLIST, INC., DBA RECOLORADO® Real estate listings held by brokers other than RE/MAX Professionals are marked with the IDX Logo. This information is being provided for the consumers personal, non-commercial use and may not be used for any other purpose. All information subject to change and should be independently verified.

Copyright 2026 METROLIST, INC., DBA RECOLORADO® -- All Rights Reserved 6455 S. Yosemite St., Suite 500 Greenwood Village, CO 80111 USA

Listing information last updated on March 5th, 2026 at 10:19am MST.