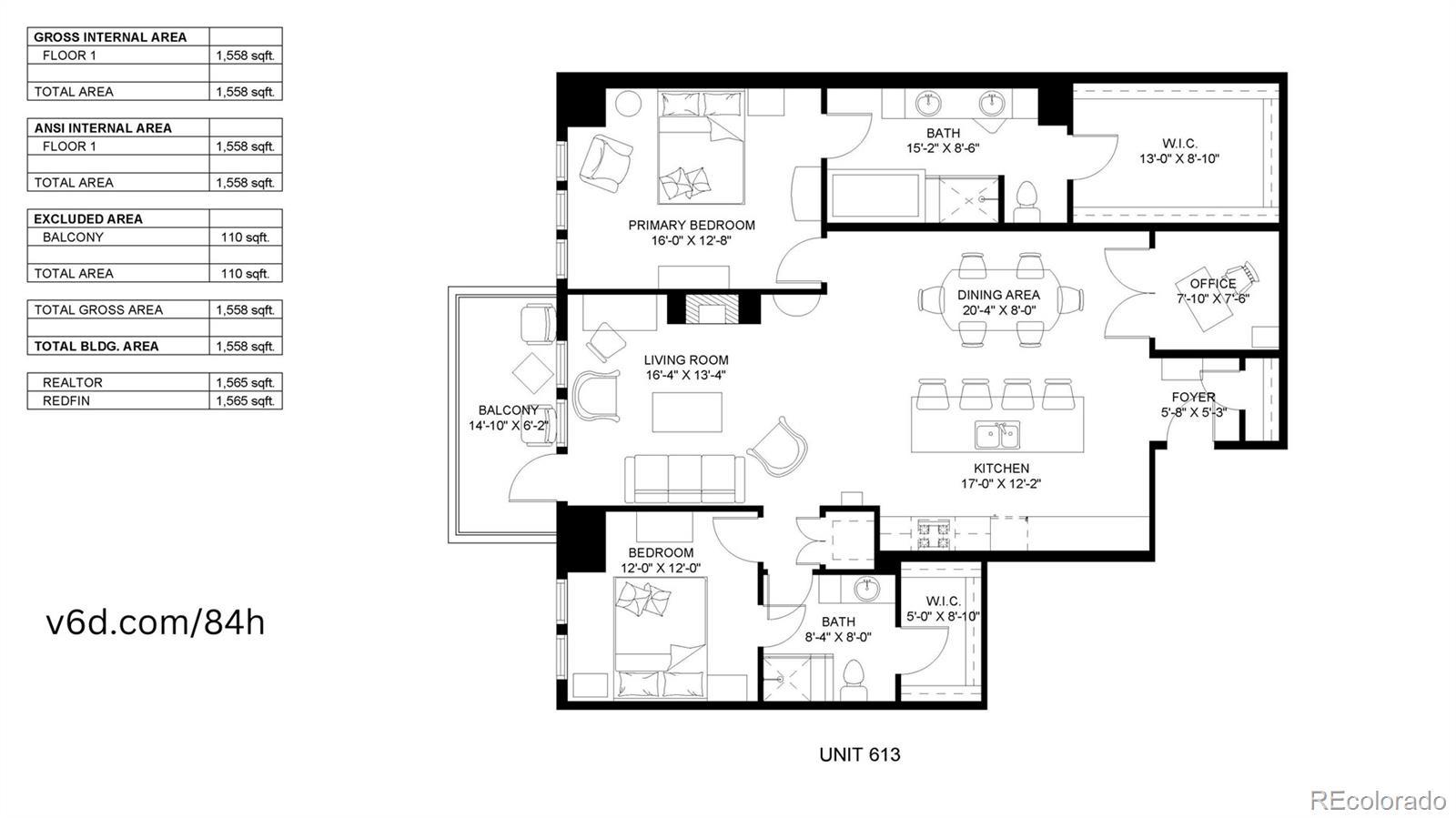
Beautifully designed luxurious condo with spectacular mountain views in the heart of Greenwood Village! Situated in the southwestern corner of the building, both bedrooms, living room, and the private balcony are bathed in natural light and have views all of the way to Pikes Peak! Customized floorplan with two private bedrooms plus an enclosed study and two bathrooms. Classic and timeless styling throughout! Spacious living room with high coved ceilings, a cozy gas fireplace, and access to the private balcony. The open-concept dining area seamlessly connects to the kitchen, allowing for a large dining table that does not interfere with the flow plus additional seating at the generous kitchen island. The kitchen is a culinary haven with Viking appliances including a 6-burner gas range, built-in refrigerator, pantry with pull out storage and a wine refrigerator. The spacious primary bedrooms has mountain views and is further enhanced by the luxurious five-piece bathroom with soaking tub and a large walk-in closet finished with custom built-in storage solutions. Large secondary bedroom with private access to the 3/4 bathroom, adjacent to laundry and also has a large walk-in closet that doubles as the hub for electronics, surround sound, etc. Two prime garage spaces are just steps to the elevator and storage unit. Residents of The Landmark enjoy world-class amenities including 24-hour front desk & concierge service, multiple fitness centers, two pools and hot tubs, saunas, steam rooms, individual temperature controlled and secure wine storage lockers, movie theater, library, guest suites, club rooms and vibrant common areas! The location can not be beat with incredible opportunities to dine, shop, exercise, relax, and laugh all at your front door! Cyclebar, Core Power Yoga, X Golf indoor course and ClubPilates are all in the building, with Denver Tech Center’s premier entertainment and dining destination right out of the front door! https://youtu.be/-P-XzhQzVug
Listing Office: Kentwood Real Estate Cherry Creek  
 
Bike Storage, Business Center, Clubhouse, Concierge, Elevator(s), Fitness Center, Front Desk, On Site Management, Parking, Pool, Sauna, Spa/Hot Tub, Storage
Built-in Features, Elevator, Five Piece Bath, Granite Counters, High Speed Internet, Kitchen Island, No Stairs, Primary Suite, Solid Surface Counters, Walk-In Closet(s)
Bar Fridge, Dishwasher, Disposal, Dryer, Microwave, Oven, Range, Range Hood, Refrigerator, Washer, Wine Cooler
Double Pane Windows, Window Coverings

Kentwood Real Estate Cherry Creek
 Terms and Conditions: The content relating to real estate for sale in this Web site comes in  part from the Internet Data eXchange ("IDX") program of METROLIST, INC., DBA RECOLORADO® Real estate listings held by brokers other than RE/MAX Professionals are marked with the IDX Logo. This information is being  provided for the consumers personal, non-commercial use and may not be  used for any other purpose. All information subject to change and  should be independently verified.
 Terms and Conditions: The content relating to real estate for sale in this Web site comes in  part from the Internet Data eXchange ("IDX") program of METROLIST, INC., DBA RECOLORADO® Real estate listings held by brokers other than RE/MAX Professionals are marked with the IDX Logo. This information is being  provided for the consumers personal, non-commercial use and may not be  used for any other purpose. All information subject to change and  should be independently verified.
Copyright 2025 METROLIST, INC., DBA RECOLORADO® -- All Rights Reserved 6455 S. Yosemite St., Suite 500 Greenwood Village, CO 80111 USA
Listing information last updated on October 30th, 2025 at 6:06pm MDT.