Connect

3258 S Zeno Court J, Aurora, CO – $300,000

  • $300k Price
  • 2 Beds
  • 2 Baths
  • 988 Sqft
  • $300k Price
  • 2 Beds
  • 2 Baths
  • 988 Sqft

New Search X

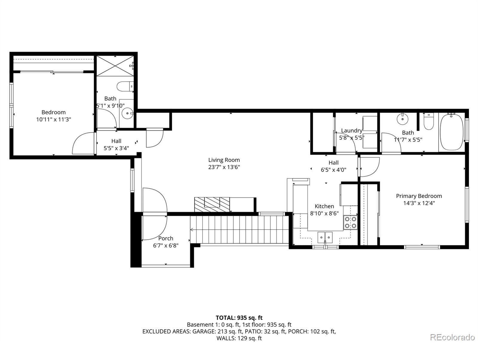
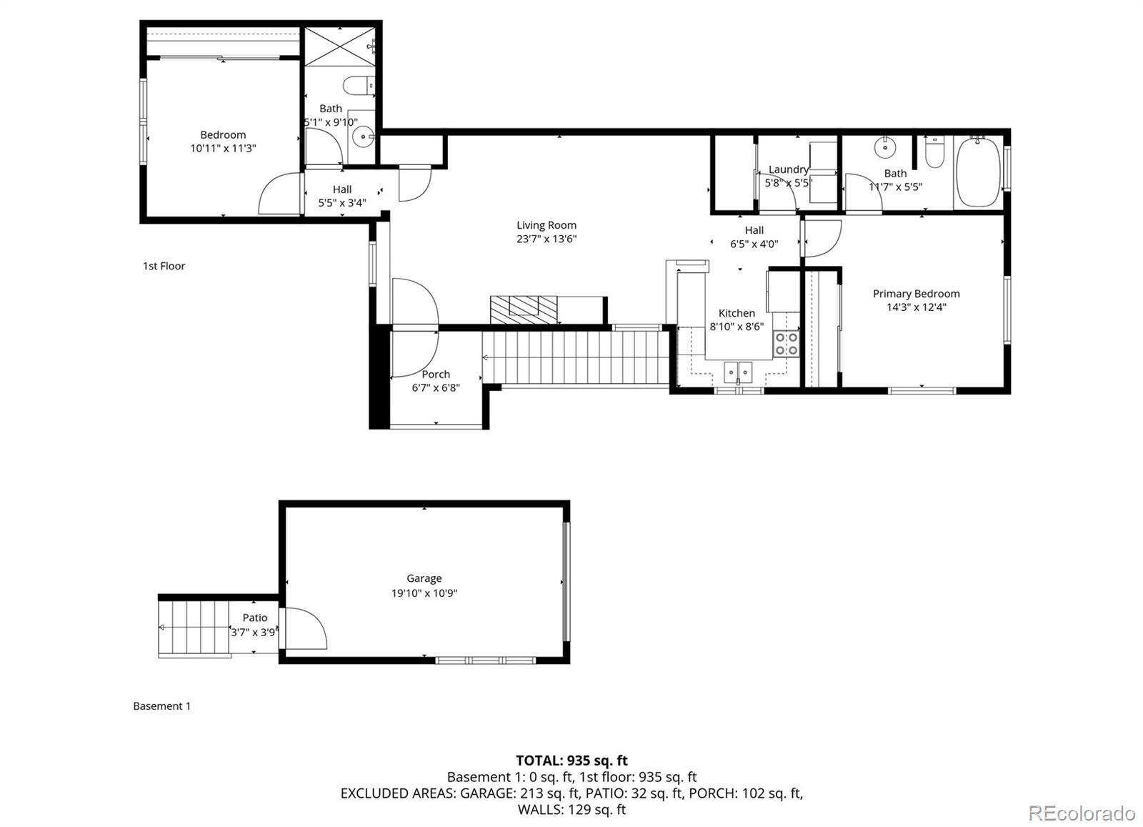
3258 S Zeno Court J

If you are looking for a beautiful, perfectly located end unit home, Don't miss this beautiful townhouse at Stone Canyon. 2 Spacious bedrooms and 2 baths at $300,000 is a steal! This quaint little gem has a lovely master bedroom with an ensuite full bath while the 2nd bedroom is located on the other side of the unit next to the 2nd bath. Perfect for privacy. You will love the new flooring throughout, all of the brad new paint and upper and lower built in shelving, a gas burning fire place, ceiling fan and modern lighting. The laundry next to the master bed comes with a washer/dryer and shelving for storage. Need EV charging, we have it! and its in the attached garage. Located in the Seven hills neighborhood its a short walk or drive to most amenities such as grocery and retail shopping, Aurora movie tavern, various eateries and more.

Listing Office: Keller Williams Real Estate LLC

Essential Information

  • MLS® #9437483
  • Price$300,000
  • Bedrooms2
  • Bathrooms2.00
  • Full Baths1
  • Square Footage988
  • Acres0.00
  • Year Built2000
  • TypeResidential
  • Sub-TypeCondominium
  • StatusActive

Community Information

  • Address3258 S Zeno Court J
  • SubdivisionSeven Hills
  • CityAurora
  • CountyArapahoe
  • StateCO
  • Zip Code80013

Amenities

  • AmenitiesPool
  • Parking Spaces2
  • Parking220 Volts
  • # of Garages1

Interior

  • HeatingForced Air
  • CoolingCentral Air
  • FireplaceYes
  • # of Fireplaces1
  • FireplacesGas
  • StoriesOne

Appliances

Dishwasher, Disposal, Dryer, Microwave, Range, Range Hood, Refrigerator, Washer

Exterior

  • RoofComposition

School Information

  • DistrictAdams-Arapahoe 28J
  • ElementaryDalton
  • MiddleColumbia
  • HighRangeview

Additional Information

  • Date ListedFebruary 8th, 2026

Listing Details

Keller Williams Real Estate LLC

Please provide a valid email address.

Terms and Conditions: The content relating to real estate for sale in this Web site comes in part from the Internet Data eXchange ("IDX") program of METROLIST, INC., DBA RECOLORADO® Real estate listings held by brokers other than RE/MAX Professionals are marked with the IDX Logo. This information is being provided for the consumers personal, non-commercial use and may not be used for any other purpose. All information subject to change and should be independently verified.

Copyright 2026 METROLIST, INC., DBA RECOLORADO® -- All Rights Reserved 6455 S. Yosemite St., Suite 500 Greenwood Village, CO 80111 USA

Listing information last updated on February 10th, 2026 at 1:48am MST.