Connect

1110 Missouri Flats Road, Central City, CO – $860,700

  • 2 Beds
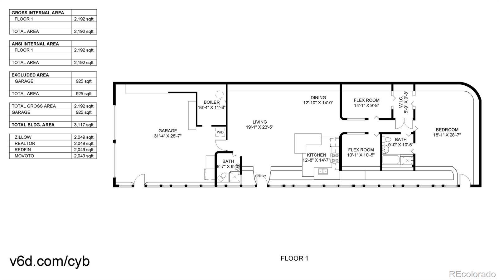
  • 2 Baths
  • 2,049 Sqft
  • 30½ Acres
  • 2 Beds
  • 2 Baths
  • 2,049 Sqft
  • 30½ Acres

New Search X

1110 Missouri Flats Road

Serene and secluded, this unique custom Earth Ship home built in 2004 and updated in 2025. This property is nestled into approximately 30.5 acres and offers a rare blend of mountain retreat and comfortable modern living with two bedrooms and two full baths set within a one-level design elegantly embedded into its hillside site. As you enter, new flooring flows through an open living and dining space warmed by gas and geothermal heat, while walls of concrete construction and high ceilings create an airy, light-filled ambiance. The step-up kitchen includes tile countertops, stainless steel appliances, a gas cooktop, double ovens, and generous cabinetry, perfect for both everyday cooking and hosting friends. The primary suite includes generous closet space and a well-appointed bath with tile finishes, while an additional bedroom and half bathroom serve guests with thoughtful comfort. Property includes several historic mining sites and relics. Surrounded by mature pines, expansive views of the Rocky Mountains, and open space, the location is a nature lover’s dream yet remains just minutes from the historic town of Central City and Black Hawk with their gaming, dining, and cultural venues. Outdoor enthusiasts will enjoy easy access to hiking and mountain biking in nearby Black Hawk open space, winter recreation at nearby ski areas, and scenic drives along Central City Parkway into Idaho Springs. Located within the Gilpin County school district, this home offers tranquility, mountain lifestyle, and dependable craftsmanship a rare offering among mountain estate properties.

Listing Office: Heritage West Realty LLC

Essential Information

  • MLS® #9475070
  • Price$860,700
  • Bedrooms2
  • Bathrooms2.00
  • Full Baths1
  • Square Footage2,049
  • Acres30.50
  • Year Built2004
  • TypeResidential
  • Sub-TypeSingle Family Residence
  • StyleMountain Contemporary
  • StatusActive

Community Information

  • Address1110 Missouri Flats Road
  • SubdivisionGilpin County
  • CityCentral City
  • CountyGilpin
  • StateCO
  • Zip Code80427

Amenities

  • Parking Spaces17
  • ParkingGravel, Storage
  • # of Garages2
  • ViewMeadow, Mountain(s)

Utilities

Electricity Connected, Propane

Interior

  • CoolingNone
  • StoriesOne

Interior Features

High Ceilings, No Stairs, Smoke Free, Walk-In Closet(s)

Appliances

Dishwasher, Dryer, Gas Water Heater, Oven, Refrigerator, Washer, Water Purifier

Heating

Geothermal, Passive Solar, Wall Furnace

Exterior

  • RoofMetal
  • FoundationSlab

Exterior Features

Garden, Gas Valve, Private Yard

Lot Description

Borders Public Land, Landscaped, Many Trees, Meadow, Mountainous, Rolling Slope, Secluded, Subdividable

School Information

  • DistrictGilpin RE-1
  • ElementaryGilpin County School
  • MiddleGilpin County School
  • HighGilpin County School

Additional Information

  • Date ListedAugust 6th, 2025
  • ZoningResource Residential

Listing Details

  • Heritage West Realty LLC
Please provide a valid email address.

Terms and Conditions: The content relating to real estate for sale in this Web site comes in part from the Internet Data eXchange ("IDX") program of METROLIST, INC., DBA RECOLORADO® Real estate listings held by brokers other than RE/MAX Professionals are marked with the IDX Logo. This information is being provided for the consumers personal, non-commercial use and may not be used for any other purpose. All information subject to change and should be independently verified.

Copyright 2025 METROLIST, INC., DBA RECOLORADO® -- All Rights Reserved 6455 S. Yosemite St., Suite 500 Greenwood Village, CO 80111 USA

Listing information last updated on December 24th, 2025 at 2:03pm MST.