Connect

435 N 35 Avenue, Greeley, CO – $143,000

  • $143k Price
  • 3 Beds
  • 2 Baths
  • 1,344 Sqft
  • $143k Price
  • 3 Beds
  • 2 Baths
  • 1,344 Sqft

New Search X

435 N 35 Avenue

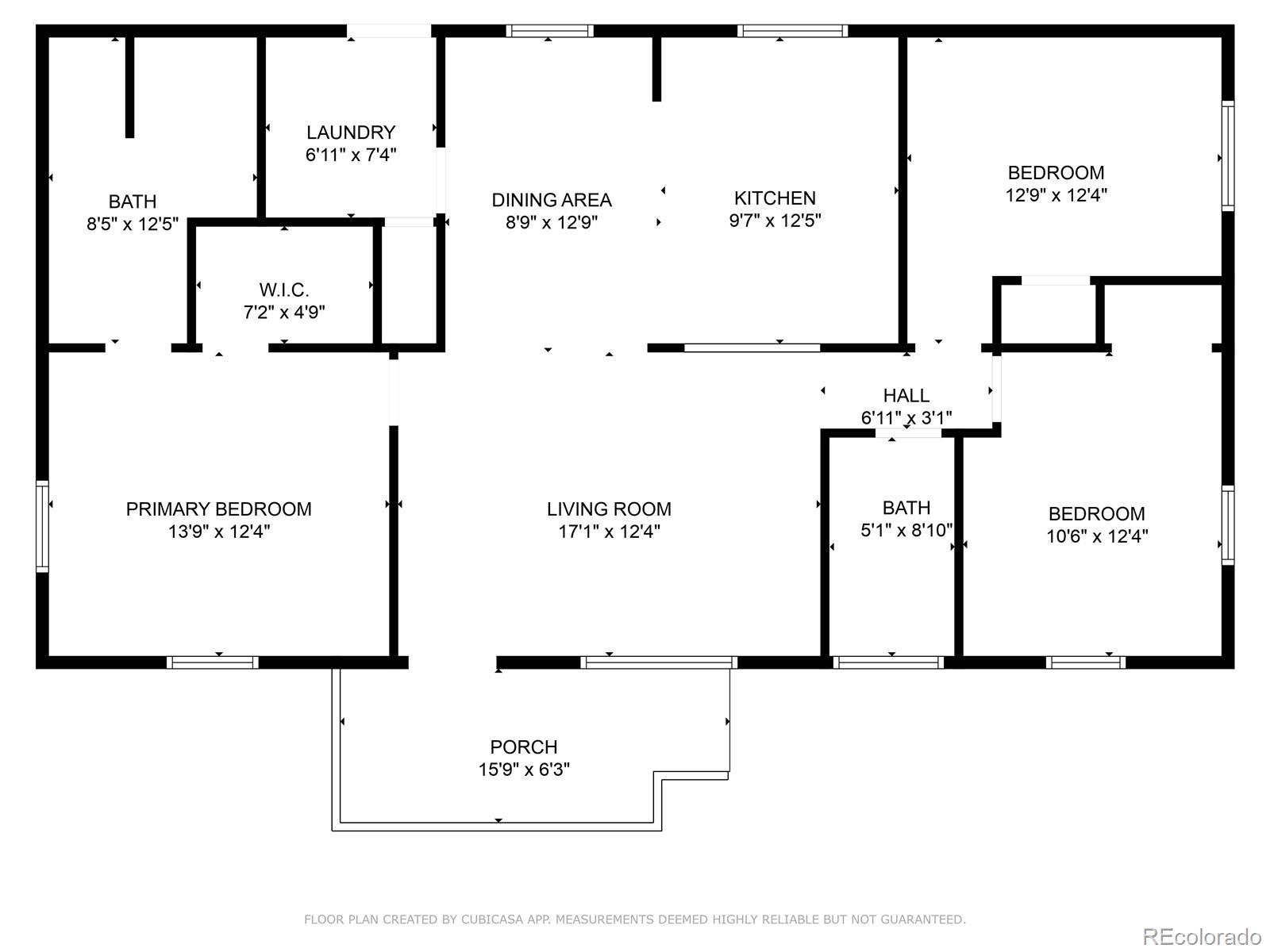
This spacious, 2011-built, 3 bed, 2 bath, 1344 SF home is located in an all-ages community & has a 2-car detached garage, 1 off-street parking space, & a storage shed! Pets allowed with approval. $973/month Lot Rent includes access to pool, basketball court, fishing pond, club house, picnic area/pavilion, horseshoe court, community events. Financing Available with 5% down payment. Situated on a larger, corner lot with a covered porch providing shaded, outdoor living space. Several rose buses adorn the exterior. Inside greets you with a clean, open, & functional layout that allows in plenty of natural light & has larger rooms. All appliances, washer & dryer included; wine fridge in the well-appointed kitchen with plenty of cabinets and storage. Vaulted ceilings, tile and laminate floors, & neutral colors to decorate around. Home has been well-kept. Primary bedroom has a 7x5 walk-in closet & full primary bath attached. Located just 4 miles from vibrant Downtown Greeley, full of activities and local dining spots. Let me help you make your dream of home ownership within this community a reality!

Listing Office: RE/MAX Nexus

Essential Information

  • MLS® #9513218
  • Price$143,000
  • Bedrooms3
  • Bathrooms2.00
  • Full Baths2
  • Square Footage1,344
  • Acres0.00
  • Year Built2011
  • TypeManufactured In Park
  • Sub-TypeManufactured Home
  • StyleModular
  • StatusActive

Community Information

  • Address435 N 35 Avenue
  • CityGreeley
  • CountyWeld
  • StateCO
  • Zip Code80631

Amenities

  • Parking Spaces2
  • # of Garages2
  • Has PoolYes
  • PoolOutdoor Pool

Amenities

Clubhouse, Park, Playground, Pond Seasonal, Pool

Utilities

Electricity Available, Electricity Connected, Natural Gas Available, Natural Gas Connected

Parking

Concrete, Exterior Access Door, Lighted

Interior

  • HeatingForced Air
  • CoolingCentral Air

Interior Features

Ceiling Fan(s), High Speed Internet, No Stairs, Open Floorplan, Pantry, Primary Suite, Smoke Free, Vaulted Ceiling(s), Walk-In Closet(s)

Appliances

Dryer, Gas Water Heater, Oven, Range, Refrigerator, Washer, Wine Cooler

Exterior

  • Lot DescriptionLevel
  • RoofComposition

Windows

Double Pane Windows, Window Coverings

School Information

  • DistrictGreeley 6
  • ElementaryWinograd K-8
  • MiddleFranklin
  • HighNorthridge

Additional Information

  • Date ListedOctober 24th, 2025

Listing Details

  • RE/MAX Nexus
Please provide a valid email address.

Terms and Conditions: The content relating to real estate for sale in this Web site comes in part from the Internet Data eXchange ("IDX") program of METROLIST, INC., DBA RECOLORADO® Real estate listings held by brokers other than RE/MAX Professionals are marked with the IDX Logo. This information is being provided for the consumers personal, non-commercial use and may not be used for any other purpose. All information subject to change and should be independently verified.

Copyright 2025 METROLIST, INC., DBA RECOLORADO® -- All Rights Reserved 6455 S. Yosemite St., Suite 500 Greenwood Village, CO 80111 USA

Listing information last updated on November 1st, 2025 at 10:18am MDT.