Connect

22340 Us Highway 6 1784, Keystone, CO – $525,000

  • $525k Price
  • 1 Bed
  • 2 Baths
  • 712 Sqft
  • $525k Price
  • 1 Bed
  • 2 Baths
  • 712 Sqft

New Search X

22340 Us Highway 6 1784

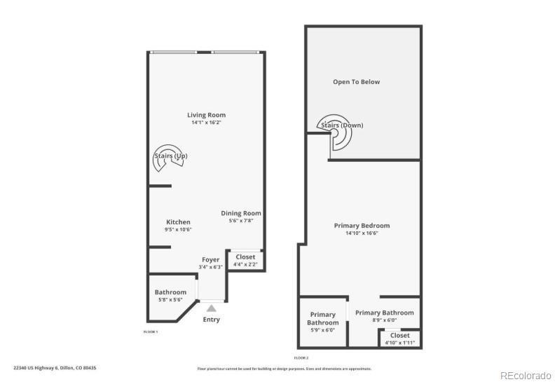
The only one bedroom with an extra half-bath in Keystone! Lowest HOA fees for a 1 bed in Keystone! No Transfer fee. No Resort/Neighborhood fee! Wall of windows • Forested hillside views • Near Keystone Lake and River Run Village Located in Keystone’s Lakeside Village, this two-level Decatur Condo offers 1 bedroom, 1.5 baths, and 712 square feet with an open main living area and upper-level primary suite. A dramatic wall of windows frames forested hillside views and brings in abundant natural light. The main level includes a living area with wood-burning stove, open kitchen, and half bath for guests. The upper level is dedicated to the primary bedroom with full en-suite bath, allowing flexible furniture and sleeping arrangements. The building offers elevator access, common-area laundry, underground unassigned parking, owner bike storage in the garage, and ski storage. Community amenities include a pool, indoor hot tub, sauna, clubhouse, and maintained paths. HOA dues include water, sewer, WiFi, building insurance, and common area maintenance. The property is near Keystone Lake, Lakeside Village shops and restaurants, the Keystone Conference Center, and River Run Village, with nearby access to resort shuttle routes, the Keystone bike path system, and Keystone Resort skiing and year-round recreation. Short-term rental use is permitted by the HOA; buyers should verify current Town of Keystone ordinances. Includes 3D Zillow walkthrough tour and floor plan with MLS photos.

Listing Office: Coldwell Banker Mountain Properties

Essential Information

  • MLS® #9635814
  • Price$525,000
  • Bedrooms1
  • Bathrooms2.00
  • Full Baths1
  • Half Baths1
  • Square Footage712
  • Acres0.00
  • Year Built1979
  • TypeResidential
  • Sub-TypeCondominium
  • StyleLoft
  • StatusActive

Community Information

  • Address22340 Us Highway 6 1784
  • SubdivisionKeystone
  • CityKeystone
  • CountySummit
  • StateCO
  • Zip Code80435

Amenities

  • Parking Spaces1
  • # of Garages1
  • ViewMountain(s)
  • Has PoolYes
  • PoolIndoor

Amenities

Bike Storage, Coin Laundry, Elevator(s), Parking, Pool, Sauna, Spa/Hot Tub

Interior

  • HeatingBaseboard
  • CoolingNone
  • FireplaceYes
  • # of Fireplaces1
  • StoriesTwo

Interior Features

Elevator, Entrance Foyer, Five Piece Bath, High Ceilings, High Speed Internet, Laminate Counters, Open Floorplan, Smoke Free, Vaulted Ceiling(s)

Appliances

Dishwasher, Disposal, Microwave, Oven, Range, Refrigerator

Fireplaces

Free Standing, Living Room, Wood Burning Stove

Exterior

  • WindowsWindow Coverings
  • RoofMetal

Exterior Features

Elevator, Gas Grill, Playground, Spa/Hot Tub

Lot Description

Mountainous, Near Public Transit, Near Ski Area, Open Space

School Information

  • DistrictSummit RE-1
  • ElementarySummit Cove
  • MiddleSummit
  • HighSummit

Additional Information

  • Date ListedJanuary 2nd, 2026
  • ZoningCPUD

Listing Details

Coldwell Banker Mountain Properties

Please provide a valid email address.

Terms and Conditions: The content relating to real estate for sale in this Web site comes in part from the Internet Data eXchange ("IDX") program of METROLIST, INC., DBA RECOLORADO® Real estate listings held by brokers other than RE/MAX Professionals are marked with the IDX Logo. This information is being provided for the consumers personal, non-commercial use and may not be used for any other purpose. All information subject to change and should be independently verified.

Copyright 2026 METROLIST, INC., DBA RECOLORADO® -- All Rights Reserved 6455 S. Yosemite St., Suite 500 Greenwood Village, CO 80111 USA

Listing information last updated on February 2nd, 2026 at 8:18pm MST.