Connect

6480 Willow Broom Trail, Littleton, CO – $1,350,000

  • 4 Beds
  • 4 Baths
  • 3,946 Sqft
  • .35 Acres
  • 4 Beds
  • 4 Baths
  • 3,946 Sqft
  • .35 Acres

New Search X

6480 Willow Broom Trail

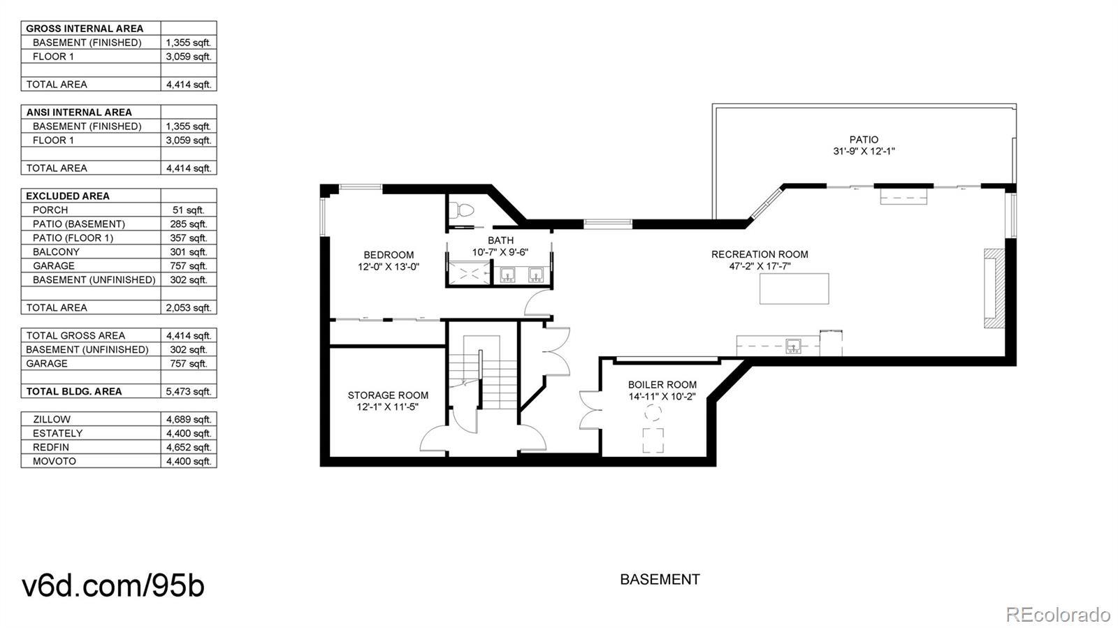
This Roxborough Park ranch-style home showcases views of Arrowhead Golf Course, ancient red rock formations, and the glittering city lights! Step inside to a spacious great room that flows seamlessly into the formal dining area-deal for hosting gatherings both large and intimate. Hardwood floors run throughout the main level, with soft carpet in the bedrooms and tile in the baths. The dining room features a convenient dry bar, a linen-drum light fixture, and space for varied table styles plus a buffet or sideboard. Just inside the foyer, a private study with French doors and custom ceiling detail creates a sophisticated home office. The gourmet eat-in kitchen impresses with slab granite counters, large island, and walk-in pantry, making it a chef’s dream. The expansive primary suite offers new carpet, a sitting area, five-piece bath, walk-in closet, and glass doors to the composite deck. The retreat easily accommodates a reading nook or second office. The updated guest bath highlights an artistic copper dragonfly sink—sure to spark conversation—and 2 secondary bedrooms share a functional Jack-and-Jill bath. The main-floor laundry includes washer, dryer, utility sink, and cabinetry for storage. The newly finished walkout level is designed for entertaining with LVP flooring, a wet bar, seating area with gas log fireplace, and recreation space perfect for a pool table, fitness area, or media setup. The spa-inspired ¾ bath adjoins a spacious guest bedroom. A workshop, large storage/utility room, and a crawlspace, ensure abundant storage. Outdoor living shines with a newer composite deck, a walled area ideal for a dog run, and a large front flagstone patio that easily hosts multiple seating groups. The three-car garage provides room for cars, toys, and tools. Siding and facing designated greenbelts, this home enjoys privacy and a wide-open feel with nature surrounding you—yet all within minutes of trails, Roxborough State Park, and conveniences.

Listing Office: RE/MAX Synergy

Essential Information

  • MLS® #9647658
  • Price$1,350,000
  • Bedrooms4
  • Bathrooms4.00
  • Full Baths2
  • Half Baths1
  • Square Footage3,946
  • Acres0.35
  • Year Built1996
  • TypeResidential
  • Sub-TypeSingle Family Residence
  • StyleContemporary
  • StatusActive

Community Information

  • Address6480 Willow Broom Trail
  • SubdivisionRoxborough Park
  • CityLittleton
  • CountyDouglas
  • StateCO
  • Zip Code80125

Amenities

  • Parking Spaces3
  • # of Garages3
  • ViewCity, Golf Course, Mountain(s)

Amenities

Clubhouse, Park, Playground, Trail(s)

Utilities

Electricity Connected, Natural Gas Connected

Parking

Concrete, Exterior Access Door, Finished Garage

Interior

  • HeatingForced Air, Natural Gas
  • CoolingCentral Air
  • FireplaceYes
  • # of Fireplaces2
  • StoriesOne

Interior Features

Built-in Features, Eat-in Kitchen, Entrance Foyer, Five Piece Bath, Granite Counters, High Ceilings, High Speed Internet, Jack & Jill Bathroom, Kitchen Island, Open Floorplan, Pantry, Primary Suite, Radon Mitigation System, Smoke Free, Vaulted Ceiling(s), Walk-In Closet(s), Wet Bar

Appliances

Dishwasher, Disposal, Gas Water Heater, Microwave, Range, Refrigerator, Self Cleaning Oven

Fireplaces

Basement, Gas, Gas Log, Great Room, Recreation Room

Exterior

  • Exterior FeaturesBalcony
  • RoofConcrete
  • FoundationSlab

Lot Description

Corner Lot, Cul-De-Sac, Landscaped, Sprinklers In Front, Sprinklers In Rear

Windows

Double Pane Windows, Window Coverings

School Information

  • DistrictDouglas RE-1
  • ElementaryRoxborough
  • MiddleRanch View
  • HighThunderridge

Additional Information

  • Date ListedFebruary 16th, 2026
  • ZoningPDU

Listing Details

  • RE/MAX Synergy
Please provide a valid email address.

Terms and Conditions: The content relating to real estate for sale in this Web site comes in part from the Internet Data eXchange ("IDX") program of METROLIST, INC., DBA RECOLORADO® Real estate listings held by brokers other than RE/MAX Professionals are marked with the IDX Logo. This information is being provided for the consumers personal, non-commercial use and may not be used for any other purpose. All information subject to change and should be independently verified.

Copyright 2026 METROLIST, INC., DBA RECOLORADO® -- All Rights Reserved 6455 S. Yosemite St., Suite 500 Greenwood Village, CO 80111 USA

Listing information last updated on March 4th, 2026 at 1:48pm MST.