Connect

469 Harrison Street, Denver, CO – $1,050,000

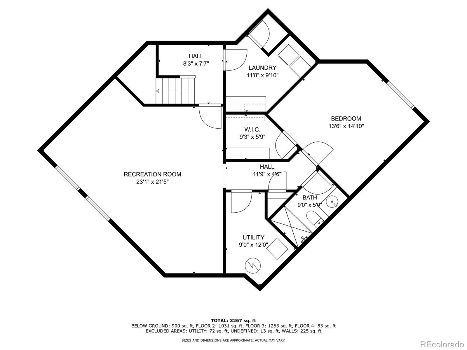
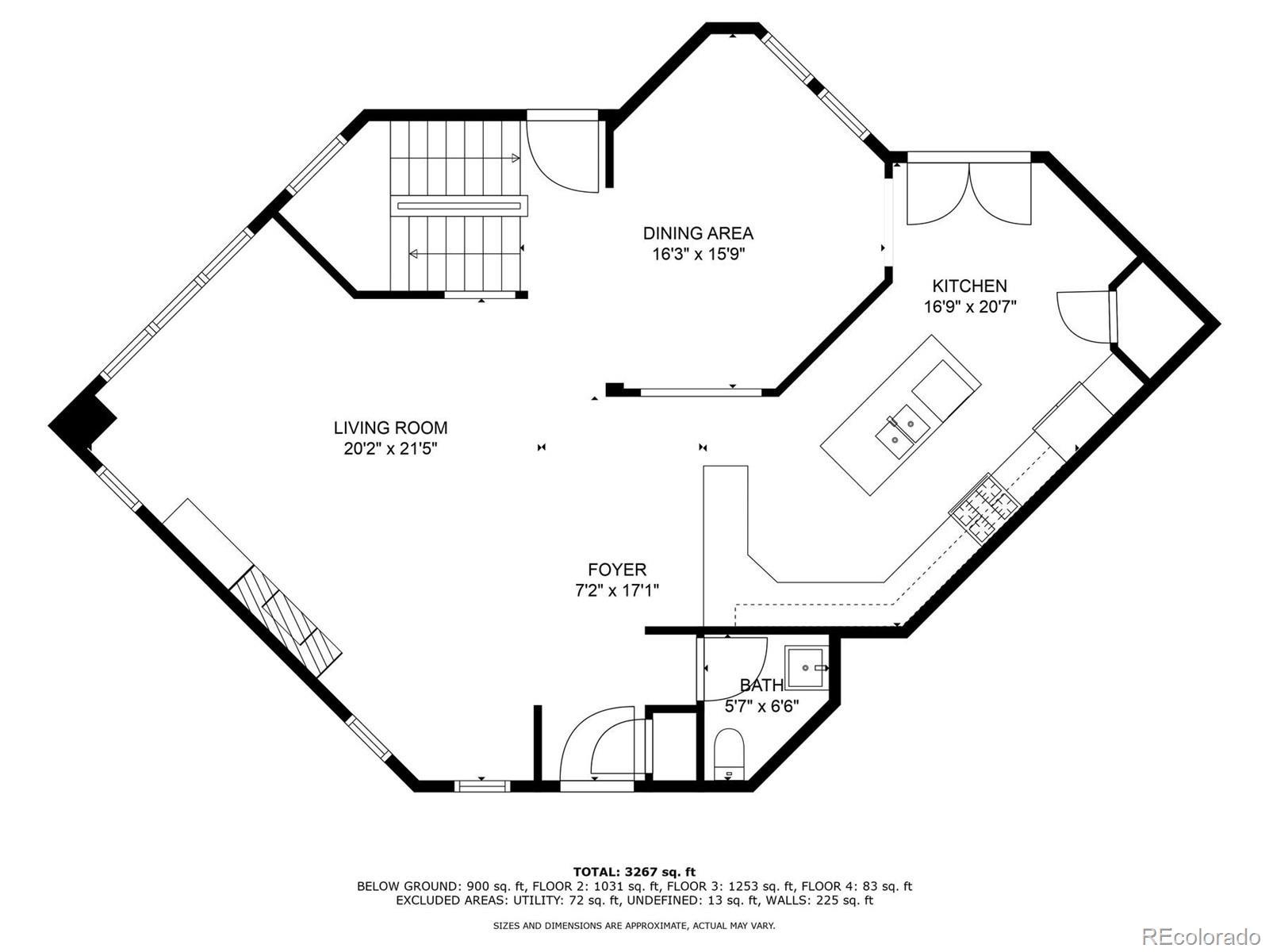
  • 3 Beds
  • 4 Baths
  • 3,455 Sqft
  • .08 Acres
  • 3 Beds
  • 4 Baths
  • 3,455 Sqft
  • .08 Acres

New Search X

469 Harrison Street

OPEN HOUSE SATURDAY NOV 8TH 11-2. HUGE PRICE REDUCTION!! A GREAT DEAL JUST BECAME A FANTASTIC VALUE!!! MOTIVATED SELLER IN NORTH CHERRY CREEK! Extremely well maintained-- including newer Roof, Windows and HVAC. BEST PRICE PSF/ NO HOA! Motivated Seller. Extra wide floor plan with Semi-Open effect; Large Rooms with an abundance of Natural Light. Chef's Kitchen with generous room for convenience and hosting. The dining room accommodates a large, 10 seat dining table with room to spare. LARGE SCALE SPACES. Equally impressive is the expansive Primary Suite on the 2nd floor; En Suite Bath and a gigantic Walk-In Closet plus secondary Laundry Station. Also on the second level, there is a Guest Room with En Suite Bath. A large Loft space is perfect for a Study, Den or Playroom. Venture up one more level and you will find panoramic views from the West Facing Roof Top Deck. The Lower Level is nicely finished with a large Media Room (room for exercise equipment); there is a generous 3rd Bedroom and another Bathroom. The Laundry Room is tricked out and there is loads of Storage. There is an oversized, Attached, 2-Car Garage with easy, level ally access. One of the best features of this home is the Extremely PRIVATE AND PEACEFUL al fresco PATIO with a gas fireplace and garden spaces. The Patio is shaded by mature trees and new awnings. A second Patio area creates an ideal dog run area. This Home is on the West side of Harrison and does not back up to Colorado Blvd. Further, this home is the back portion of the duplex and therefore has a very serene feel to it. Come and see this terrific home that is priced for a quick sell--you will not be disappointed. Every detail of this home is in EXCEPTIONAL CONDITION; we have a great LOCATION within walking distance to all things Cherry Creek, and we are the BEST PRICED HOME in Cherry Creek!

Listing Office: LIV Sotheby's International Realty

Essential Information

  • MLS® #9759396
  • Price$1,050,000
  • Bedrooms3
  • Bathrooms4.00
  • Full Baths1
  • Half Baths1
  • Square Footage3,455
  • Acres0.08
  • Year Built1998
  • TypeResidential
  • Sub-TypeSingle Family Residence
  • StyleContemporary
  • StatusActive

Community Information

  • Address469 Harrison Street
  • SubdivisionCherry Creek
  • CityDenver
  • CountyDenver
  • StateCO
  • Zip Code80206

Amenities

  • Parking Spaces2
  • # of Garages2
  • ViewCity, Mountain(s)

Utilities

Electricity Connected, Internet Access (Wired), Natural Gas Connected, Phone Connected

Parking

Concrete, Dry Walled, Finished Garage, Floor Coating, Oversized, Storage

Interior

  • HeatingForced Air
  • CoolingCentral Air
  • FireplaceYes
  • # of Fireplaces3
  • StoriesTwo

Interior Features

Built-in Features, Ceiling Fan(s), Eat-in Kitchen, Entrance Foyer, Five Piece Bath, High Ceilings, High Speed Internet, Kitchen Island, Open Floorplan, Pantry, Primary Suite, Smoke Free, Solid Surface Counters, Sound System, Walk-In Closet(s)

Appliances

Bar Fridge, Cooktop, Dishwasher, Disposal, Dryer, Electric Water Heater, Microwave, Oven, Refrigerator, Sump Pump, Washer

Fireplaces

Gas, Great Room, Outside, Primary Bedroom

Exterior

  • Exterior FeaturesBalcony, Fire Pit, Gas Valve
  • Lot DescriptionLevel
  • RoofMembrane
  • FoundationConcrete Perimeter

Windows

Double Pane Windows, Egress Windows, Window Coverings, Window Treatments

School Information

  • DistrictDenver 1
  • ElementarySteck
  • MiddleHill
  • HighGeorge Washington

Additional Information

  • Date ListedSeptember 11th, 2025
  • ZoningG-RH-3

Listing Details

LIV Sotheby's International Realty

Please provide a valid email address.

Terms and Conditions: The content relating to real estate for sale in this Web site comes in part from the Internet Data eXchange ("IDX") program of METROLIST, INC., DBA RECOLORADO® Real estate listings held by brokers other than RE/MAX Professionals are marked with the IDX Logo. This information is being provided for the consumers personal, non-commercial use and may not be used for any other purpose. All information subject to change and should be independently verified.

Copyright 2025 METROLIST, INC., DBA RECOLORADO® -- All Rights Reserved 6455 S. Yosemite St., Suite 500 Greenwood Village, CO 80111 USA

Listing information last updated on November 4th, 2025 at 6:03pm MST.