Connect

745 N Tempe Street, Aurora, CO – $474,900

  • $475k Price
  • 2,170 Sqft
  • .07 Acres
  • $475k Price
  • 2,170 Sqft
  • .07 Acres

New Search X

745 N Tempe Street

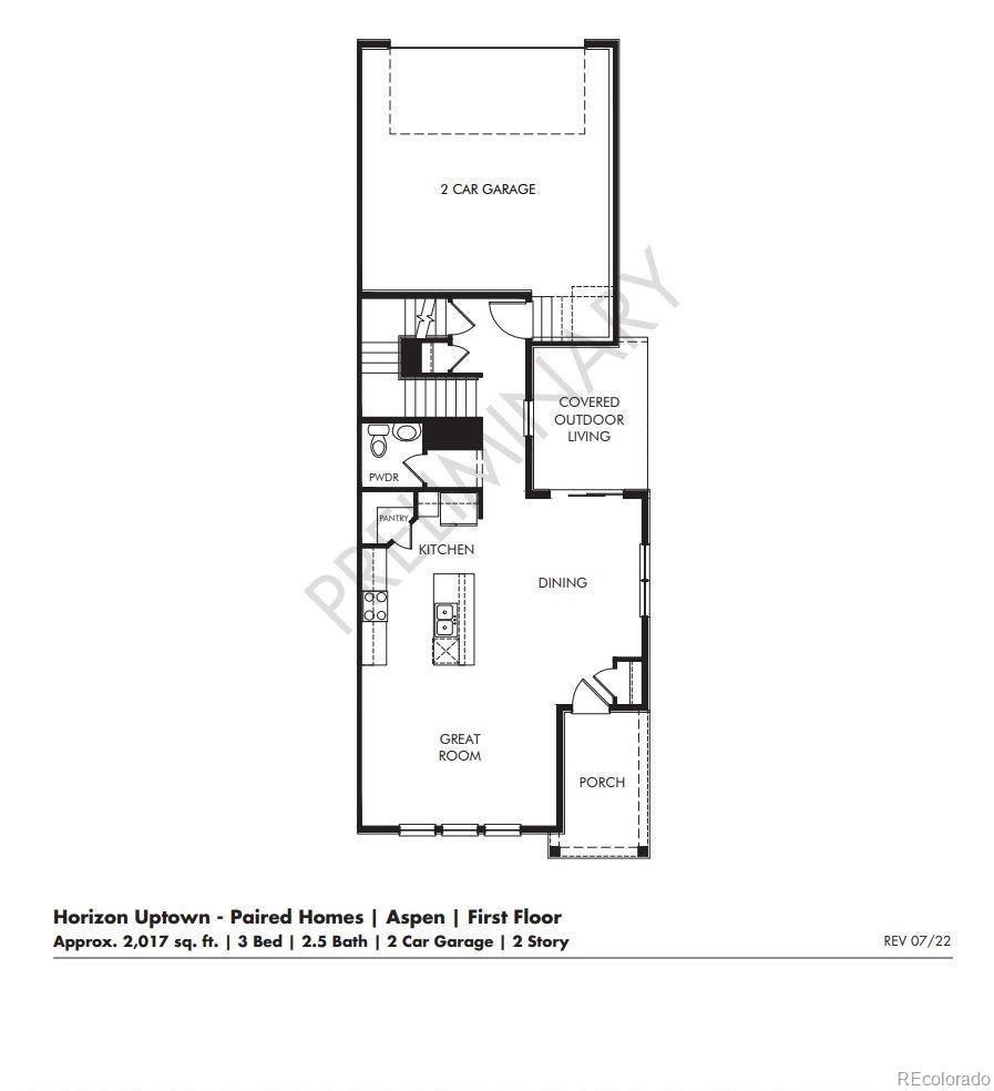
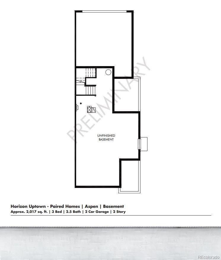
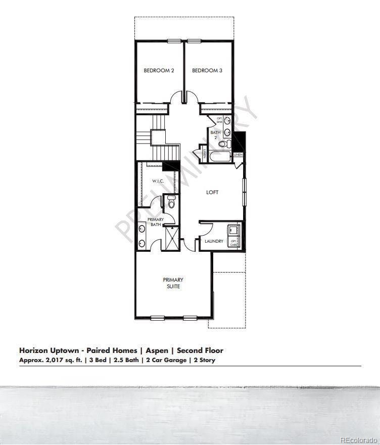
This Meritage home delivers an ideal blend of comfort, modern finishes, and thoughtful design. Built in 2023 and truly better than new, it offers all the benefits of a brand-new build without the dust, delays, or hassle. As you enter, the open-concept layout welcomes you with warmth. The kitchen, dining, and great room flow together easily, creating a bright, connected space perfect for everyday living or hosting friends. The kitchen features quartz countertops, a large island that invites gathering, a gas range, and beautiful tile work. A private, tucked-away powder room adds convenience on the main level. Upstairs, a spacious loft provides endless versatility—a home office, movie room, play area, or relaxing reading retreat. Two large secondary bedrooms sit near a beautifully finished bath, and the primary suite offers a peaceful place to unwind with double sinks, a large shower, a freestanding tub, and an impressive walk-in closet. The upper-level laundry makes daily routines easier. Outside, enjoy low-maintenance living with a concrete patio, small yard, and a covered side patio perfect for morning coffee and fresh mountain air. The unfinished basement provides room to grow and customize. Located in Horizon Uptown, one of the fastest-growing new neighborhoods, you’ll benefit from the brand-new in-community school and many planned amenities still to come. The home recently passed its 1-year builder inspection with flying colors. Sellers are offering concessions toward a 2/1 buydown, and the property qualifies for Vectra Bank’s CRA Affordable Housing Product with as little as 3% down, no PMI, reduced fees, and the possibility of a lender credit for first-time buyers.

Listing Office: Orchard Brokerage LLC

Essential Information

  • MLS® #9830067
  • Price$474,900
  • Bathrooms0.00
  • Square Footage2,170
  • Acres0.07
  • Year Built2023
  • TypeResidential
  • Sub-TypeSingle Family Residence
  • StatusActive

Community Information

  • Address745 N Tempe Street
  • SubdivisionHorizon Midtown
  • CityAurora
  • CountyArapahoe
  • StateCO
  • Zip Code80018

Amenities

  • Parking Spaces2
  • # of Garages2

Interior

  • HeatingForced Air
  • CoolingCentral Air
  • StoriesTwo

Exterior

  • RoofComposition

School Information

  • DistrictAdams-Arapahoe 28J
  • ElementaryVista Peak
  • MiddleVista Peak
  • HighVista Peak

Additional Information

  • Date ListedNovember 20th, 2025

Listing Details

  • Orchard Brokerage LLC
Please provide a valid email address.

Terms and Conditions: The content relating to real estate for sale in this Web site comes in part from the Internet Data eXchange ("IDX") program of METROLIST, INC., DBA RECOLORADO® Real estate listings held by brokers other than RE/MAX Professionals are marked with the IDX Logo. This information is being provided for the consumers personal, non-commercial use and may not be used for any other purpose. All information subject to change and should be independently verified.

Copyright 2025 METROLIST, INC., DBA RECOLORADO® -- All Rights Reserved 6455 S. Yosemite St., Suite 500 Greenwood Village, CO 80111 USA

Listing information last updated on November 26th, 2025 at 11:48pm MST.