Connect

4219 S Broadway, Englewood, CO – $19

  • $19 Price
  • 2,995 Sqft
  • .14 Acres
  • $19 Price
  • 2,995 Sqft
  • .14 Acres

New Search X

4219 S Broadway

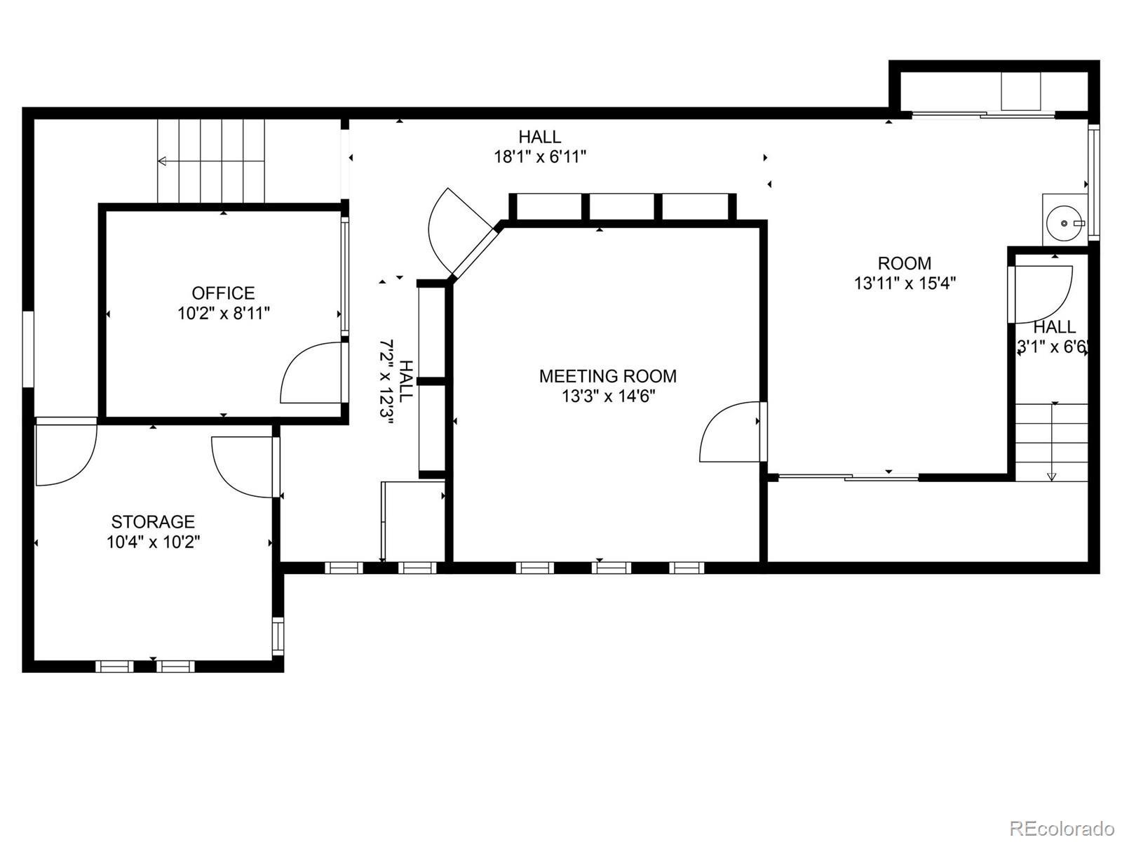
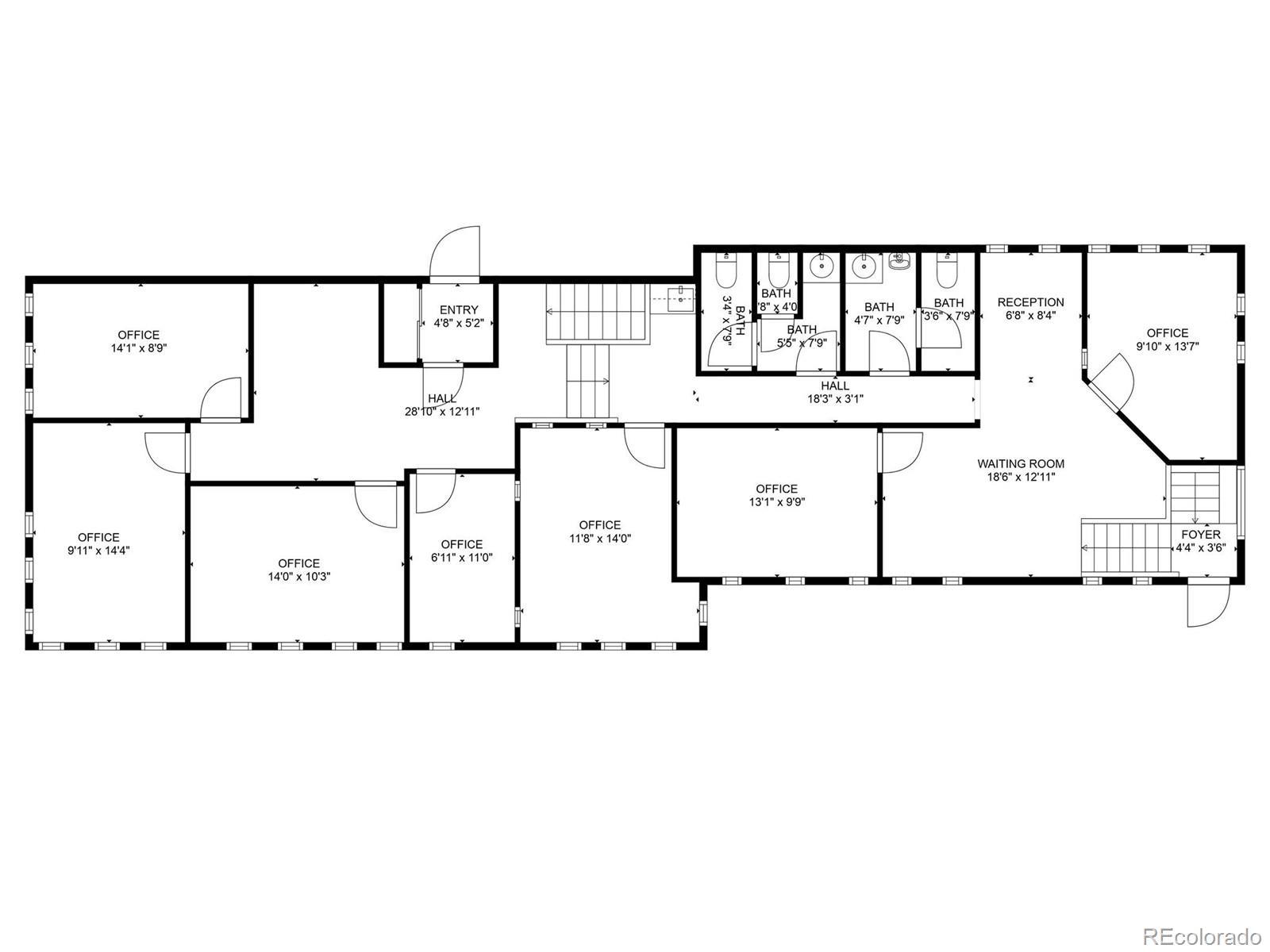
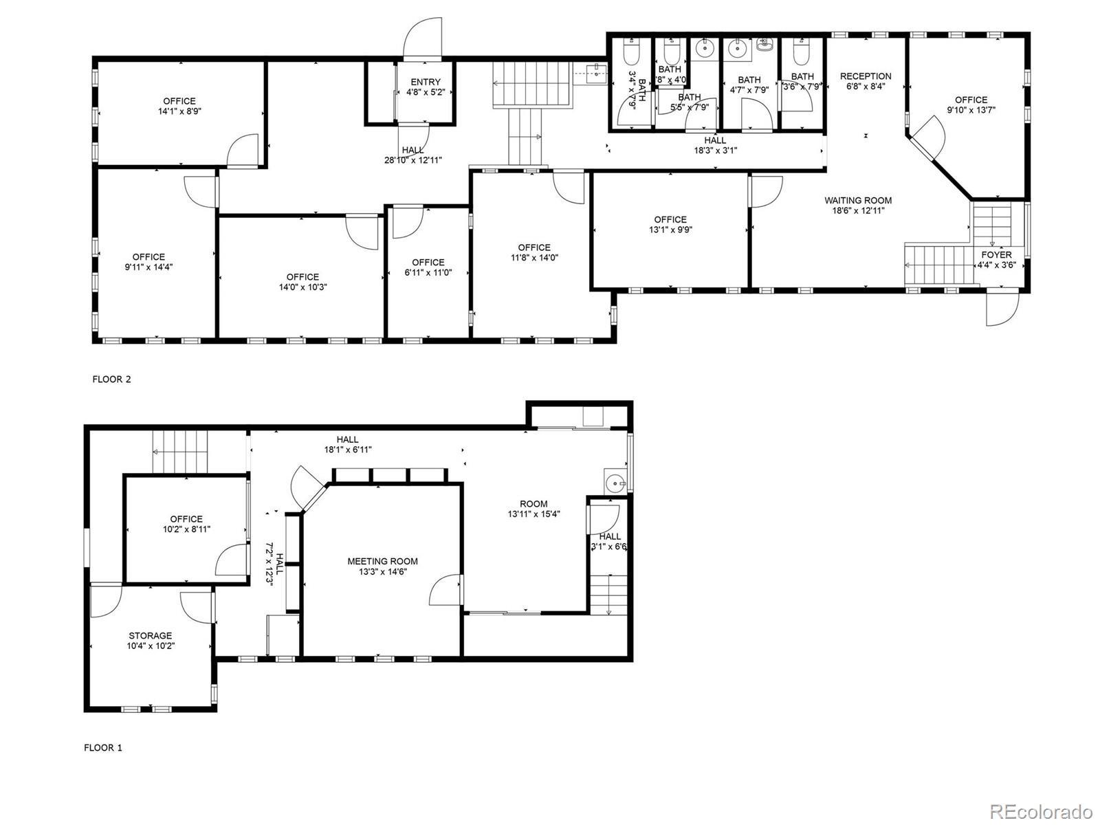
Position your business for success at 4219 S Broadway in Englewood—a versatile office property with excellent visibility, flexible space, and a prime location along one of the south metro area’s busiest commercial corridors. This freestanding building features prominent Broadway frontage, a large aluminum sign, and a double-sided illuminated monument sign for maximum exposure. Zoned MU-B-2, it supports a variety of commercial uses. The split-level layout offers seven private offices or classrooms, a reception area, two restrooms, and a break/copy room on the upper level. The lower level includes a large conference room, an additional office, and secure flex/storage space. The property was fully remodeled in 2015. Recent improvements include three new HVAC zones (2022) and updated LED lighting. With 10 private parking spaces and partially fenced exterior storage, this property is well-equipped for business operations. Currently configured as a health and beauty training facility, it’s move-in ready and can be easily adapted to your needs. Existing furniture and equipment are available and may be included in the lease, subject to negotiation. Property is also available for sale or lease-to own.

Listing Office: SVN / Denver Commercial LLC

Essential Information

  • MLS® #9918457
  • Price$19
  • Bathrooms0.00
  • Square Footage2,995
  • Acres0.14
  • Year Built1977
  • TypeCommercial Lease
  • Sub-TypeOffice
  • StatusActive
  • FeaturesSignage Included

Community Information

  • Address4219 S Broadway
  • CityEnglewood
  • CountyArapahoe
  • StateCO
  • Zip Code80113

Amenities

  • Parking Spaces10
  • ParkingAsphalt

Exterior

  • RoofMembrane, Rolled/Hot Mop

Additional Information

  • Date ListedFebruary 25th, 2026
  • ZoningMU-B-2

Listing Details

  • SVN / Denver Commercial LLC
Please provide a valid email address.

Terms and Conditions: The content relating to real estate for sale in this Web site comes in part from the Internet Data eXchange ("IDX") program of METROLIST, INC., DBA RECOLORADO® Real estate listings held by brokers other than RE/MAX Professionals are marked with the IDX Logo. This information is being provided for the consumers personal, non-commercial use and may not be used for any other purpose. All information subject to change and should be independently verified.

Copyright 2026 METROLIST, INC., DBA RECOLORADO® -- All Rights Reserved 6455 S. Yosemite St., Suite 500 Greenwood Village, CO 80111 USA

Listing information last updated on March 3rd, 2026 at 11:18pm MST.