Connect

315 Beaubien Avenue, Fort Garland, CO – $75,000

  • $75k Price
  • .15 Acres
  • $75k Price
  • .15 Acres

New Search X

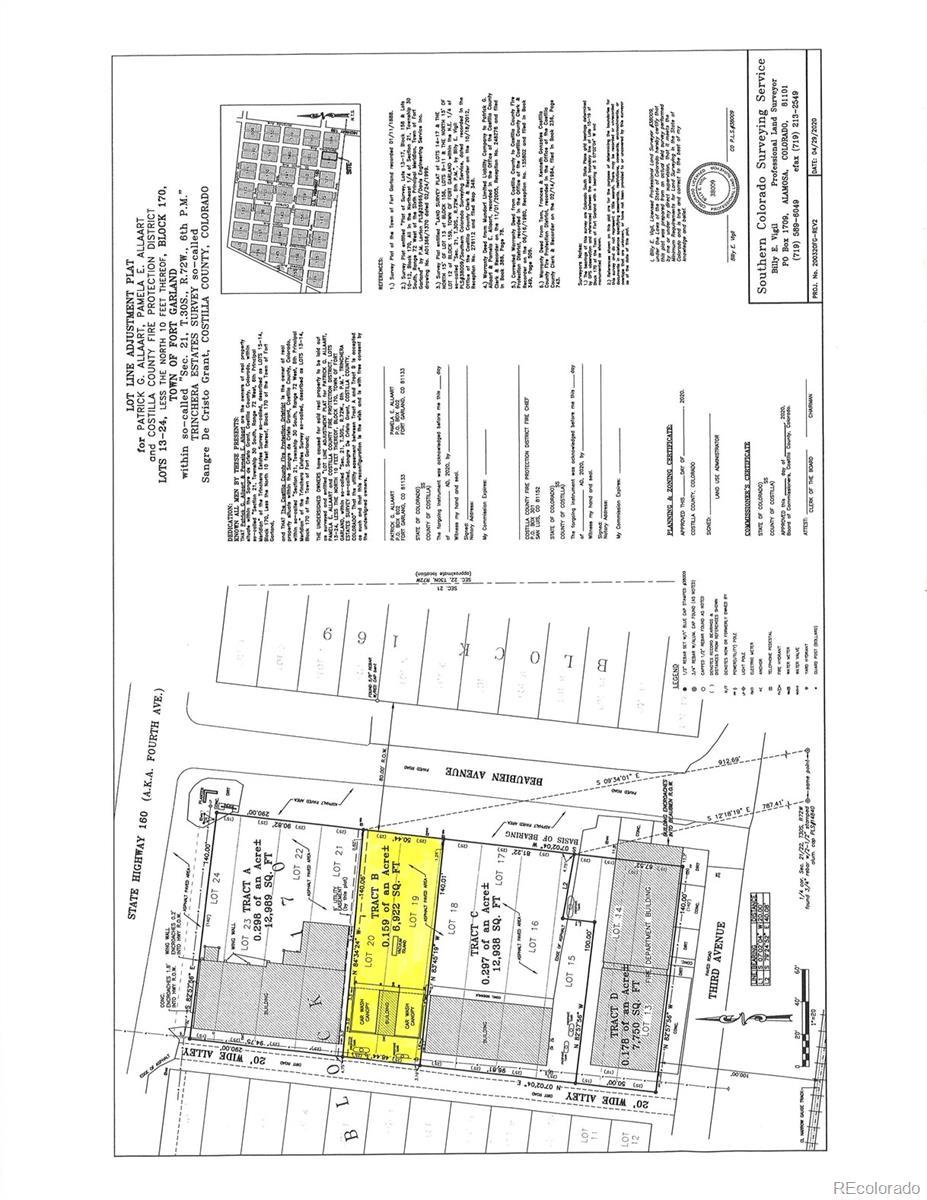
315 Beaubien Avenue

2 Bay Car wash includes , 1 trash canister, 2 vacuums, bill changer(needs repair or replace), Armorall & Towel Dispensers, soap bins,2 radiant heaters, metal roof and interior mechanical room. The Property is zoned commercial so one could get the car wash open and running again or remodel into what fits your needs! The property is surveyed. The Car Wash was built in 2007. Has paved parking directly off Beaubien Ave and Hwy 160 for fantastic high traffic access! This property has the potential to be a great income producing investment. The only car wash within 25-45 miles. With prime location just off the Gateway to the San Luis Valley ,inviting travelers enjoying travels south towards Taos New Mexico, Red River Ski Resort and west to a multitude of sites such as The Great sand Dunes National Park, Zapata Falls and so much more!

Listing Office: Mtn. Meadows Realty

Essential Information

  • MLS® #9931532
  • Price$75,000
  • Bathrooms0.00
  • Acres0.15
  • TypeCommercial Sale
  • Sub-TypeCommercial Land
  • StatusActive

Community Information

  • Address315 Beaubien Avenue
  • CityFort Garland
  • CountyCostilla
  • StateCO
  • Zip Code81123

Amenities

Utilities

Electricity Connected, Sewer Connected

Exterior

  • Lot DescriptionLevel

Additional Information

  • Date ListedSeptember 16th, 2025
  • ZoningCommercial

Listing Details

  • Mtn. Meadows Realty
Please provide a valid email address.

Terms and Conditions: The content relating to real estate for sale in this Web site comes in part from the Internet Data eXchange ("IDX") program of METROLIST, INC., DBA RECOLORADO® Real estate listings held by brokers other than RE/MAX Professionals are marked with the IDX Logo. This information is being provided for the consumers personal, non-commercial use and may not be used for any other purpose. All information subject to change and should be independently verified.

Copyright 2026 METROLIST, INC., DBA RECOLORADO® -- All Rights Reserved 6455 S. Yosemite St., Suite 500 Greenwood Village, CO 80111 USA

Listing information last updated on January 2nd, 2026 at 10:33pm MST.