Connect

556 Cajetan Street, Fort Collins, CO – $295,000

  • $295k Price
  • .14 Acres
  • $295k Price
  • .14 Acres

New Search X

556 Cajetan Street

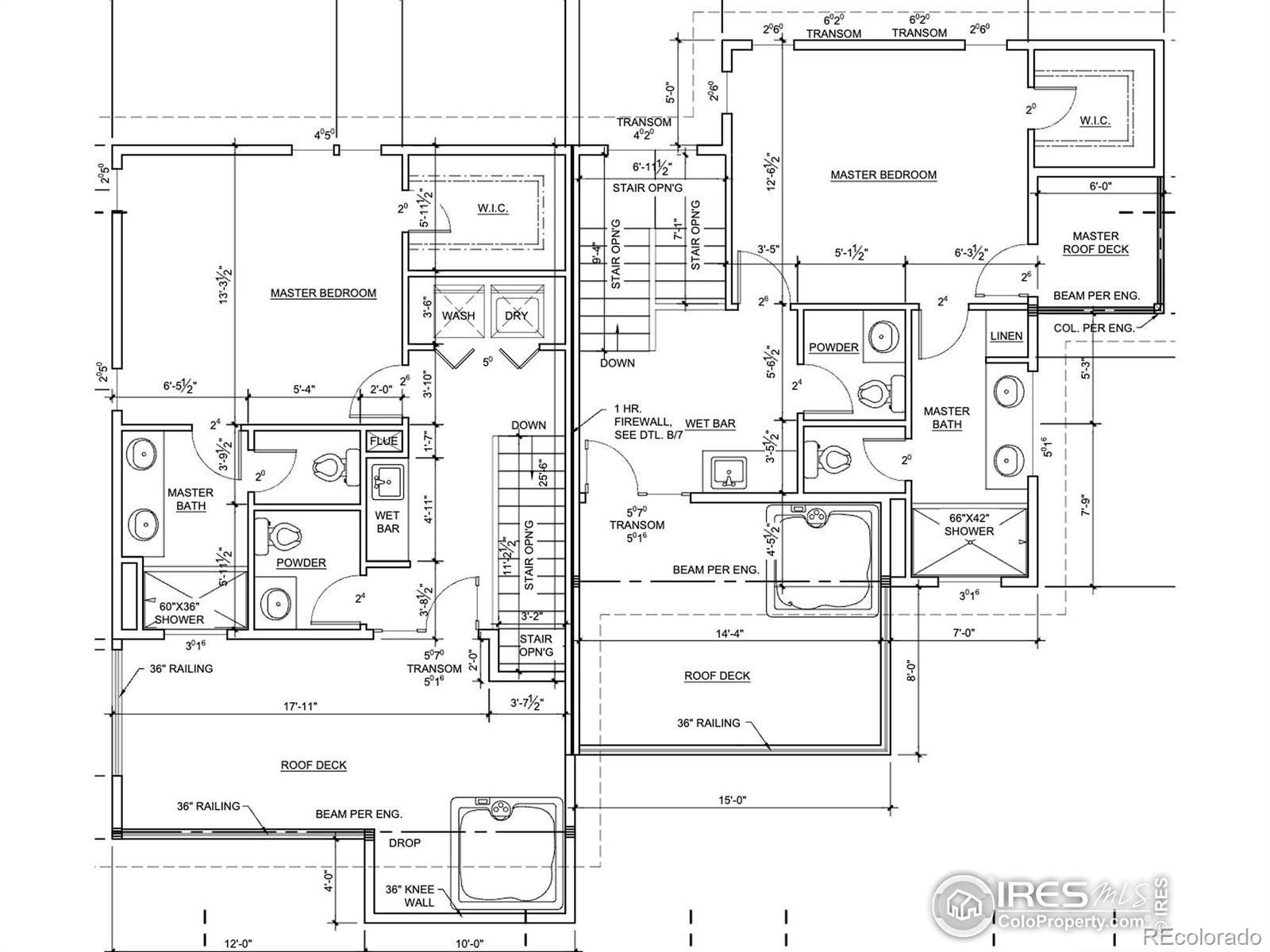
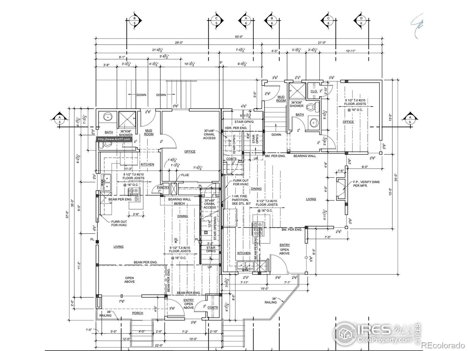
Price reduced! Attention Investors & Savvy Homebuilders! Here's an exceptional opportunity in Fort Collins - 556 Cajetan St is a prime corner lot that offers unmatched development potential in a high-demand locale. Positioned just steps from New Belgium Brewery and the Poudre Whitewater Park, this property is a strategic asset in one of the city's most vibrant neighborhoods. For investors, this lot is a dream come true: it's zoned under the CCN designation and, following a major amendment process, now permits development of up to four units. We're including fully completed architectural plans for a sophisticated three-unit build with a carriage house design, all approved for permit application. This turnkey aspect allows you to build in months, not years. For the homeowner investor looking to house hack, envision building your dream single-family home with an expansive yard while leveraging rental income from additional units to offset your mortgage. And the neighborhood's allowance for non-primary short-term rentals makes this property an even more attractive income generator. The seller has 10 years experience owning short term rentals in the neighborhood and estimates gross income for all 3 units being rented full-time short-term around $275k per year. The total lot size is truly impressive: with Tract A adding 7,606 sq ft to a 5,990 sq ft buildable envelope, you're looking at over 13,000 sq ft of potential. That's plenty of yard space to create an outdoor oasis or maximize your buildable area. This is a rare, value-add opportunity in Fort Collins that combines immediate rental potential and strong investor fundamentals.

Listing Office: Haagenson Investments

Essential Information

  • MLS® #IR1030284
  • Price$295,000
  • Bathrooms0.00
  • Acres0.14
  • TypeLand
  • Sub-TypeImproved Land
  • StatusActive

Community Information

  • Address556 Cajetan Street
  • SubdivisionOld Town North 4th Fil
  • CityFort Collins
  • CountyLarimer
  • StateCO
  • Zip Code80524

Amenities

  • AmenitiesTrail(s)
  • UtilitiesNatural Gas Available
  • ViewMountain(s)

School Information

  • DistrictPoudre R-1
  • ElementaryPutnam
  • MiddleOther
  • HighPoudre

Additional Information

  • Date ListedApril 4th, 2025
  • ZoningCCN

Listing Details

  • Haagenson Investments
Please provide a valid email address.

Terms and Conditions: The content relating to real estate for sale in this Web site comes in part from the Internet Data eXchange ("IDX") program of METROLIST, INC., DBA RECOLORADO® Real estate listings held by brokers other than RE/MAX Professionals are marked with the IDX Logo. This information is being provided for the consumers personal, non-commercial use and may not be used for any other purpose. All information subject to change and should be independently verified.

Copyright 2025 METROLIST, INC., DBA RECOLORADO® -- All Rights Reserved 6455 S. Yosemite St., Suite 500 Greenwood Village, CO 80111 USA

Listing information last updated on October 23rd, 2025 at 10:48pm MDT.