Connect

1110 S Deuel Street, Fort Morgan, CO – $651,737

  • 3 Beds
  • 3 Baths
  • 1,981 Sqft
  • .23 Acres
  • 3 Beds
  • 3 Baths
  • 1,981 Sqft
  • .23 Acres

New Search X

1110 S Deuel Street

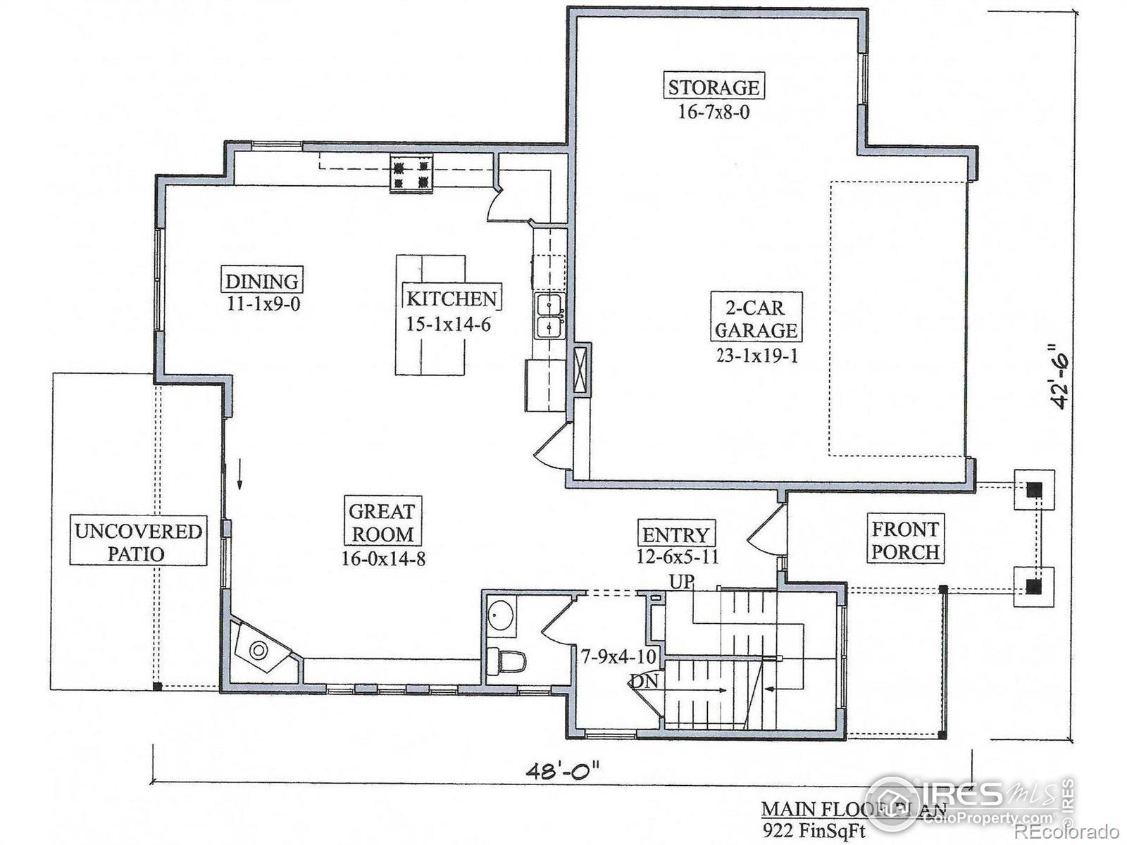
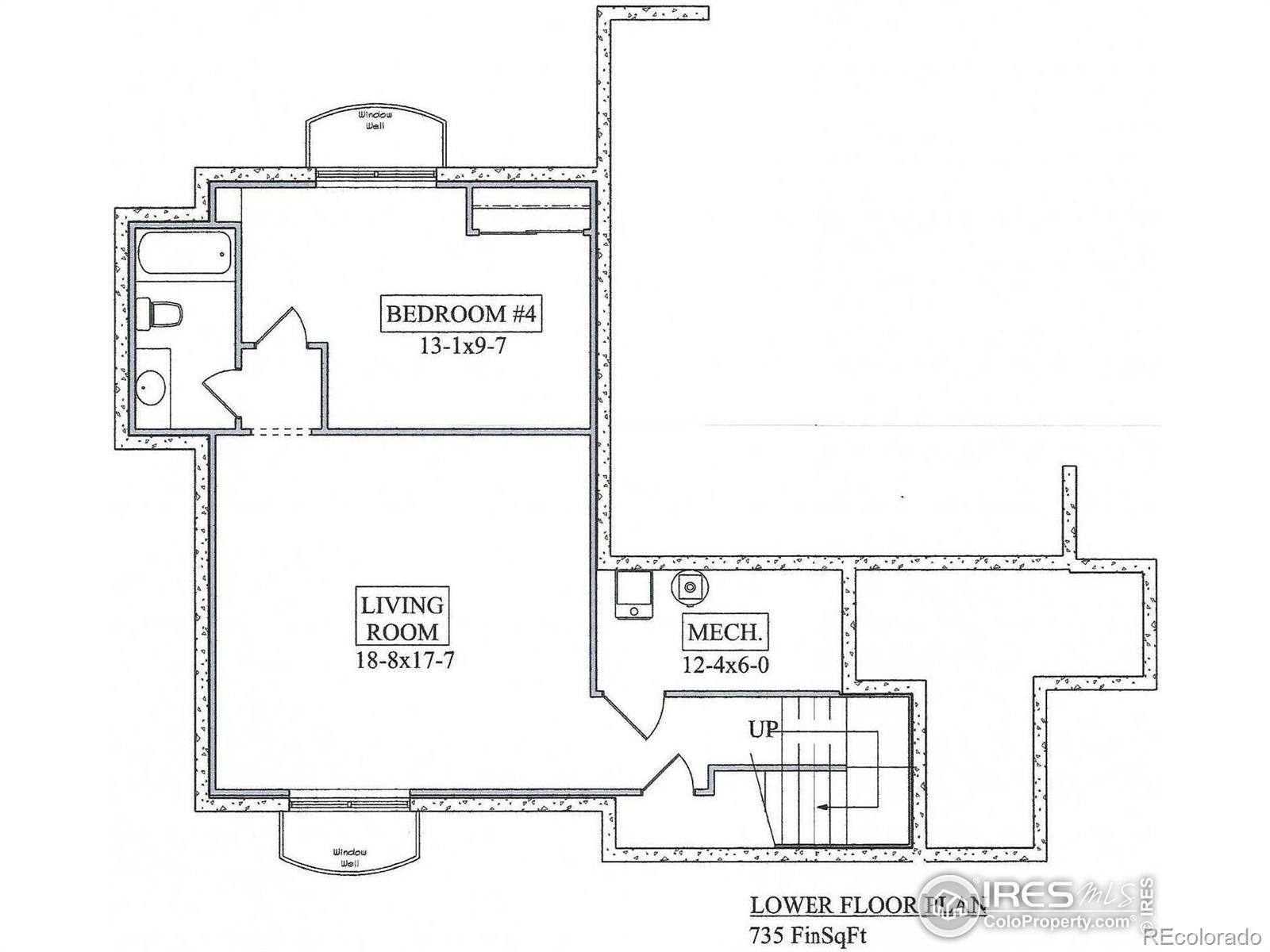
NEW Interior pictures added! Rare opportunity to purchase a NEW Home without the wait! Welcome to this semi-custom-built home featuring a minimalist design, open floor plan & bold colors. Walk through your covered front porch into an expansive 20ft tall foyer to a spacious living room w/LVP flooring & that opens into your gourmet kitchen w/soft-close cabinets, GE Cafe Appliances & a huge 4x8 ft Quartz Island. Sliding doors lead to your partially covered patio w/recessed lighting & easy access to the private open spaces. Powder room on main level for added convenience.Two car atttached garage plus 16x8 workshop area. Landscaped front yard w/sprinkler system to keep your yard looking beautiful & welcoming. The upper level features 2 large bedrooms w/built-in shelving, 3/4 bathroom & conveniently located laundry room. The crown jewel primary features a trey ceiling, walk-in closet w/built-in shelving & one-of-a-kind wet room shower/bathtub with floor-to-ceiling tile & separate water closet. The insulated basement offers opportunity for expansion with 9ft ceilings, rough-in plumbing for additional bathroom or wet-bar & two egress windows. Call to see this beautiful custom home today! Access to walking paths, park, pond & fire pits provided exclusively for residents of The Bijou.

Listing Office: Best Life Realty

Essential Information

  • MLS® #IR1033246
  • Price$651,737
  • Bedrooms3
  • Bathrooms3.00
  • Full Baths2
  • Half Baths1
  • Square Footage1,981
  • Acres0.23
  • Year Built2025
  • TypeResidential
  • Sub-TypeSingle Family Residence
  • StatusActive

Community Information

  • Address1110 S Deuel Street
  • SubdivisionBijou
  • CityFort Morgan
  • CountyMorgan
  • StateCO
  • Zip Code80701

Amenities

  • AmenitiesPark, Playground, Trail(s)
  • Parking Spaces2
  • ParkingOversized Door
  • # of Garages2
  • ViewCity

Utilities

Cable Available, Electricity Available, Internet Access (Wired), Natural Gas Available

Interior

  • HeatingForced Air
  • CoolingCeiling Fan(s), Central Air
  • StoriesTwo

Interior Features

Five Piece Bath, Open Floorplan, Walk-In Closet(s)

Appliances

Dishwasher, Microwave, Oven, Refrigerator

Exterior

  • Lot DescriptionLevel, Sprinklers In Front
  • WindowsDouble Pane Windows
  • RoofComposition

School Information

  • DistrictFort Morgan RE-3
  • ElementaryOther
  • MiddleFort Morgan
  • HighFort Morgan

Additional Information

  • Date ListedMay 7th, 2025
  • ZoningR

Listing Details

  • Best Life Realty
Please provide a valid email address.

Terms and Conditions: The content relating to real estate for sale in this Web site comes in part from the Internet Data eXchange ("IDX") program of METROLIST, INC., DBA RECOLORADO® Real estate listings held by brokers other than RE/MAX Professionals are marked with the IDX Logo. This information is being provided for the consumers personal, non-commercial use and may not be used for any other purpose. All information subject to change and should be independently verified.

Copyright 2025 METROLIST, INC., DBA RECOLORADO® -- All Rights Reserved 6455 S. Yosemite St., Suite 500 Greenwood Village, CO 80111 USA

Listing information last updated on December 29th, 2025 at 11:03pm MST.