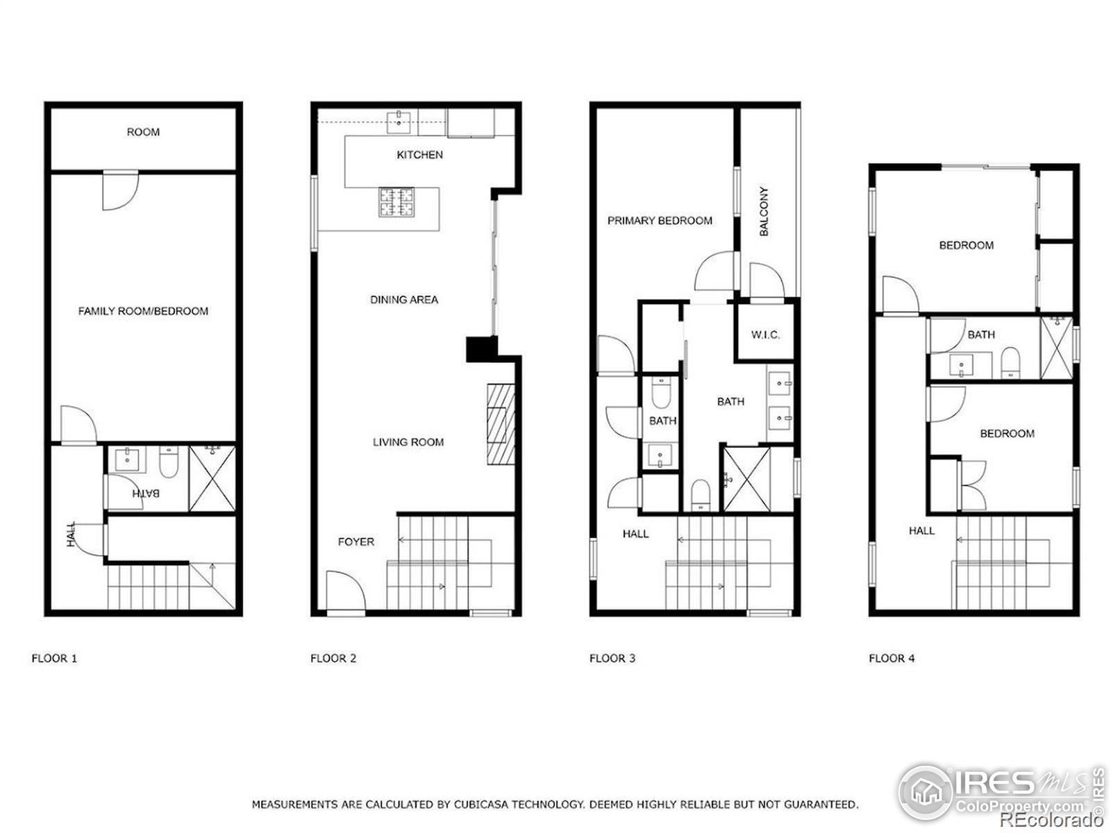
Modern Townhome in West Colfax - Just 3 Blocks from Sloan's Lake! Don't miss this light-filled, front-unit townhome offering 2,100+ sq ft of stylish living, in one of Denver's most desirable neighborhoods. The open layout features gleaming hardwood floors, floating staircases, and a cozy living room with a custom-tile fireplace. The modern kitchen is equipped with quartz countertops, a custom tile backsplash, soft-close European cabinetry, stainless steel appliances, gas range, and Delta fixtures. A grilling patio with a natural gas hookup is located just off the kitchen-ideal for entertaining. Upstairs, the spacious primary suite fits a king-sized bed and includes a spa-inspired en-suite with glass-enclosed shower, dual-lit vanities, and designer finishes. Two additional bedrooms offer space for guests, an office, or hobbies. The finished basement serves as a large fourth bedroom or second living space. Enjoy multiple outdoor areas, including a private front deck shaded by a mature cherry blossom tree. The one-car garage includes vertical storage and alley access. Location Highlights:3 blocks to Sloan's Lake (walking, paddle boarding, bird watching) 1/2 mile to Edgewater's restaurants, Target, fitness studios & bars1 block to light rail - easy access to downtown, Empower Field, and DIA1 block to bike path - connect to REI, Cherry Creek, or LoDo Experience the perfect mix of modern living, outdoor access, and city convenience in this stunning West Colfax townhome!
Listing Office: Marcotte Real Estate Group  
 
Cable Available, Electricity Available, Internet Access (Wired), Natural Gas Available
Open Floorplan, Radon Mitigation System, Smart Thermostat
Dishwasher, Disposal, Dryer, Oven, Refrigerator, Washer
Double Pane Windows, Window Coverings
 Marcotte Real Estate Group
Marcotte Real Estate Group Terms and Conditions: The content relating to real estate for sale in this Web site comes in  part from the Internet Data eXchange ("IDX") program of METROLIST, INC., DBA RECOLORADO® Real estate listings held by brokers other than RE/MAX Professionals are marked with the IDX Logo. This information is being  provided for the consumers personal, non-commercial use and may not be  used for any other purpose. All information subject to change and  should be independently verified.
 Terms and Conditions: The content relating to real estate for sale in this Web site comes in  part from the Internet Data eXchange ("IDX") program of METROLIST, INC., DBA RECOLORADO® Real estate listings held by brokers other than RE/MAX Professionals are marked with the IDX Logo. This information is being  provided for the consumers personal, non-commercial use and may not be  used for any other purpose. All information subject to change and  should be independently verified.
Copyright 2025 METROLIST, INC., DBA RECOLORADO® -- All Rights Reserved 6455 S. Yosemite St., Suite 500 Greenwood Village, CO 80111 USA
Listing information last updated on October 30th, 2025 at 11:04am MDT.