Connect

1305 Kestrel Lane J, Longmont, CO – $434,900

  • 3 Beds
  • 4 Baths
  • 1,566 Sqft
  • .51 Acres
  • 3 Beds
  • 4 Baths
  • 1,566 Sqft
  • .51 Acres

New Search X

1305 Kestrel Lane J

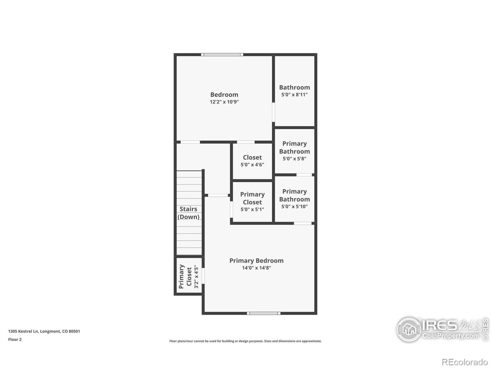
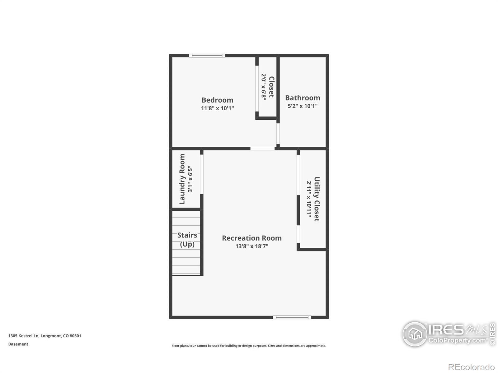
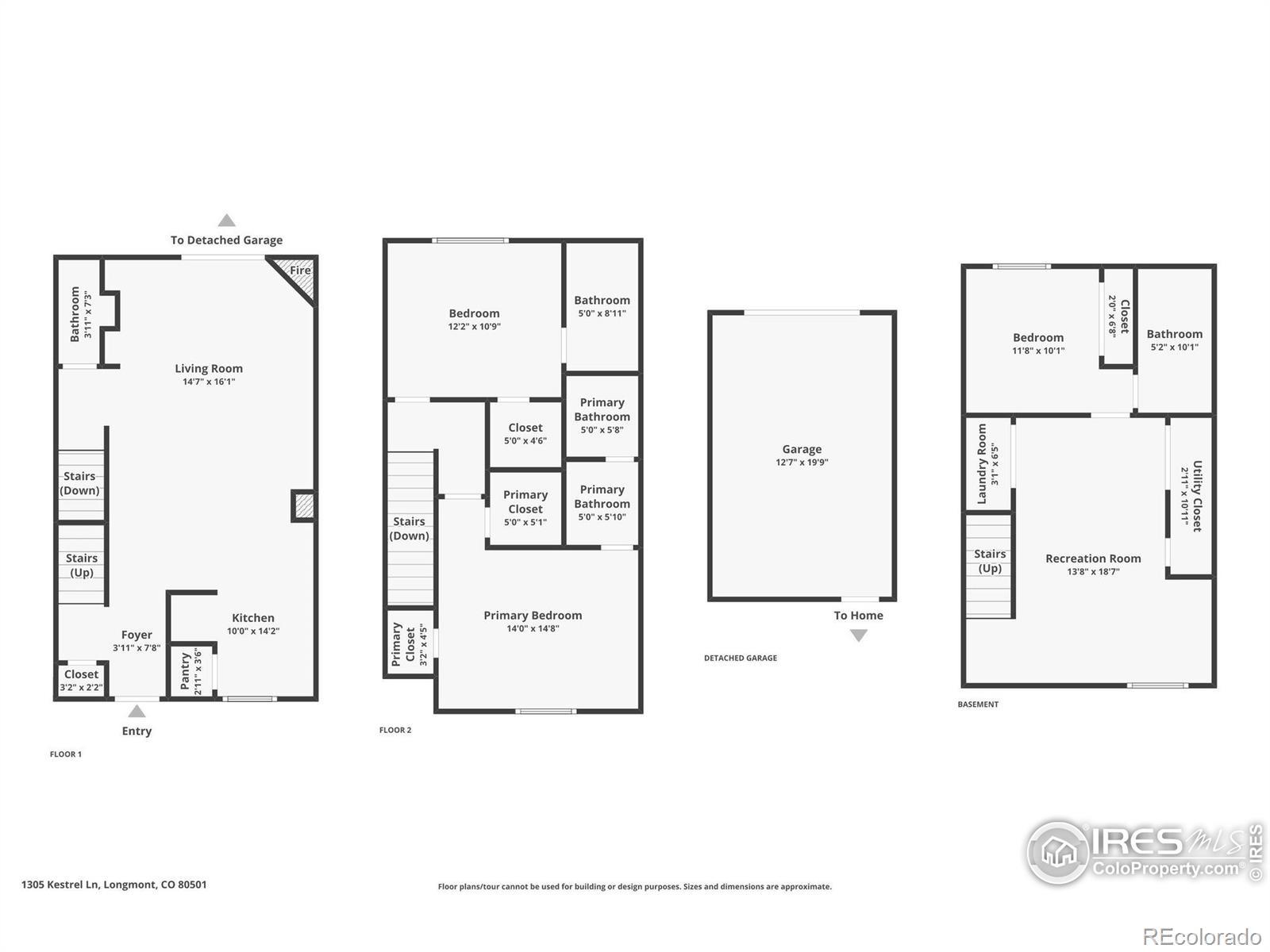
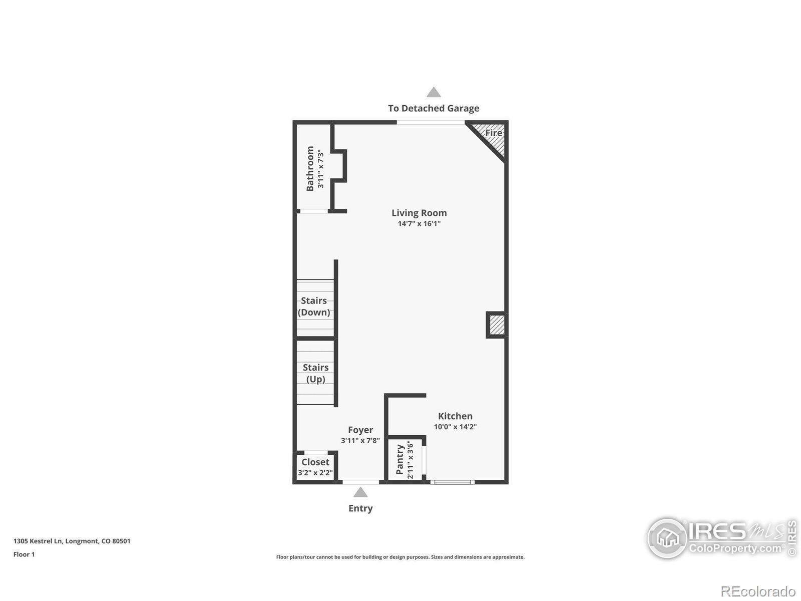
Here is a town home with premium features within a well-designed living space-a thoughtful blend of comfort, quality, and low-maintenance living on a quiet side street without the premium price. It starts with welcoming main level floor plan. The kitchen features upgraded white cabinetry and a new smooth-top range, opening directly to the dining and living areas where a corner gas fireplace accented with stacked stone creates a welcoming centerpiece. Porcelain tile floors in the kitchen, living area and baths and premium carpet with a thick pad in the upper-level bedrooms enhance the home's sense of quality and warmth - no LVP here! Both upstairs bedrooms offer en suite baths. The primary retreat includes a walk-in closet, double sinks, private toilet room, and a generous tiled shower. The lower level provides even more flexibility, with a third bedroom and en suite bath, plus laundry and bonus space that works beautifully as an office, guest suite or media area. Step outside to enjoy your private fenced patio ideal for morning coffee or quiet evenings. A one-car garage plus an additional parking space adds to the convenience. Living here is living economically--seller's utility bills average around $100/mon, and low HOA fees include water, exterior maintenance & snow removal. Extras include: Nextlight ultra high-speed internet, Ring doorbell, smart lock, & washer/dryer. It is ideally located with a neighborhood park around the corner. Close are the Longmont Museum, Recreation Center & historic downtown's shops and restaurants. A nearby city park with playground, dog park, & disc golf course opens soon. Easy commuting w/ quick access to Boulder, I-25 to Denver & DIA. Altogether, this is an uncommon value offering a rare blend of comfort, convenience and features not found in others. See and feel the difference for yourself. Here is a home with something more

Listing Office: RE/MAX of Boulder, Inc

Essential Information

  • MLS® #IR1041954
  • Price$434,900
  • Bedrooms3
  • Bathrooms4.00
  • Full Baths2
  • Half Baths1
  • Square Footage1,566
  • Acres0.51
  • Year Built2015
  • TypeResidential
  • Sub-TypeCondominium
  • StyleContemporary
  • StatusPending

Community Information

  • Address1305 Kestrel Lane J
  • CityLongmont
  • CountyBoulder
  • StateCO
  • Zip Code80501

Subdivision

Parkside At Quail Ridge Condos G-M 1305 Kestrel La

Amenities

  • AmenitiesPark
  • Parking Spaces1
  • # of Garages1

Utilities

Cable Available, Electricity Available, Electricity Connected, Internet Access (Wired), Natural Gas Available, Natural Gas Connected

Interior

  • HeatingForced Air
  • CoolingCeiling Fan(s), Central Air
  • FireplaceYes
  • FireplacesGas, Living Room
  • StoriesTwo

Interior Features

Open Floorplan, Pantry, Walk-In Closet(s)

Appliances

Dishwasher, Dryer, Microwave, Oven, Refrigerator, Self Cleaning Oven, Washer

Exterior

  • RoofComposition, Metal

Windows

Double Pane Windows, Window Coverings

School Information

  • DistrictSt. Vrain Valley RE-1J
  • ElementaryBurlington
  • MiddleSunset
  • HighNiwot

Additional Information

  • Date ListedAugust 21st, 2025
  • ZoningPUD

Listing Details

  • RE/MAX of Boulder, Inc
Please provide a valid email address.

Terms and Conditions: The content relating to real estate for sale in this Web site comes in part from the Internet Data eXchange ("IDX") program of METROLIST, INC., DBA RECOLORADO® Real estate listings held by brokers other than RE/MAX Professionals are marked with the IDX Logo. This information is being provided for the consumers personal, non-commercial use and may not be used for any other purpose. All information subject to change and should be independently verified.

Copyright 2025 METROLIST, INC., DBA RECOLORADO® -- All Rights Reserved 6455 S. Yosemite St., Suite 500 Greenwood Village, CO 80111 USA

Listing information last updated on December 19th, 2025 at 12:03pm MST.