Connect

1287 Buffalo Ridge Road, Castle Pines, CO – $2,590,000

  • 6 Beds
  • 6 Baths
  • 6,800 Sqft
  • .31 Acres
  • 6 Beds
  • 6 Baths
  • 6,800 Sqft
  • .31 Acres

New Search X

1287 Buffalo Ridge Road

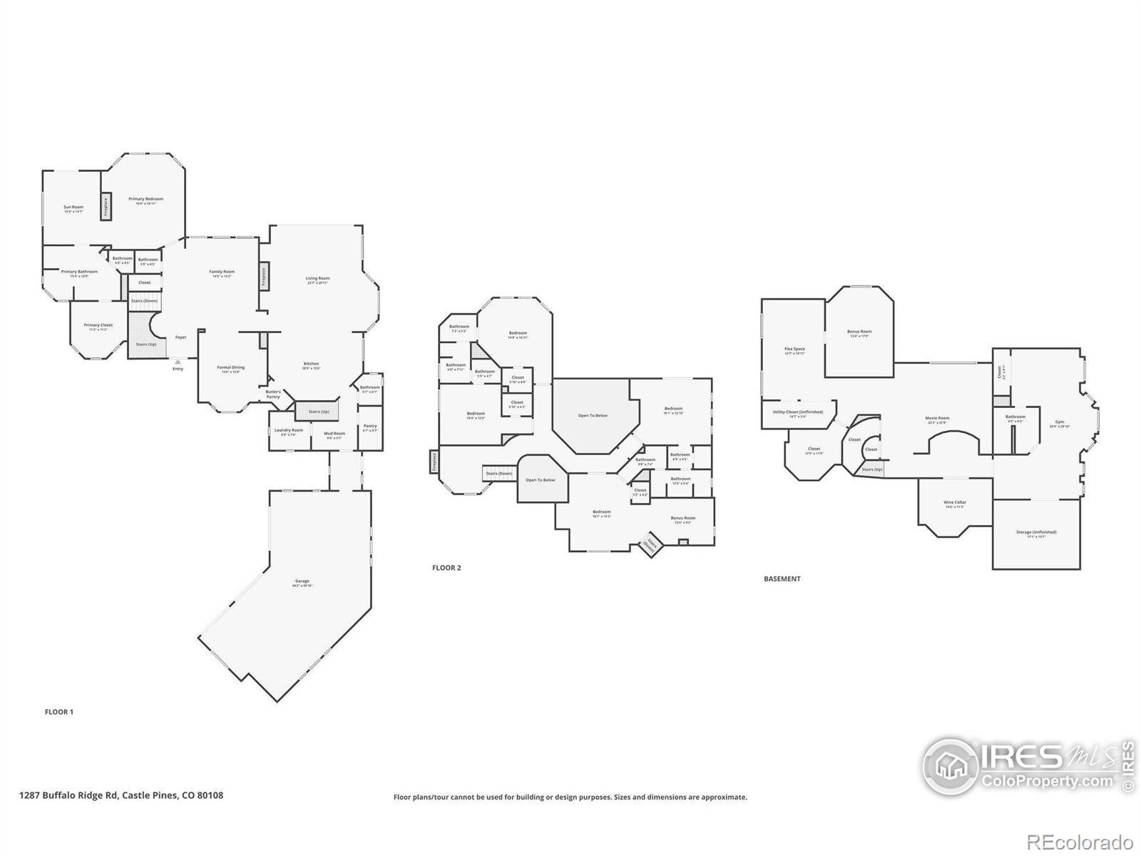
Strikingly situated in the gated community of Buffalo Ridge Estates, this wonderfully remodeled and updated home backs to the the 8th fairway of The Ridge Golf Course. Spanning three levels of expertly crafted living space, this home delivers clean lines, intentional design, and a seamless blend of sophistication and comfort. At its center, the two-story formal living room commands attention-framed by floor-to-ceiling windows that capture Front Range views and anchored by a substantial fireplace, once home to a Baby Grand Piano. The chef's kitchen is built for function and presence, featuring a expansive center island, professional-grade appliances from Viking, Wolf, and SubZero, and ample space to entertain. The main-floor primary suite is a private retreat with sweeping mountain views, a custom walk-in closet with an island, and a spa-inspired bath flooded with natural light as well as a cozy library with fireplace. Sliding glass walls connect the interior to an expansive deck-complete with a fire pit and powered shades-designed for year-round enjoyment. Upstairs, a secondary suite offers its own private deck with panoramic views of the mountains and golf course. Two additional bedrooms, each with ensuite baths, complete the upper level with comfort and privacy. The finished lower level is tailored for recreation and relaxation. A dedicated golf simulator keeps your skills honed during the winter. The workout area has a 3/4 bath with steam shower! A 120 inch projection TV in the wet bar area is perfect for host sporting events and family movie nights too. The Crown Jewel is the Napa insider foundational 1,400-bottle wine cellar. There is a whole house house backup Generac generator! This is a property where an active life style blends with comfort-a rare find for the discerning buyer seeking modern mountain luxury. Welcome to your Colorado Oasis!

Listing Office: Your Castle Real Estate LLC

Essential Information

  • MLS® #IR1042839
  • Price$2,590,000
  • Bedrooms6
  • Bathrooms6.00
  • Full Baths4
  • Half Baths2
  • Square Footage6,800
  • Acres0.31
  • Year Built2005
  • TypeResidential
  • Sub-TypeSingle Family Residence
  • StatusActive

Community Information

  • Address1287 Buffalo Ridge Road
  • SubdivisionCastle Pines North
  • CityCastle Pines
  • CountyDouglas
  • StateCO
  • Zip Code80108

Amenities

  • Parking Spaces3
  • ParkingOversized
  • # of Garages3
  • ViewMountain(s)

Amenities

Clubhouse, Fitness Center, Golf Course, Pool

Utilities

Electricity Available, Natural Gas Available

Interior

  • HeatingForced Air, Radiant
  • CoolingCeiling Fan(s), Central Air
  • FireplaceYes
  • StoriesTwo

Interior Features

Eat-in Kitchen, Pantry, Walk-In Closet(s), Wet Bar

Appliances

Bar Fridge, Dishwasher, Double Oven, Microwave, Oven, Refrigerator

Fireplaces

Family Room, Living Room, Primary Bedroom

Exterior

  • Exterior FeaturesBalcony
  • WindowsWindow Coverings
  • RoofConcrete
  • FoundationSlab

Lot Description

Level, On Golf Course, Sprinklers In Front

School Information

  • DistrictDouglas RE-1
  • ElementaryTimber Trail
  • MiddleRocky Heights
  • HighRock Canyon

Additional Information

  • Date ListedSeptember 4th, 2025
  • ZoningR1

Listing Details

  • Your Castle Real Estate LLC
Please provide a valid email address.

Terms and Conditions: The content relating to real estate for sale in this Web site comes in part from the Internet Data eXchange ("IDX") program of METROLIST, INC., DBA RECOLORADO® Real estate listings held by brokers other than RE/MAX Professionals are marked with the IDX Logo. This information is being provided for the consumers personal, non-commercial use and may not be used for any other purpose. All information subject to change and should be independently verified.

Copyright 2025 METROLIST, INC., DBA RECOLORADO® -- All Rights Reserved 6455 S. Yosemite St., Suite 500 Greenwood Village, CO 80111 USA

Listing information last updated on November 7th, 2025 at 7:48pm MST.