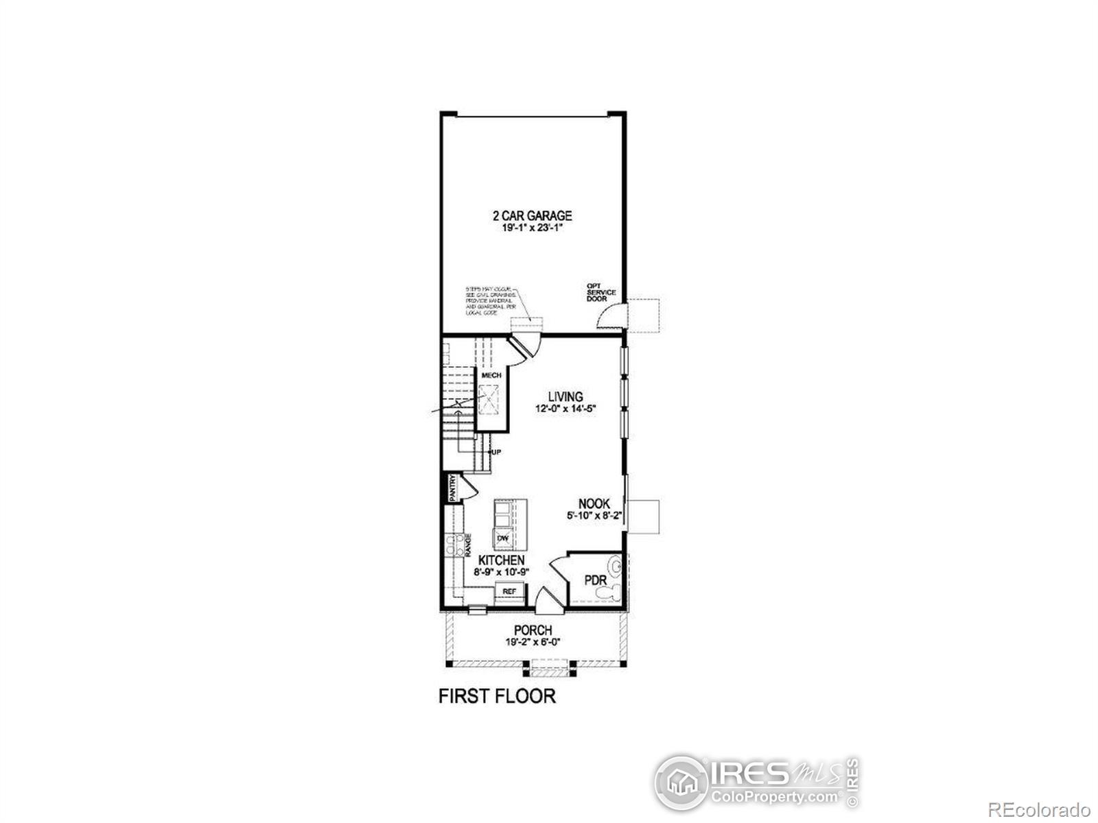
The Muirfield, is a thoughtfully designed 2-story paired home offering 3 bedrooms, 2.5 baths, and 1,514 sq. ft. of living space. From the inviting covered front porch, you'll step into a bright, open-concept layout that blends comfort and functionality. The spacious kitchen boasts beautiful cabinetry, stainless steel appliances, a pantry, and an island-perfect for meal prep, casual dining, or entertaining. The dining nook flows seamlessly into the open living area, creating a warm and inviting main floor. Upstairs, an open loft provides flexible space for a second living room, office, or game area. Two secondary bedrooms share a well-appointed full bath, while the primary suite features an en-suite bathroom with and an oversized walk-in closet. Additional highlights include a 2-car garage, energy-efficient smart home technology, and stylish finishes like quartz countertops, vinyl wood flooring, and modern lighting. Experience the perfect blend of modern comfort and timeless design in the Muirfield plan. Located in Vista Meadows of Fort Lupton, CO, residents enjoy small-town charm with easy access to I-25, I-76, and just 30 minutes from Denver International Airport. The community offers a mix of single-family and paired homes, close to outdoor recreation, shopping, and dining.***Estimated Delivery Date: November. Photos are representative and not of actual property***
Listing Office: DR Horton Realty LLC  
 
Eat-in Kitchen, Open Floorplan, Pantry, Smart Thermostat, Walk-In Closet(s)
Dishwasher, Disposal, Microwave, Oven
Double Pane Windows, Window Coverings
 DR Horton Realty LLC
DR Horton Realty LLC Terms and Conditions: The content relating to real estate for sale in this Web site comes in  part from the Internet Data eXchange ("IDX") program of METROLIST, INC., DBA RECOLORADO® Real estate listings held by brokers other than RE/MAX Professionals are marked with the IDX Logo. This information is being  provided for the consumers personal, non-commercial use and may not be  used for any other purpose. All information subject to change and  should be independently verified.
 Terms and Conditions: The content relating to real estate for sale in this Web site comes in  part from the Internet Data eXchange ("IDX") program of METROLIST, INC., DBA RECOLORADO® Real estate listings held by brokers other than RE/MAX Professionals are marked with the IDX Logo. This information is being  provided for the consumers personal, non-commercial use and may not be  used for any other purpose. All information subject to change and  should be independently verified.
Copyright 2025 METROLIST, INC., DBA RECOLORADO® -- All Rights Reserved 6455 S. Yosemite St., Suite 500 Greenwood Village, CO 80111 USA
Listing information last updated on October 31st, 2025 at 12:03am MDT.