Connect

15171 W 62nd Way, Arvada, CO – $1,250,000

  • 4 Beds
  • 5 Baths
  • 4,807 Sqft
  • .28 Acres
  • 4 Beds
  • 5 Baths
  • 4,807 Sqft
  • .28 Acres

New Search X

15171 W 62nd Way

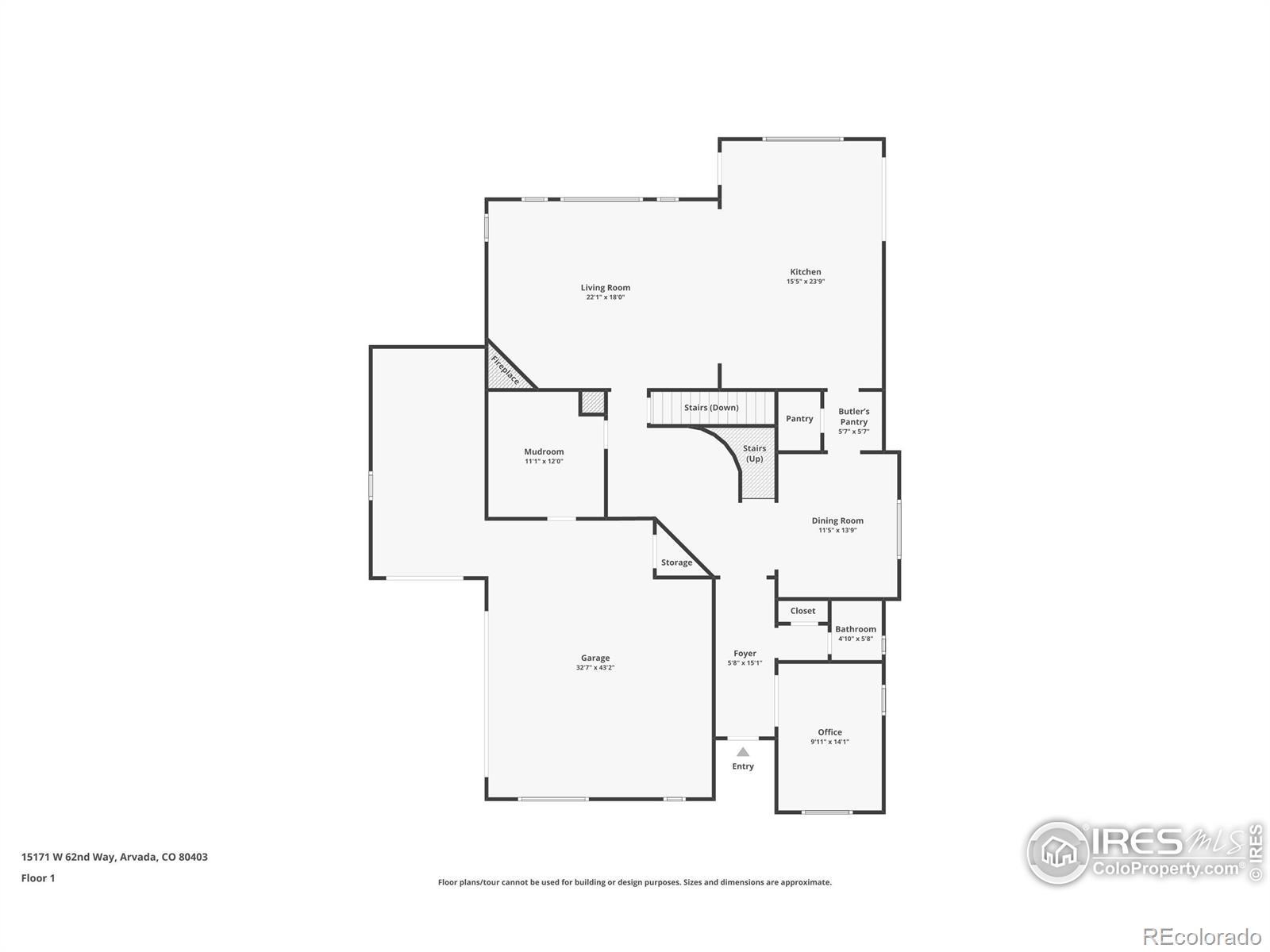
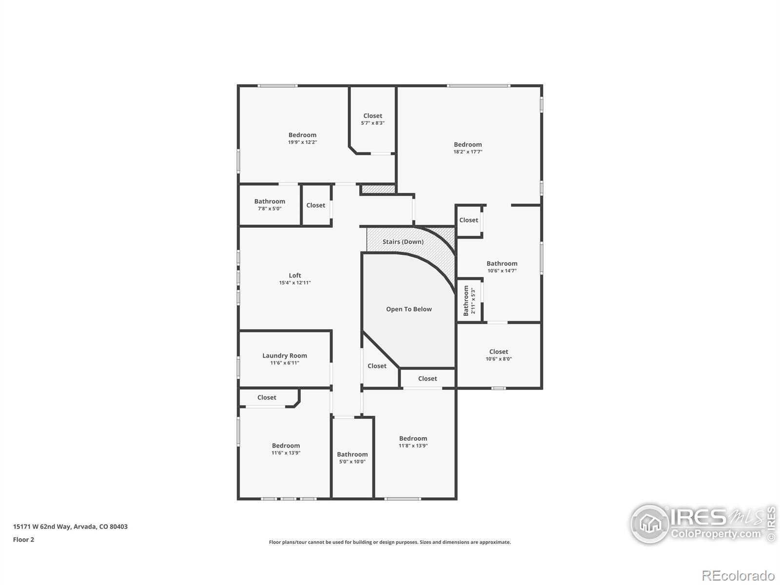
WELCOME HOME to the highly sought-after Lakes at Westwoods, where modern living meets the beauty of West Arvada. Built in 2013, this exceptionally appointed 4-bedroom, 5-bathroom home offers comfort & sophistication. From the moment you arrive, you'll notice the professionally designed landscaping that frames the home & sets the tone for the incredible lifestyle within. Upon entering, the curved staircase sweeps upward as a stunning architectural centerpiece, immediately catching the eye. On the right is a sun filled office - tucked away from the heart of the house, which means fewer distractions and more focus. To the right, the formal dining room sets the stage for holidays, celebrations or intimate dinners. A chef's kitchen, butler's pantry, walk in pantry, formal dining, expansive great room, and flexible spaces create harmony between elegance and practicality. Upstairs, 4 spacious bedrooms - including a luxurious primary suite - ensure everyone has their own retreat. Just steps from the primary suite, a private en suite bedroom offers versatility. Two additional bedrooms and full bath will make mornings and evenings flow with ease for family and guests alike. Step outside and take in breathtaking mountain views and tranquil glimpses of the Broad Lake, where you not only get the views but also you get Lake Privileges. The outdoor spaces are designed for relaxation and connection, whether that means morning coffee on the patio, summer barbecues, or evenings spent watching the sun set behind the Rockies. This home is more than a place to live - it's a chance to embrace the best of Colorado living: natural beauty, community connection, and a home designed for the way you want to live. Don't miss the opportunity to make it yours. Note: the house also has an invisible fence to keep pets inside the property, double HVAC zone to provide independent heating and cooling, a security system, and indoor/outdoor wired in-ceiling speakers.

Listing Office: RE/MAX Alliance-Old Town

Essential Information

  • MLS® #IR1043864
  • Price$1,250,000
  • Bedrooms4
  • Bathrooms5.00
  • Full Baths2
  • Half Baths1
  • Square Footage4,807
  • Acres0.28
  • Year Built2013
  • TypeResidential
  • Sub-TypeSingle Family Residence
  • StyleContemporary
  • StatusActive

Community Information

  • Address15171 W 62nd Way
  • SubdivisionLakes At Westwoods
  • CityArvada
  • CountyJefferson
  • StateCO
  • Zip Code80403

Amenities

  • UtilitiesNatural Gas Available
  • Parking Spaces3
  • ParkingOversized
  • # of Garages3
  • ViewMountain(s), Water

Interior

  • Interior FeaturesEat-in Kitchen
  • AppliancesDishwasher
  • HeatingForced Air
  • CoolingCentral Air
  • FireplaceYes
  • FireplacesFamily Room
  • StoriesTwo

Exterior

  • RoofComposition

Lot Description

Cul-De-Sac, Level, Sprinklers In Front

School Information

  • DistrictJefferson County R-1
  • ElementaryVanderhoof
  • MiddleDrake
  • HighArvada West

Additional Information

  • Date ListedSeptember 24th, 2025
  • ZoningPUD

Listing Details

  • RE/MAX Alliance-Old Town
Please provide a valid email address.

Terms and Conditions: The content relating to real estate for sale in this Web site comes in part from the Internet Data eXchange ("IDX") program of METROLIST, INC., DBA RECOLORADO® Real estate listings held by brokers other than RE/MAX Professionals are marked with the IDX Logo. This information is being provided for the consumers personal, non-commercial use and may not be used for any other purpose. All information subject to change and should be independently verified.

Copyright 2025 METROLIST, INC., DBA RECOLORADO® -- All Rights Reserved 6455 S. Yosemite St., Suite 500 Greenwood Village, CO 80111 USA

Listing information last updated on December 29th, 2025 at 7:18am MST.