Connect

1303 Alpine Avenue 24, Boulder, CO – $570,000

  • 2 Beds
  • 2 Baths
  • 1,112 Sqft
  • .69 Acres
  • 2 Beds
  • 2 Baths
  • 1,112 Sqft
  • .69 Acres

New Search X

1303 Alpine Avenue 24

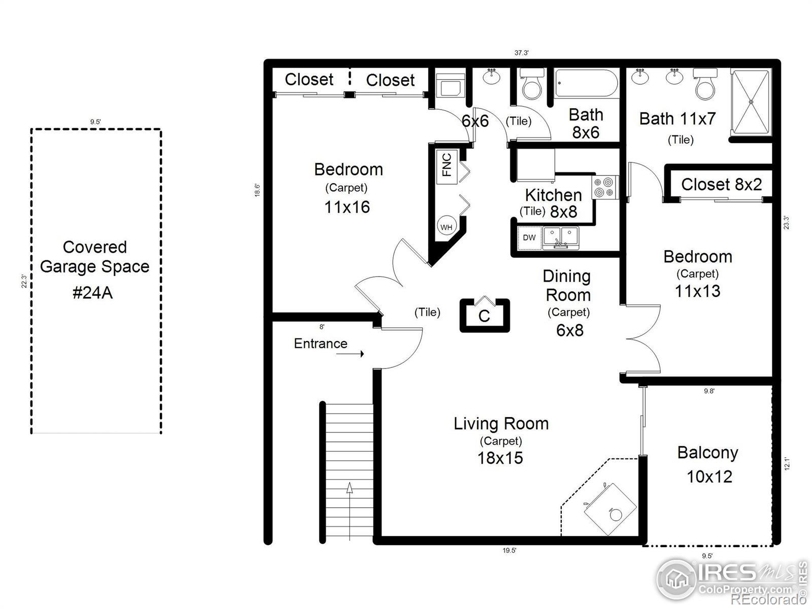
GREAT NORTH BOULDER LOCATION! This quiet top-floor, single-level condo offers 2 bedrooms and 2 bathrooms, along with a covered east-facing deck. The open layout connects the living, dining, and kitchen areas, creating a comfortable flow. Both spacious bedrooms include their own bath. Features include granite countertops, a washer and dryer, fireplace, and central A/C. One covered carport space is included. Conveniently located across the street from Ideal Market, Beleza Coffee Bar, Alive & Well, Moe's Bagels, Breadworks, and Sweet Cow Ice Cream-with North Boulder Park just minutes away. YES!

Listing Office: Compass - Boulder

Essential Information

  • MLS® #IR1043909
  • Price$570,000
  • Bedrooms2
  • Bathrooms2.00
  • Full Baths1
  • Square Footage1,112
  • Acres0.69
  • Year Built1981
  • TypeResidential
  • Sub-TypeCondominium
  • StyleContemporary
  • StatusActive

Community Information

  • Address1303 Alpine Avenue 24
  • Subdivision1313 Alpine Condos
  • CityBoulder
  • CountyBoulder
  • StateCO
  • Zip Code80304

Amenities

  • Parking Spaces1
  • ViewCity

Utilities

Cable Available, Electricity Available, Internet Access (Wired), Natural Gas Available

Interior

  • HeatingForced Air
  • CoolingCentral Air
  • FireplaceYes
  • FireplacesLiving Room
  • StoriesOne

Interior Features

Eat-in Kitchen, Open Floorplan, Smart Thermostat

Appliances

Dishwasher, Disposal, Dryer, Oven, Refrigerator, Washer

Exterior

  • Exterior FeaturesBalcony
  • Lot DescriptionLevel, Sprinklers In Front
  • RoofMembrane

Windows

Double Pane Windows, Window Coverings

School Information

  • DistrictSt. Vrain Valley RE-1J
  • ElementaryColumbine
  • MiddleOther
  • HighOther

Additional Information

  • Date ListedSeptember 18th, 2025
  • ZoningPUD

Listing Details

  • Compass - Boulder
Please provide a valid email address.

Terms and Conditions: The content relating to real estate for sale in this Web site comes in part from the Internet Data eXchange ("IDX") program of METROLIST, INC., DBA RECOLORADO® Real estate listings held by brokers other than RE/MAX Professionals are marked with the IDX Logo. This information is being provided for the consumers personal, non-commercial use and may not be used for any other purpose. All information subject to change and should be independently verified.

Copyright 2025 METROLIST, INC., DBA RECOLORADO® -- All Rights Reserved 6455 S. Yosemite St., Suite 500 Greenwood Village, CO 80111 USA

Listing information last updated on November 4th, 2025 at 10:03pm MST.