Connect

103 W Main Avenue, Pierce, CO – $500,000

  • 3 Beds
  • 2 Baths
  • 1,514 Sqft
  • .56 Acres
  • 3 Beds
  • 2 Baths
  • 1,514 Sqft
  • .56 Acres

New Search X

103 W Main Avenue

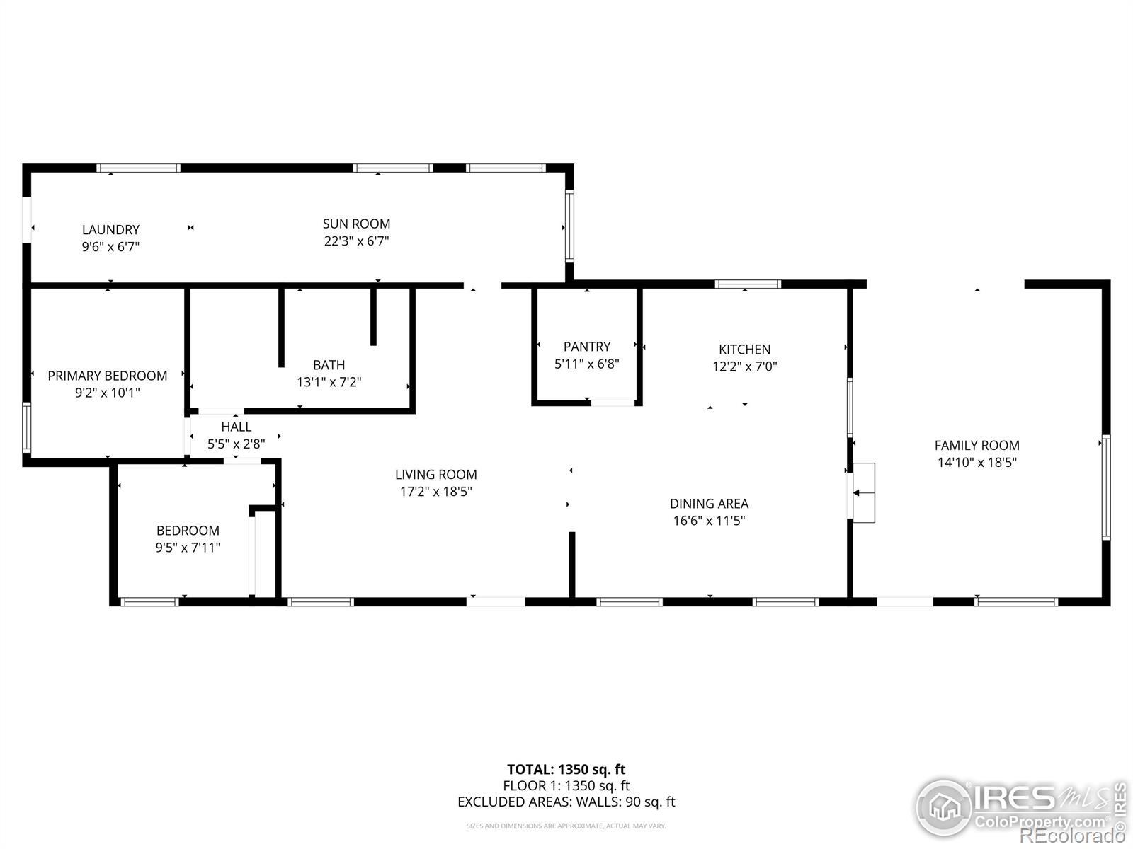
Rare live-work property in the heart of Pierce, Colorado. Set on a spacious corner lot with C-1 zoning, this unique offering combines a beautifully updated residence with extensive shop and storage facilities-perfect for modern living, small business operations, or creative ventures. Inside the 2-bedroom, 1-bath home, you'll find hickory hardwood floors, a fully remodeled kitchen with granite countertops and stainless appliances, and an inviting living area warmed by a wood stove. A flexible bonus room provides the option for a third bedroom, home office, or private studio. The landscaped backyard includes mature trees, garden beds, a chicken coop, and a private patio, creating an ideal setting for relaxation, gardening, or hobby farming. The property's standout feature is a 1,728 square foot heated workshop built in 2004, complete with a private bathroom, making it an excellent fit for mechanics, woodworkers, welders, contractors, or anyone needing substantial project space. A historic 1,194 square foot structure with nine garage bays, formerly a motel, offers additional opportunities for storage, rental income, or future redevelopment. With quick access to both Hwy 14 and Hwy 85, the location allows easy commuting to Fort Collins, Greeley, and Cheyenne, while maintaining the quiet pace of small-town living. This property offers a rare blend of home, workspace, and business opportunity in one versatile package.

Listing Office: Berkshire Hathaway HomeServices Rocky Mountain, Realtors-Fort Collins

Essential Information

  • MLS® #IR1044574
  • Price$500,000
  • Bedrooms3
  • Bathrooms2.00
  • Full Baths2
  • Square Footage1,514
  • Acres0.56
  • Year Built1940
  • TypeResidential
  • Sub-TypeSingle Family Residence
  • StyleContemporary
  • StatusActive

Community Information

  • Address103 W Main Avenue
  • SubdivisionPierce Town
  • CityPierce
  • CountyWeld
  • StateCO
  • Zip Code80650

Amenities

  • Parking Spaces9
  • # of Garages9
  • ViewPlains

Utilities

Electricity Available, Natural Gas Available

Parking

Heated Garage, RV Access/Parking

Interior

  • HeatingForced Air, Wood Stove
  • CoolingCeiling Fan(s)
  • StoriesOne

Interior Features

Eat-in Kitchen, Open Floorplan, Pantry, Radon Mitigation System

Appliances

Dishwasher, Disposal, Dryer, Microwave, Oven, Refrigerator, Washer

Exterior

  • RoofComposition
  • FoundationSlab

Lot Description

Corner Lot, Level, Sprinklers In Front

Windows

Double Pane Windows, Storm Window(s)

School Information

  • DistrictAult-Highland RE-9
  • ElementaryHighland
  • MiddleHighland
  • HighHighland

Additional Information

  • Date ListedSeptember 26th, 2025
  • ZoningC1

Listing Details

Berkshire Hathaway HomeServices Rocky Mountain, Realtors-Fort Collins

Please provide a valid email address.

Terms and Conditions: The content relating to real estate for sale in this Web site comes in part from the Internet Data eXchange ("IDX") program of METROLIST, INC., DBA RECOLORADO® Real estate listings held by brokers other than RE/MAX Professionals are marked with the IDX Logo. This information is being provided for the consumers personal, non-commercial use and may not be used for any other purpose. All information subject to change and should be independently verified.

Copyright 2026 METROLIST, INC., DBA RECOLORADO® -- All Rights Reserved 6455 S. Yosemite St., Suite 500 Greenwood Village, CO 80111 USA

Listing information last updated on February 13th, 2026 at 10:04pm MST.