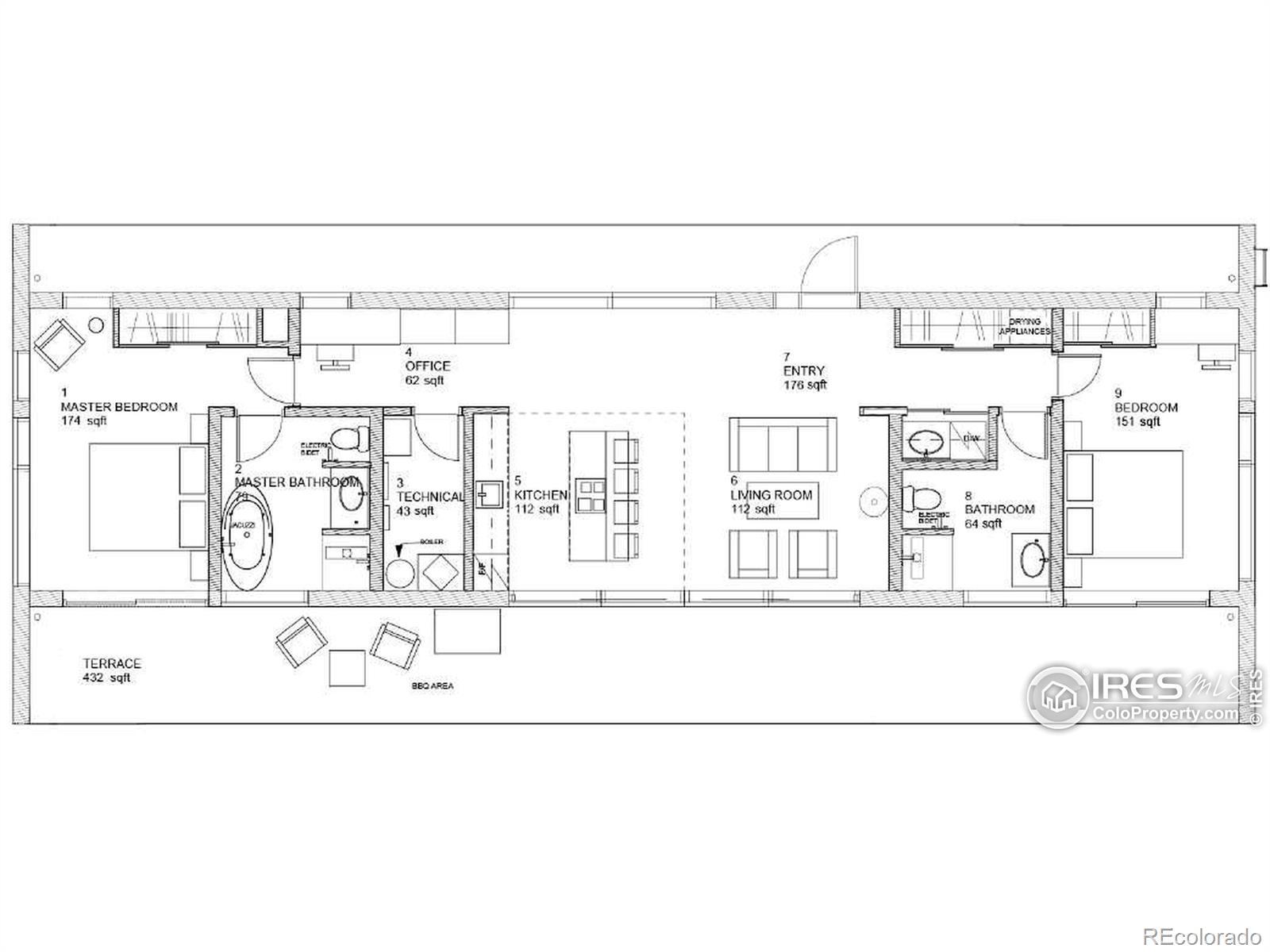
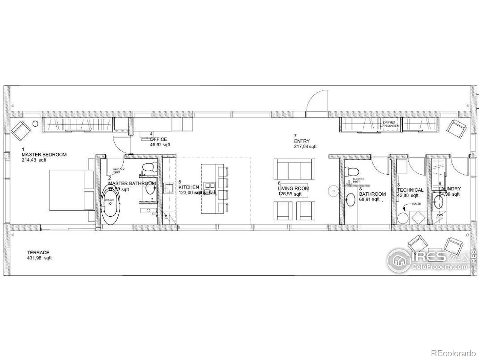
Modern contemporary design meets Scandinavian craftsmanship in the COPA 1700 by EcoLogVillas. Price is for the shell of the home. This does not include buyer chosen land/plot. This precision-built home is designed for light, flow, and sustainability, with expansive triple-glazed windows that blur the line between indoor comfort and nature. The open-concept living space connects the kitchen, dining, and great room with effortless style, while the private master suite and flexible office make it ideal for modern living. Thoughtfully engineered for efficiency and beauty, COPA 1700 features high-performance insulation, a non-settling log structure, and meticulous attention to detail. Optional basement and garage layouts offer flexibility to fit your lifestyle. Starting at $352,400, this home is perfect for those seeking elegance, eco-efficiency, and a true connection to nature. House Kit Includes - Complete structural house envelope, Non-settling log frame and wooden structural components, Taping of all joints and seams for airtight sealing, Windows and exterior doors package. Roof System - Structural roof components, Roof decking, insulation, and underlayment, Cladding materials included. Glazing Package - Panoramic triple-glazed windows for energy efficiency, Skylights, Exterior and interior door package. Exterior & Interior Walls - Solid non-settling log frame, Interior wall framing, Architraves and trim, Optional floor structure. Services & Support. On-site assembly - Factory structural self-inspection for quality assurance, Delivery of the complete house kit, Full set of drawings and engineering documentation, Engineering support for foundation development. Optional Add-Ons (On Demand) - Interior and exterior design services, Stairs, interior doors, and furniture packages, Terraces and outdoor living elements, Fireplaces, garage and or basement additions.
Listing Office: Adventure Realty LLC  
 
 Adventure Realty LLC
Adventure Realty LLC Terms and Conditions: The content relating to real estate for sale in this Web site comes in  part from the Internet Data eXchange ("IDX") program of METROLIST, INC., DBA RECOLORADO® Real estate listings held by brokers other than RE/MAX Professionals are marked with the IDX Logo. This information is being  provided for the consumers personal, non-commercial use and may not be  used for any other purpose. All information subject to change and  should be independently verified.
 Terms and Conditions: The content relating to real estate for sale in this Web site comes in  part from the Internet Data eXchange ("IDX") program of METROLIST, INC., DBA RECOLORADO® Real estate listings held by brokers other than RE/MAX Professionals are marked with the IDX Logo. This information is being  provided for the consumers personal, non-commercial use and may not be  used for any other purpose. All information subject to change and  should be independently verified.
Copyright 2025 METROLIST, INC., DBA RECOLORADO® -- All Rights Reserved 6455 S. Yosemite St., Suite 500 Greenwood Village, CO 80111 USA
Listing information last updated on October 30th, 2025 at 11:33pm MDT.