Connect

1240 Wren Court I, Longmont, CO – $399,000

  • 2 Beds
  • 3 Baths
  • 1,178 Sqft
  • .6 Acres
  • 2 Beds
  • 3 Baths
  • 1,178 Sqft
  • .6 Acres

New Search X

1240 Wren Court I

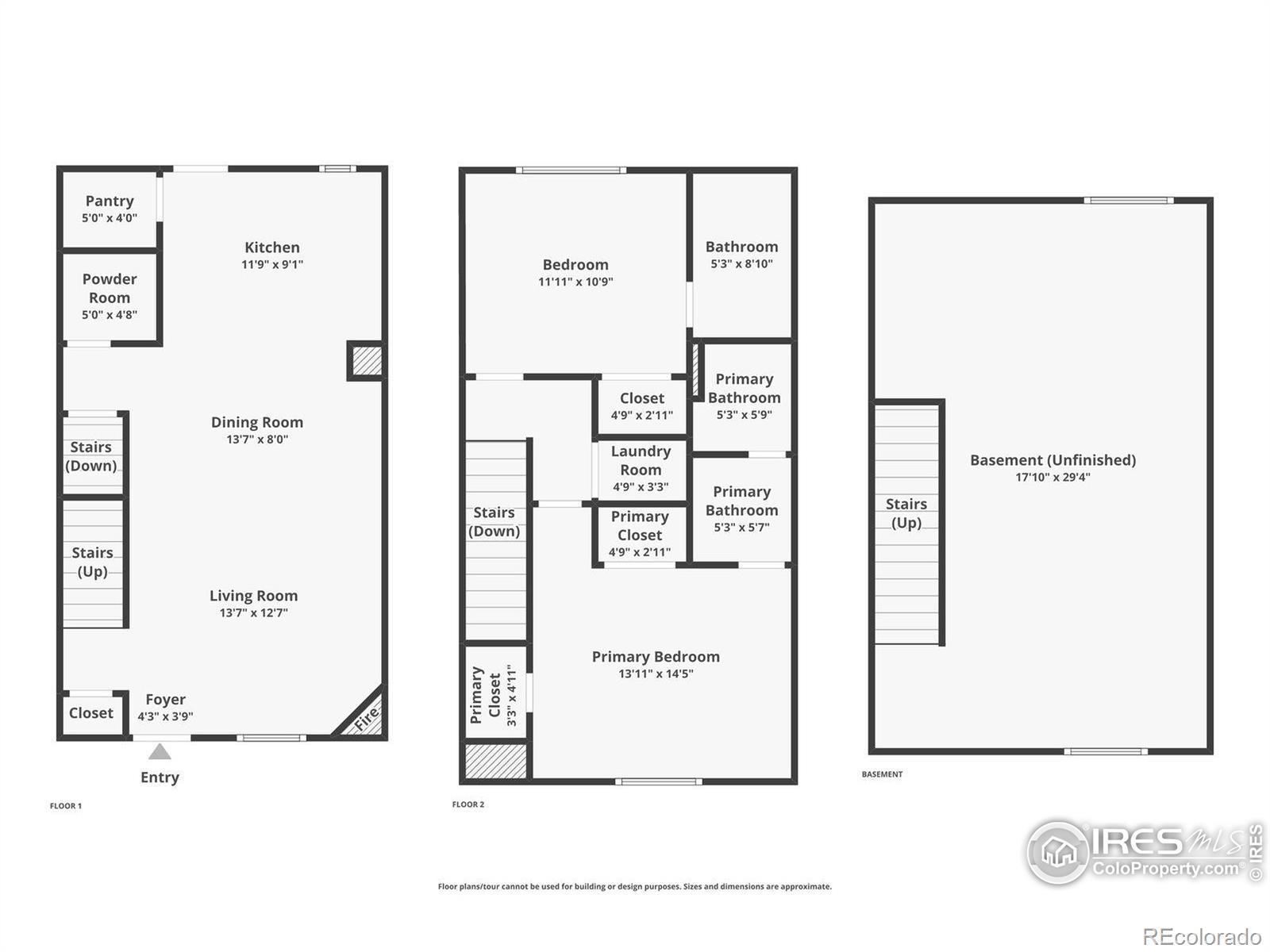
Welcome to 1240 Wren Ct Unit I, a beautifully maintained townhome that offers the perfect blend of modern comfort and everyday convenience. Located in vibrant South Longmont, this turn-key home features two spacious primary suites, each complete with a private en suite bath - ideal for peaceful retreats or accommodating guests. The open-concept main level invites you to relax and entertain, showcasing a thoughtfully upgraded kitchen with stainless steel appliances, granite countertops, and stylish cabinetry. A main floor powder room adds practical sophistication for everyday living. Downstairs, the unfinished basement holds exciting potential. Architectural plans are included, offering a head start to expand with an additional bedroom, bathroom, and generous living space. Set in a prime South Longmont neighborhood, this home places you minutes from the Longmont Rec Center, local parks including the new 8 acre Nino Gallo park, museums, and the Innovation Center, with quick commuter access to Boulder and the Denver metro area.Immaculately maintained and move-in ready, this home is a rare opportunity to embrace Colorado living at its finest.

Listing Office: RE/MAX Alliance-Longmont

Essential Information

  • MLS® #IR1046222
  • Price$399,000
  • Bedrooms2
  • Bathrooms3.00
  • Full Baths2
  • Half Baths1
  • Square Footage1,178
  • Acres0.60
  • Year Built2019
  • TypeResidential
  • Sub-TypeCondominium
  • StatusActive

Community Information

  • Address1240 Wren Court I
  • CityLongmont
  • CountyBoulder
  • StateCO
  • Zip Code80501

Subdivision

Parkside At Quail Ridge Condos G-K 1240 Wren Court

Amenities

  • AmenitiesPlayground
  • Parking Spaces1
  • # of Garages1

Utilities

Cable Available, Electricity Available, Internet Access (Wired), Natural Gas Available

Interior

  • HeatingForced Air
  • CoolingCeiling Fan(s), Central Air
  • StoriesTwo

Appliances

Dishwasher, Disposal, Dryer, Microwave, Oven, Refrigerator, Washer

Exterior

  • Lot DescriptionSprinklers In Front
  • WindowsWindow Coverings
  • RoofComposition

School Information

  • DistrictSt. Vrain Valley RE-1J
  • ElementaryBurlington
  • MiddleSunset
  • HighNiwot

Additional Information

  • Date ListedOctober 23rd, 2025
  • ZoningRes

Listing Details

  • RE/MAX Alliance-Longmont
Please provide a valid email address.

Terms and Conditions: The content relating to real estate for sale in this Web site comes in part from the Internet Data eXchange ("IDX") program of METROLIST, INC., DBA RECOLORADO® Real estate listings held by brokers other than RE/MAX Professionals are marked with the IDX Logo. This information is being provided for the consumers personal, non-commercial use and may not be used for any other purpose. All information subject to change and should be independently verified.

Copyright 2025 METROLIST, INC., DBA RECOLORADO® -- All Rights Reserved 6455 S. Yosemite St., Suite 500 Greenwood Village, CO 80111 USA

Listing information last updated on October 27th, 2025 at 10:48pm MDT.