Connect

2238 11th Street, Greeley, CO – $345,000

  • 4 Beds
  • 2 Baths
  • 2,301 Sqft
  • .19 Acres
  • 4 Beds
  • 2 Baths
  • 2,301 Sqft
  • .19 Acres

New Search X

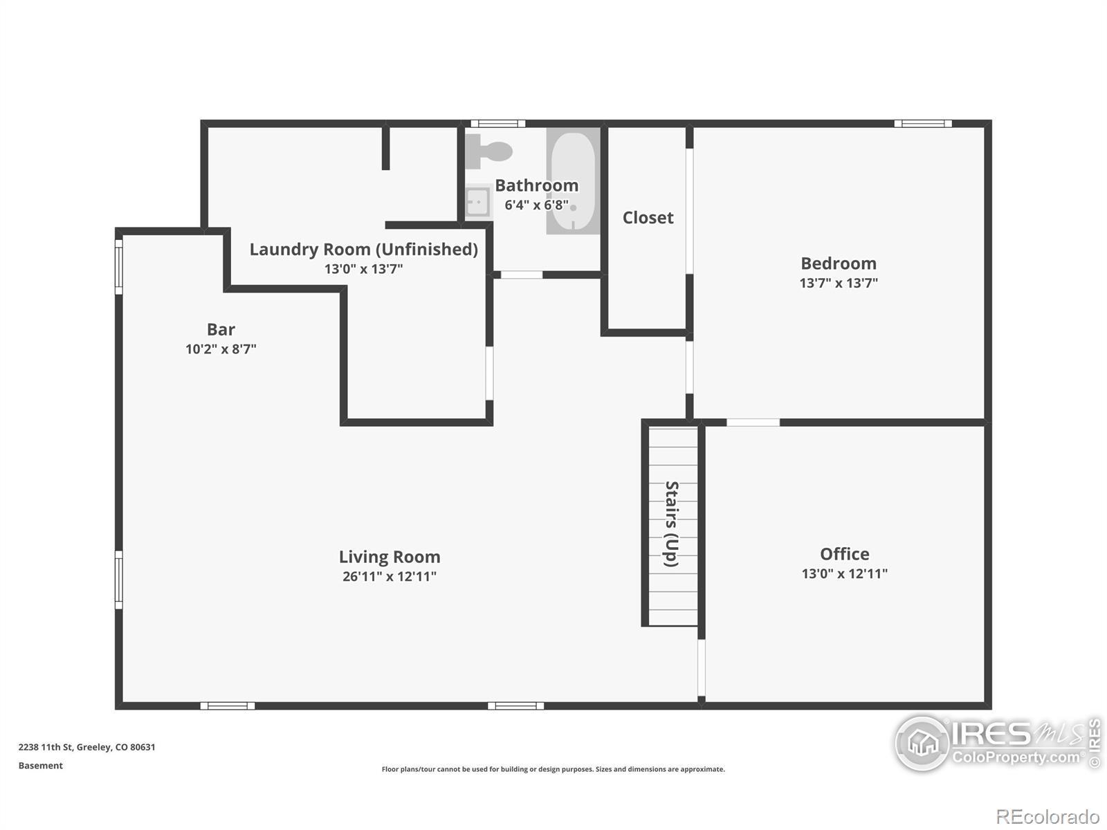
2238 11th Street

This 4-bed, 2-bath home at 2758 11th Street is a gem ready for your finishes in Greeley. With open living, kitchen, and dining space plus dedicated rooms for work or study, it offers both space and flexibility. A bright sunroom fills the home with natural light, while two separate offices give future owners room to design their lifestyle. The layout flows from living to dining to kitchen in a way that's easy-to-live in and reimagine. Bedrooms are ample, and the two full bathrooms make it a solid candidate for family use or a creative renovation. Whether you imagine refreshed finishes, updated systems, or full creative redesign, this home has great bones and plenty of volume for someone ready to roll up their sleeves. Nestled in Greeley near schools, parks, and city amenities, it's well-positioned for both long-term value and turnaround potential. This is the kind of property where the right vision can unlock real reward.There is an additional

Listing Office: LPT Realty, LLC.

Essential Information

  • MLS® #IR1046286
  • Price$345,000
  • Bedrooms4
  • Bathrooms2.00
  • Full Baths2
  • Square Footage2,301
  • Acres0.19
  • Year Built1958
  • TypeResidential
  • Sub-TypeSingle Family Residence
  • StatusPending

Community Information

  • Address2238 11th Street
  • SubdivisionMaplewood 2nd Add
  • CityGreeley
  • CountyWeld
  • StateCO
  • Zip Code80631

Amenities

  • Parking Spaces2
  • # of Garages2

Utilities

Electricity Available, Natural Gas Available

Interior

  • HeatingForced Air
  • CoolingCentral Air
  • StoriesOne

Appliances

Dishwasher, Microwave, Oven, Refrigerator

Exterior

  • RoofComposition

School Information

  • DistrictGreeley 6
  • ElementaryMaplewood
  • MiddleHeath
  • HighGreeley Central

Additional Information

  • Date ListedOctober 24th, 2025
  • ZoningRES

Listing Details

  • LPT Realty, LLC.
Please provide a valid email address.

Terms and Conditions: The content relating to real estate for sale in this Web site comes in part from the Internet Data eXchange ("IDX") program of METROLIST, INC., DBA RECOLORADO® Real estate listings held by brokers other than RE/MAX Professionals are marked with the IDX Logo. This information is being provided for the consumers personal, non-commercial use and may not be used for any other purpose. All information subject to change and should be independently verified.

Copyright 2026 METROLIST, INC., DBA RECOLORADO® -- All Rights Reserved 6455 S. Yosemite St., Suite 500 Greenwood Village, CO 80111 USA

Listing information last updated on January 25th, 2026 at 10:03am MST.