Connect

30 Birch Avenue, Eaton, CO – $479,000

  • 4 Beds
  • 3 Baths
  • 2,542 Sqft
  • .21 Acres
  • 4 Beds
  • 3 Baths
  • 2,542 Sqft
  • .21 Acres

New Search X

30 Birch Avenue

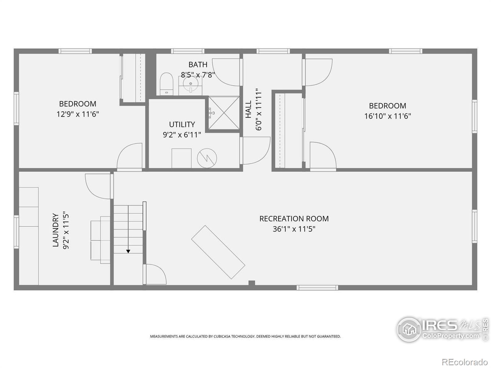
PRIDE IN OWNERSHIP! This classic brick ranch home in the heart of Eaton is fully remodeled and move-in ready! Walkable to Eaton schools. NO HOA! NEW Driveway. NEW backyard patio concrete. NEWER roof and gutters. Upgraded electrical and added can lighting throughout both floors. New Quartz countertops, fresh cabinets, sink, backsplash, and stainless steel appliances with this breakfast serve style window kitchen! Barstool seating option at breakfast serve kitchen island. LARGE pantry space. Turn the upper office space into a LARGER dining room. 2 Dining room option! Second living room or sunroom possibility off the back of the home. OVERSIZED 2 car garage with tall ceilings for storage room! NEW WOOD front door and barn doors. Newer upstairs windows! Enjoy a new main-floor primary suite with tile shower and walk-in closet. COVERED Patio (with gas line for grill), plus an extra carport and alley access. Wainscot ceiling basement. Tile laundry with folding area. Shed included. Modern comfort meets timeless charm-don't miss it!

Listing Office: Realty One Group Fourpoints CO

Essential Information

  • MLS® #IR1046656
  • Price$479,000
  • Bedrooms4
  • Bathrooms3.00
  • Full Baths3
  • Square Footage2,542
  • Acres0.21
  • Year Built1960
  • TypeResidential
  • Sub-TypeSingle Family Residence
  • StatusActive

Community Information

  • Address30 Birch Avenue
  • SubdivisionMountain View Add 3rd
  • CityEaton
  • CountyWeld
  • StateCO
  • Zip Code80615

Amenities

  • Parking Spaces2
  • ParkingOversized
  • # of Garages2
  • ViewCity

Utilities

Cable Available, Electricity Available, Internet Access (Wired), Natural Gas Available

Interior

  • HeatingForced Air
  • CoolingCeiling Fan(s), Central Air
  • StoriesOne

Interior Features

Eat-in Kitchen, Five Piece Bath, Kitchen Island, Open Floorplan, Walk-In Closet(s)

Appliances

Dishwasher, Disposal, Humidifier, Microwave, Oven, Refrigerator

Exterior

  • Lot DescriptionLevel, Sprinklers In Front
  • RoofComposition

Windows

Bay Window(s), Window Coverings

School Information

  • DistrictEaton RE-2
  • ElementaryEaton
  • MiddleOther
  • HighEaton

Additional Information

  • Date ListedOctober 31st, 2025
  • ZoningRES/INCOME

Listing Details

  • Realty One Group Fourpoints CO
Please provide a valid email address.

Terms and Conditions: The content relating to real estate for sale in this Web site comes in part from the Internet Data eXchange ("IDX") program of METROLIST, INC., DBA RECOLORADO® Real estate listings held by brokers other than RE/MAX Professionals are marked with the IDX Logo. This information is being provided for the consumers personal, non-commercial use and may not be used for any other purpose. All information subject to change and should be independently verified.

Copyright 2025 METROLIST, INC., DBA RECOLORADO® -- All Rights Reserved 6455 S. Yosemite St., Suite 500 Greenwood Village, CO 80111 USA

Listing information last updated on November 5th, 2025 at 1:18am MST.