Connect

1245 Norwood Avenue 42, Boulder, CO – $749,000

  • 3 Beds
  • 3 Baths
  • 1,488 Sqft
  • 2.76 Acres
  • 3 Beds
  • 3 Baths
  • 1,488 Sqft
  • 2.76 Acres

New Search X

1245 Norwood Avenue 42

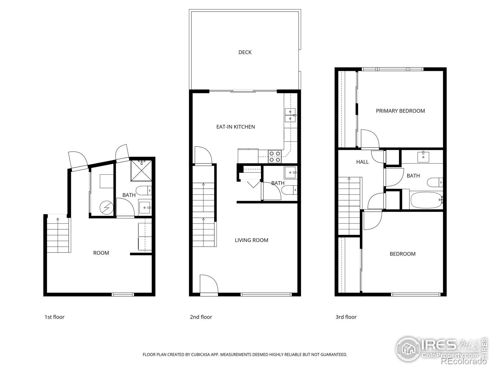
Don't miss this rare opportunity to own a spacious, beautifully updated, turnkey 3-bedroom, 3-bathroom townhome in highly desirable North Boulder-where short-term rentals and pets are allowed. Located just minutes from Wonderland Lake and everything that makes Boulder exceptional, this home offers the perfect blend of lifestyle and investment potential. With Boulder set to host the Sundance Film Festival, this property is ideally positioned for full-time living with the flexibility to rent during Sundance, Boulder Bolder, CU Football Season and any other time. Step outside your door to enjoy gorgeous trails, Lucky's Market and Bakehouse, top-rated schools, and convenient bus access-all on one of Boulder's most coveted streets, Norwood Avenue. The main level features a bright, open floor plan with stunning solid wood floors, a generous living room filled with southwest light, a convenient powder bath, and an expansive kitchen designed for cooking, gathering, and entertaining. A large sliding door opens to a private, fenced back deck-perfect for al fresco dining or soaking up Boulder's 300 days of sunshine. Upstairs, two light-filled bedrooms offer ample closet space and large windows with views of mature trees and hints of the mountains, complemented by an elegant full bathroom. New central air conditioning was installed in 2023, with an additional wall unit in the primary bedroom for enhanced comfort on warm summer nights. The lower level provides a spacious flex area ideal for a home office, gym, or additional living space, along with a separate bedroom, an updated 3/4 bath with dual access, and a laundry area featuring a new washer, dryer, and storage cabinetry. Additional highlights include easy attic access with abundant storage, two reserved parking spaces, a reasonable HOA, and the rare allowance of short-term rentals. Move-in ready and beautifully maintained, this exceptional townhome offers the very best of the Boulder lifestyle.

Listing Office: Compass - Boulder

Essential Information

  • MLS® #IR1047353
  • Price$749,000
  • Bedrooms3
  • Bathrooms3.00
  • Full Baths1
  • Half Baths1
  • Square Footage1,488
  • Acres2.76
  • Year Built1971
  • TypeResidential
  • Sub-TypeCondominium
  • StyleContemporary
  • StatusActive

Community Information

  • Address1245 Norwood Avenue 42
  • SubdivisionAppleridge Park Condos
  • CityBoulder
  • CountyBoulder
  • StateCO
  • Zip Code80304

Amenities

  • AmenitiesPark
  • Parking Spaces2
  • ViewMountain(s)

Utilities

Cable Available, Electricity Available, Internet Access (Wired), Natural Gas Available

Interior

  • HeatingForced Air
  • CoolingCentral Air
  • StoriesTwo

Appliances

Dishwasher, Disposal, Dryer, Microwave, Oven, Refrigerator, Washer

Exterior

  • WindowsWindow Coverings
  • RoofComposition

School Information

  • DistrictBoulder Valley RE 2
  • ElementaryCrest View
  • MiddleCentennial
  • HighBoulder

Additional Information

  • Date ListedNovember 20th, 2025
  • ZoningXBO

Listing Details

  • Compass - Boulder
Please provide a valid email address.

Terms and Conditions: The content relating to real estate for sale in this Web site comes in part from the Internet Data eXchange ("IDX") program of METROLIST, INC., DBA RECOLORADO® Real estate listings held by brokers other than RE/MAX Professionals are marked with the IDX Logo. This information is being provided for the consumers personal, non-commercial use and may not be used for any other purpose. All information subject to change and should be independently verified.

Copyright 2026 METROLIST, INC., DBA RECOLORADO® -- All Rights Reserved 6455 S. Yosemite St., Suite 500 Greenwood Village, CO 80111 USA

Listing information last updated on January 27th, 2026 at 2:03pm MST.