Connect

12136 Newport Drive, Brighton, CO – $425,000

  • 3 Beds
  • 2 Baths
  • 1,027 Sqft
  • .09 Acres
  • 3 Beds
  • 2 Baths
  • 1,027 Sqft
  • .09 Acres

New Search X

12136 Newport Drive

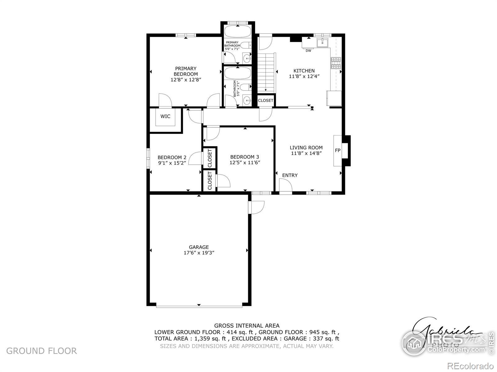
Coming Soon - Welcome to this charming brick ranch that nails the easy, main floor living so many buyers are after. Inside, the warm, open layout draws you right in - complete with a cozy fireplace, great natural light, and an inviting kitchen featuring newer appliances that make everyday life run smoothly. The primary bedroom includes its own en-suite full bath for a true private retreat, while two additional bedrooms and a second full bath keep the layout flexible for guests, family, or a home office setup. A huge bonus is the unfinished basement, offering tons of storage space now and great potential for future expansion. Major upgrades are already handled with a new roof in 2024, plus a newer furnace and A/C installed in 2024, giving you peace of mind from day one. The fenced backyard provides room to unwind, garden, or let pets roam, and the attached 2-car garage adds everyday convenience. Priced at $425,000, this is an exceptional value in today's market, made even better with the option of a rate buy-down or potential closing cost help when using our preferred lender. A solid, comfortable home with smart updates and a price that's tough to beat.

Listing Office: Rhino Realty Pros

Essential Information

  • MLS® #IR1047469
  • Price$425,000
  • Bedrooms3
  • Bathrooms2.00
  • Full Baths2
  • Square Footage1,027
  • Acres0.09
  • Year Built1993
  • TypeResidential
  • Sub-TypeSingle Family Residence
  • StatusActive

Community Information

  • Address12136 Newport Drive
  • SubdivisionHolly Crossing Filing 4
  • CityBrighton
  • CountyAdams
  • StateCO
  • Zip Code80602

Amenities

  • Parking Spaces2
  • # of Garages2

Utilities

Cable Available, Electricity Available, Natural Gas Available

Interior

  • HeatingForced Air
  • CoolingCeiling Fan(s), Central Air
  • FireplaceYes
  • FireplacesGas
  • StoriesOne

Appliances

Dishwasher, Disposal, Dryer, Microwave, Oven, Refrigerator, Washer

Exterior

  • WindowsWindow Coverings
  • RoofComposition

School Information

  • DistrictAdams 12 5 Star Schl
  • ElementaryGlacier Peak
  • MiddleShadow Ridge
  • HighHorizon

Additional Information

  • Date ListedNovember 20th, 2025
  • ZoningP-U-D

Listing Details

  • Rhino Realty Pros
Please provide a valid email address.

Terms and Conditions: The content relating to real estate for sale in this Web site comes in part from the Internet Data eXchange ("IDX") program of METROLIST, INC., DBA RECOLORADO® Real estate listings held by brokers other than RE/MAX Professionals are marked with the IDX Logo. This information is being provided for the consumers personal, non-commercial use and may not be used for any other purpose. All information subject to change and should be independently verified.

Copyright 2025 METROLIST, INC., DBA RECOLORADO® -- All Rights Reserved 6455 S. Yosemite St., Suite 500 Greenwood Village, CO 80111 USA

Listing information last updated on November 30th, 2025 at 4:33am MST.