Connect

1420 Falcon Ridge Road, Eaton, CO – $669,000

  • 4 Beds
  • 3 Baths
  • 3,589 Sqft
  • .27 Acres
  • 4 Beds
  • 3 Baths
  • 3,589 Sqft
  • .27 Acres

New Search X

1420 Falcon Ridge Road

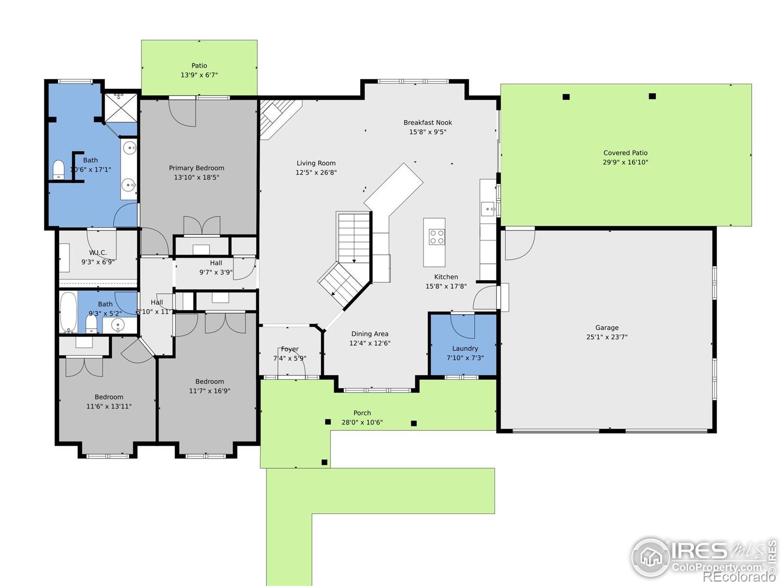
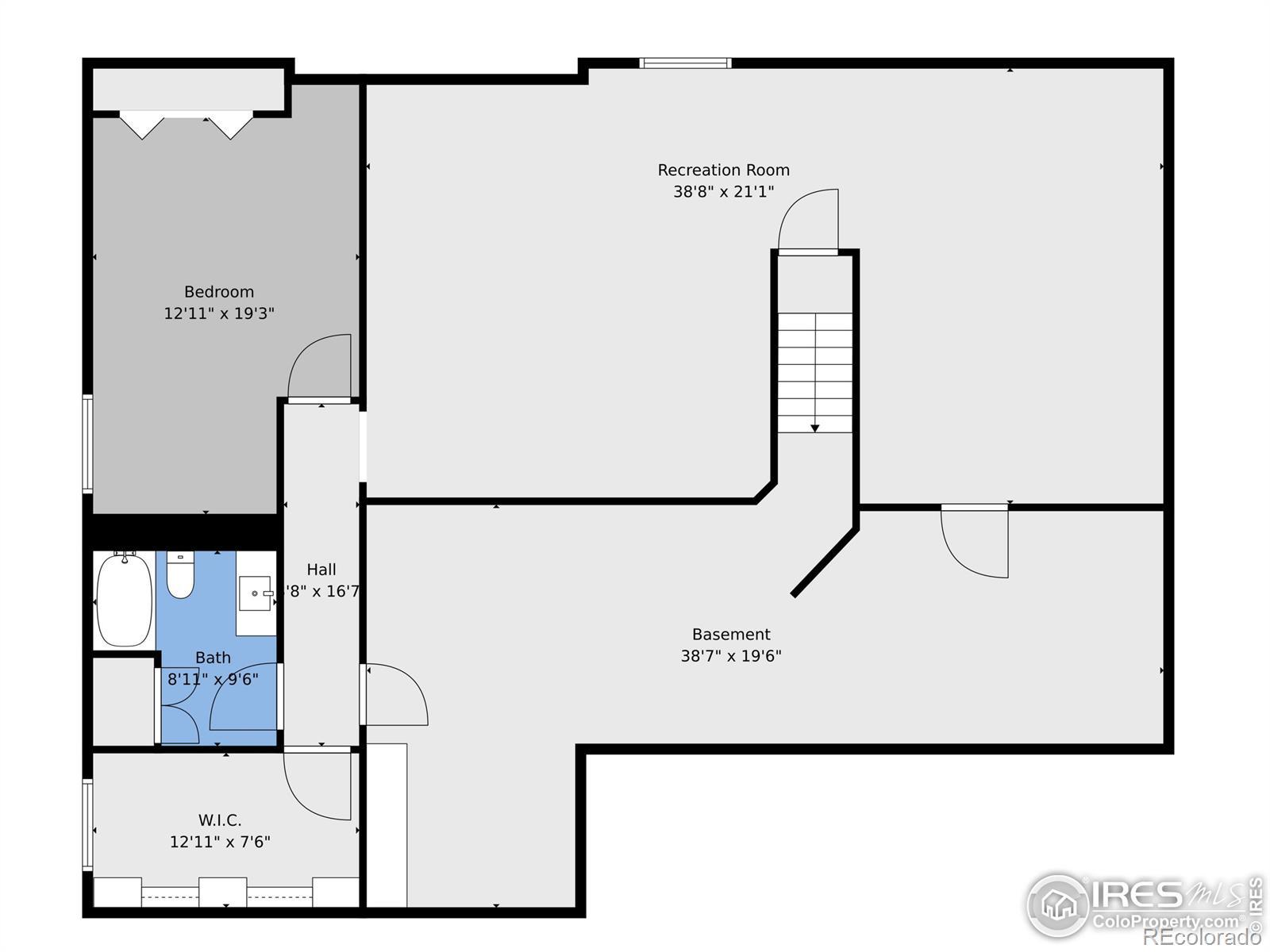
Sprawling brick ranch in the highly coveted Hawkstone Subdivision! This bright and open home features vaulted ceilings and over 2,100 sq ft on the main level, offering 3 bedrooms, 2 baths, laundry, a spacious kitchen with island, updated stainless appliances, granite counters, and an inviting living room with gas fireplace. Enjoy both an eat-in kitchen and formal dining area. The large primary suite includes dual closets, an updated bath, and access to a private patio. The finished basement expands the living space with two generous rec/family rooms, a bedroom and bath, an office/non-conforming 5th bedroom, plus a huge storage room with second laundry and workshop. The oversized heated garage with water line adds even more convenience. Recent updates include a newer furnace, A/C, roof, and tankless water heater with re-circ pump. The backyard is an entertainer's dream with a covered patio, fenced yard, mature landscaping and direct access to the walking path. Hawkstone is a true golf cart community with access to Eaton Country Club, pool, parks, and trails. This home has it all-schedule your private tour today!

Listing Office: NextHome Foundations

Essential Information

  • MLS® #IR1047914
  • Price$669,000
  • Bedrooms4
  • Bathrooms3.00
  • Full Baths1
  • Square Footage3,589
  • Acres0.27
  • Year Built1996
  • TypeResidential
  • Sub-TypeSingle Family Residence
  • StatusActive

Community Information

  • Address1420 Falcon Ridge Road
  • SubdivisionHawkstone
  • CityEaton
  • CountyWeld
  • StateCO
  • Zip Code80615

Amenities

  • Parking Spaces2
  • ParkingOversized
  • # of Garages2

Amenities

Clubhouse, Park, Pool, Trail(s)

Utilities

Electricity Available, Natural Gas Available

Interior

  • HeatingForced Air
  • CoolingCentral Air
  • FireplaceYes
  • FireplacesGas
  • StoriesOne

Interior Features

Central Vacuum, Eat-in Kitchen, Kitchen Island, Open Floorplan, Vaulted Ceiling(s), Walk-In Closet(s)

Appliances

Dishwasher, Microwave, Oven, Refrigerator

Exterior

  • WindowsWindow Coverings
  • RoofComposition

Lot Description

Cul-De-Sac, Sprinklers In Front

School Information

  • DistrictEaton RE-2
  • ElementaryEaton
  • MiddleEaton
  • HighEaton

Additional Information

  • Date ListedNovember 30th, 2025
  • ZoningR-L

Listing Details

  • NextHome Foundations
Please provide a valid email address.

Terms and Conditions: The content relating to real estate for sale in this Web site comes in part from the Internet Data eXchange ("IDX") program of METROLIST, INC., DBA RECOLORADO® Real estate listings held by brokers other than RE/MAX Professionals are marked with the IDX Logo. This information is being provided for the consumers personal, non-commercial use and may not be used for any other purpose. All information subject to change and should be independently verified.

Copyright 2025 METROLIST, INC., DBA RECOLORADO® -- All Rights Reserved 6455 S. Yosemite St., Suite 500 Greenwood Village, CO 80111 USA

Listing information last updated on December 31st, 2025 at 5:33pm MST.