Connect

722 Cherry Street, Fort Collins, CO – $1,250,000

  • 4 Beds
  • 4 Baths
  • 2,859 Sqft
  • .09 Acres
  • 4 Beds
  • 4 Baths
  • 2,859 Sqft
  • .09 Acres

New Search X

722 Cherry Street

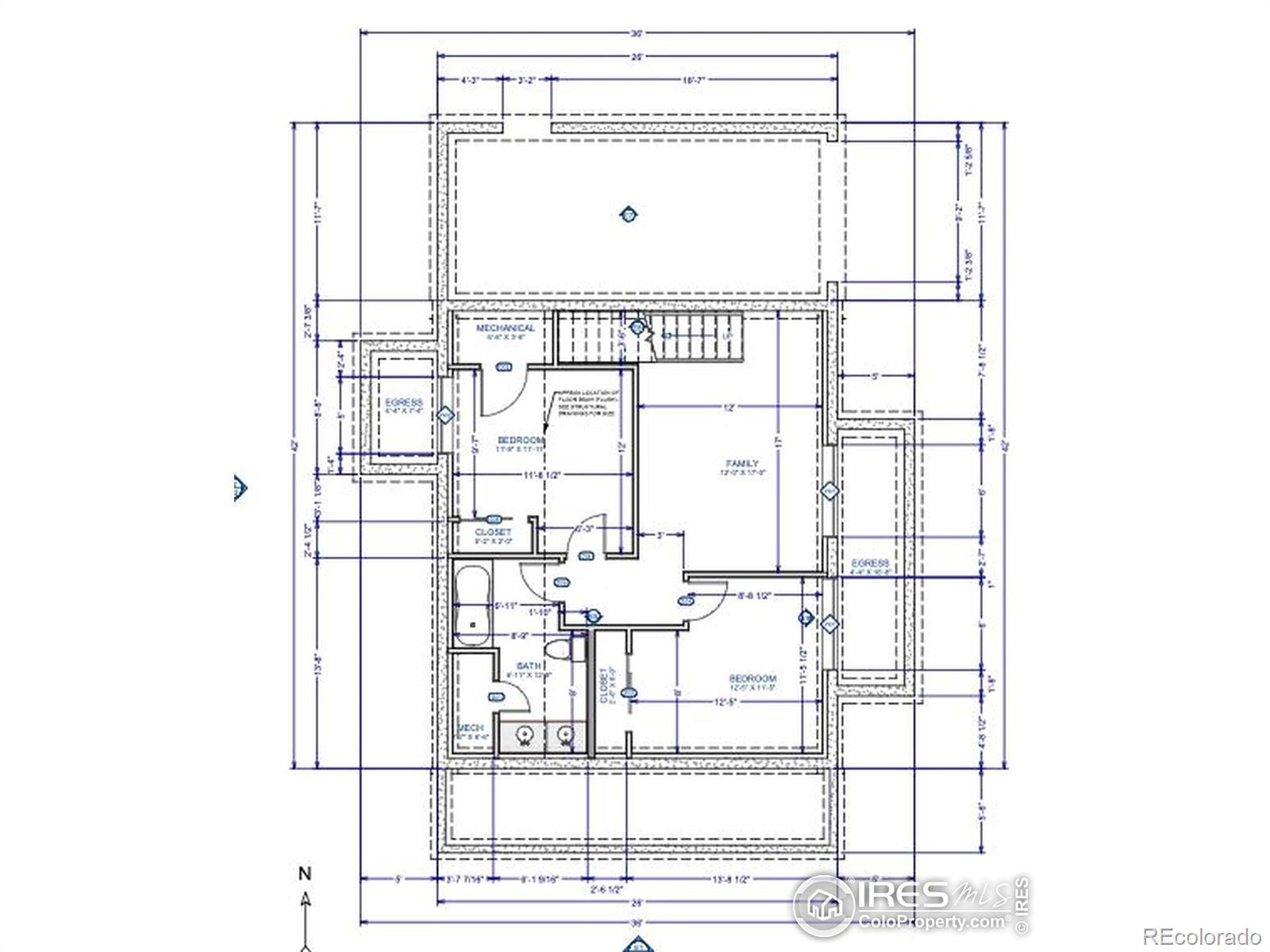
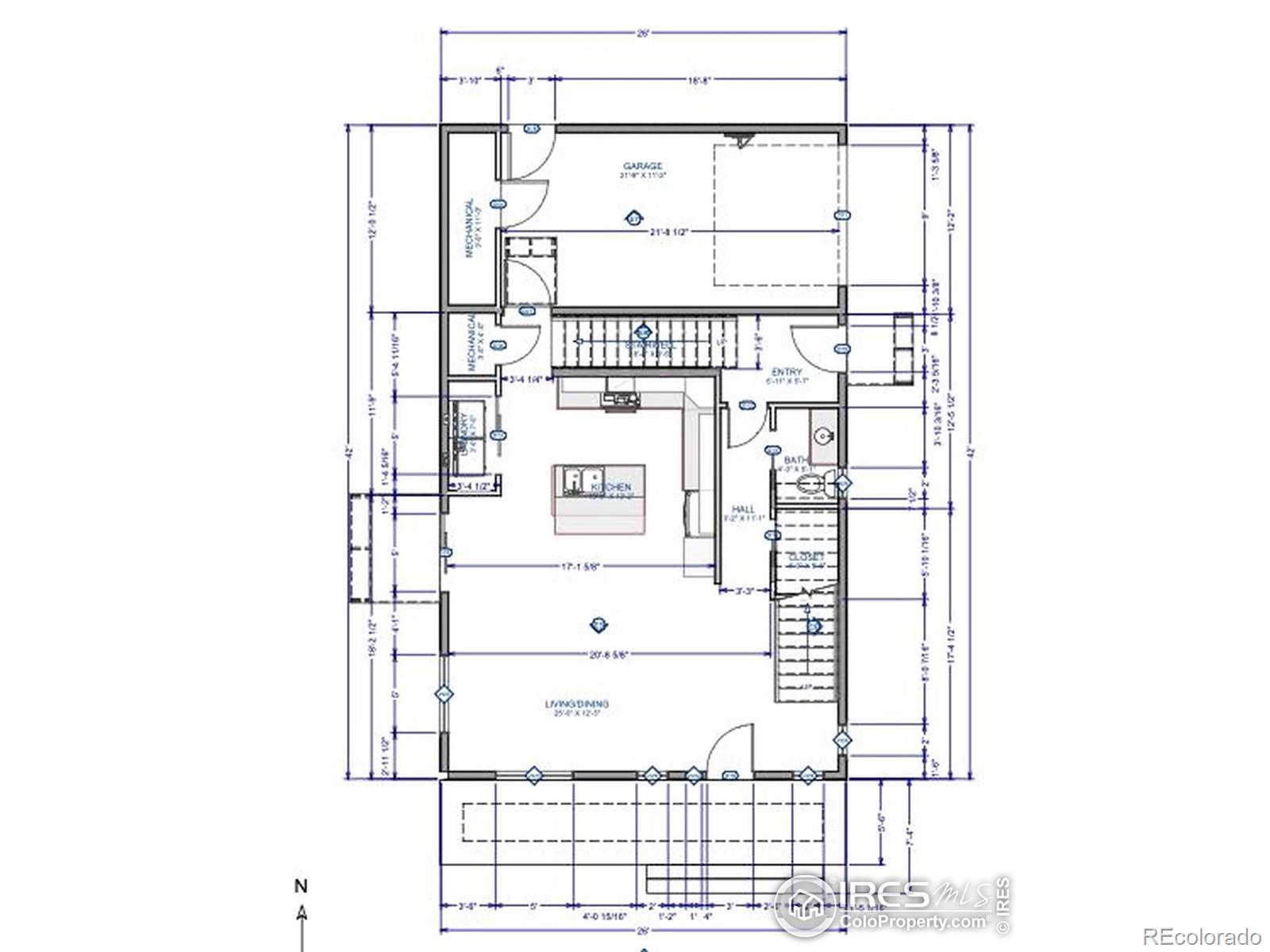
Ready to Build! This vacant lot is available for $350,000. Listed price on the MLS is the estimated cost to complete construction including tap and impact fees - estimates are available for review. Seller prefers to sell vacant lot and is willing to pass along the full set of construction plans, estimates, etc, with an acceptable offer. If you are excited to build new but overwhelmed by the upfront work and long timelines, this property is a great solution. 722 Cherry Street is your turnkey solution. This rare Old Town Fort Collins opportunity comes with over $40,000 of pre-construction work already completed-including development review and zoning approvals, design and engineering plans, utility and grading plans, plus all survey, legal, and recording costs. All setbacks, parking/access, and variances are approved, allowing for a 2,800 sq ft two-story home with an attached private-entry in-law suite. The seller has also obtained utility and capital expansion fee estimates in addition to estimates to install water, sewer, and other utilities. With prime Cherry Street frontage, alley access, and placement in the primary short-term rental zone, the property offers exceptional flexibility. The seller's extensive due diligence will save you 18 months of development review, and you could be picking out finishings and getting ready to move in, in as little as 6-9 months. Step into a streamlined path to building your dream home in one of Fort Collins' most coveted neighborhoods. Don't miss out on generating an estimated $45,000/year in income by short-term renting the separate suite over the garage. This property is build ready with over $40,000 in pre-construction work completed. Build estimates available upon request. This property has a full set of consttruction plans available, both for a single story and a 2-story home.

Listing Office: The Crisafulli Group

Essential Information

  • MLS® #IR1048455
  • Price$1,250,000
  • Bedrooms4
  • Bathrooms4.00
  • Full Baths2
  • Half Baths1
  • Square Footage2,859
  • Acres0.09
  • Year Built2026
  • TypeResidential
  • Sub-TypeSingle Family Residence
  • StatusActive

Community Information

  • Address722 Cherry Street
  • SubdivisionLongstein Sub
  • CityFort Collins
  • CountyLarimer
  • StateCO
  • Zip Code80521

Amenities

  • Parking Spaces1
  • # of Garages1

Utilities

Cable Available, Electricity Available, Internet Access (Wired), Natural Gas Available

Interior

  • Interior FeaturesFive Piece Bath
  • HeatingForced Air
  • CoolingCentral Air
  • StoriesTwo

Exterior

  • RoofComposition

School Information

  • DistrictPoudre R-1
  • ElementaryPutnam
  • MiddleLincoln
  • HighPoudre

Additional Information

  • Date ListedDecember 13th, 2025
  • ZoningOT-B

Listing Details

  • The Crisafulli Group
Please provide a valid email address.

Terms and Conditions: The content relating to real estate for sale in this Web site comes in part from the Internet Data eXchange ("IDX") program of METROLIST, INC., DBA RECOLORADO® Real estate listings held by brokers other than RE/MAX Professionals are marked with the IDX Logo. This information is being provided for the consumers personal, non-commercial use and may not be used for any other purpose. All information subject to change and should be independently verified.

Copyright 2026 METROLIST, INC., DBA RECOLORADO® -- All Rights Reserved 6455 S. Yosemite St., Suite 500 Greenwood Village, CO 80111 USA

Listing information last updated on February 2nd, 2026 at 10:33pm MST.