Connect

1201 Juniper Court, Fort Collins, CO – $1,575,000

  • 5 Beds
  • 5 Baths
  • 3,680 Sqft
  • .18 Acres
  • 5 Beds
  • 5 Baths
  • 3,680 Sqft
  • .18 Acres

New Search X

1201 Juniper Court

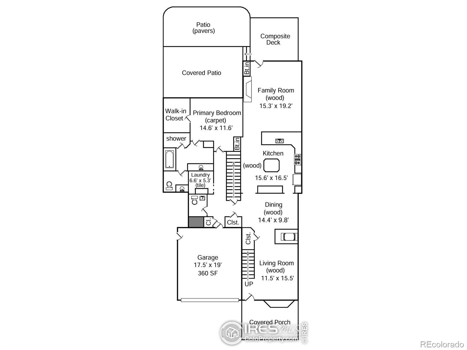
Nestled in the coveted heart of Old Town Fort Collins, 1201 Juniper Ct is where timeless craftsman charm meets modern sophistication. Originally constructed in 1998 and thoughtfully renovated in 2021, this stunning home offers a seamless blend of classic design and contemporary comforts.Approaching the front door, you'll notice the large, charming covered brick front porch. With 5 bedrooms and 5 bathrooms, every inch of this home is designed for effortless living. On the main floor, you'll find a spacious primary ensuite bedroom-a private haven with all the modern luxuries you could ask for. The chef's kitchen is the centerpiece of the home, featuring a commercial gas range, professional-grade range hood, stainless steel appliances, and a central island that's as perfect for culinary creations as it is for gathering with friends. Two cozy gas fireplaces anchor the living spaces, while a convenient powder room and laundry room round out the main level.Head upstairs to discover three generously sized bedrooms and two beautifully updated bathrooms, offering ample room for family, guests, or a blend of both. The finished basement provides even more versatility, with a bedroom and bathroom that could serve as a private guest suite, home office, or recreation area.Step outside into your personal backyard retreat. With a deck for entertaining and lush landscaping that invites relaxation, this outdoor space is a true extension of the home. The attached two-car garage offers convenience without compromising the home's impeccable curb appeal.Located in the vibrant community of Old Town Fort Collins, this property is just moments from charming boutiques, award-winning restaurants, and the area's iconic breweries. With its blend of modern amenities, thoughtful design, and unbeatable location, 1201 Juniper Ct isn't just a house-it's the home where your next chapter begins. Don't miss your chance to make it yours.

Listing Office: Compass - Boulder

Essential Information

  • MLS® #IR1049259
  • Price$1,575,000
  • Bedrooms5
  • Bathrooms5.00
  • Full Baths3
  • Half Baths1
  • Square Footage3,680
  • Acres0.18
  • Year Built1998
  • TypeResidential
  • Sub-TypeSingle Family Residence
  • StatusActive

Community Information

  • Address1201 Juniper Court
  • SubdivisionMountain View
  • CityFort Collins
  • CountyLarimer
  • StateCO
  • Zip Code80521

Amenities

  • Parking Spaces2
  • # of Garages2

Utilities

Electricity Available, Internet Access (Wired), Natural Gas Available

Interior

  • HeatingForced Air
  • CoolingCeiling Fan(s), Central Air
  • FireplaceYes
  • StoriesTwo

Interior Features

Eat-in Kitchen, Five Piece Bath, Kitchen Island, Open Floorplan, Pantry, Primary Suite, Walk-In Closet(s)

Appliances

Bar Fridge, Dishwasher, Double Oven, Microwave, Oven, Refrigerator

Fireplaces

Family Room, Gas, Living Room, Other

Exterior

  • Lot DescriptionLevel, Sprinklers In Front
  • RoofComposition

Windows

Bay Window(s), Double Pane Windows

School Information

  • DistrictPoudre R-1
  • ElementaryPutnam
  • MiddleLincoln
  • HighPoudre

Additional Information

  • Date ListedJanuary 8th, 2026
  • ZoningRES

Listing Details

  • Compass - Boulder
Please provide a valid email address.

Terms and Conditions: The content relating to real estate for sale in this Web site comes in part from the Internet Data eXchange ("IDX") program of METROLIST, INC., DBA RECOLORADO® Real estate listings held by brokers other than RE/MAX Professionals are marked with the IDX Logo. This information is being provided for the consumers personal, non-commercial use and may not be used for any other purpose. All information subject to change and should be independently verified.

Copyright 2026 METROLIST, INC., DBA RECOLORADO® -- All Rights Reserved 6455 S. Yosemite St., Suite 500 Greenwood Village, CO 80111 USA

Listing information last updated on January 13th, 2026 at 5:18am MST.