Connect

8358 Howell Street B, Arvada, CO – $639,000

  • 3 Beds
  • 3 Baths
  • 1,928 Sqft
  • .06 Acres
  • 3 Beds
  • 3 Baths
  • 1,928 Sqft
  • .06 Acres

New Search X

8358 Howell Street B

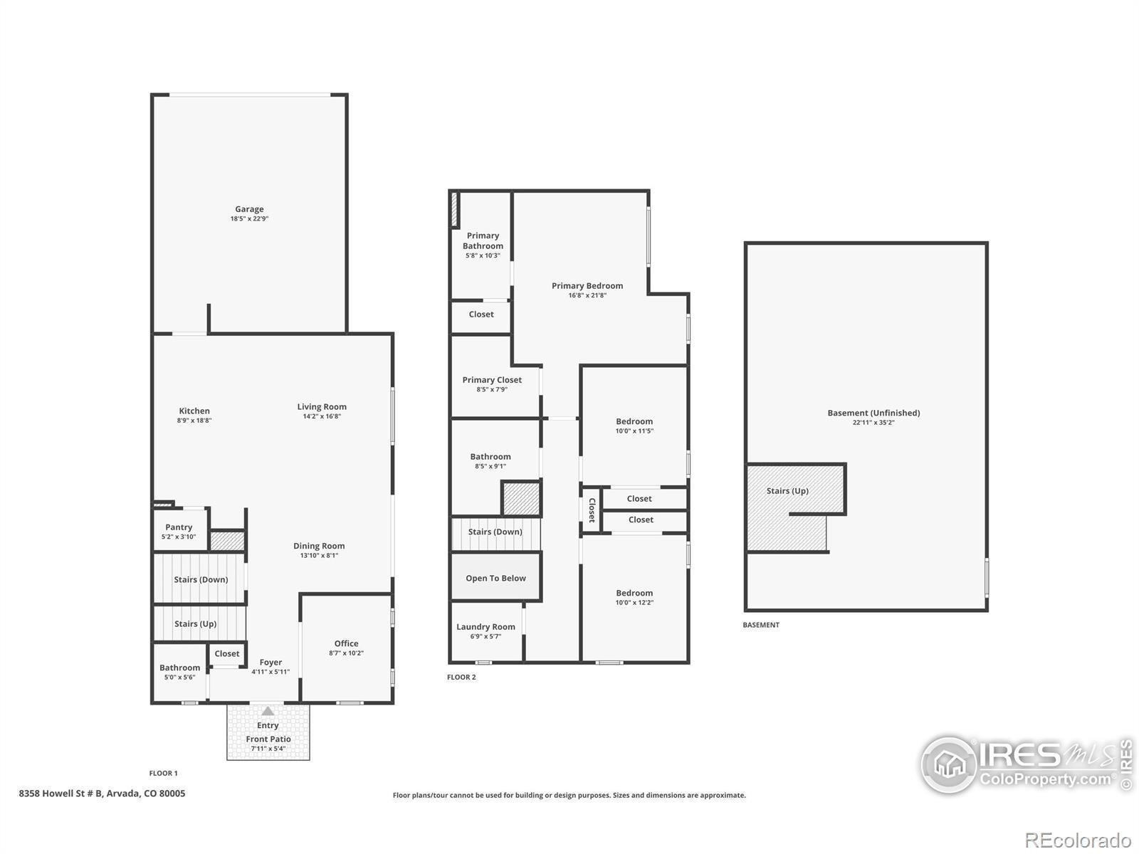
You've officially found the one! This modern townhome in the Village of Five Parks serves smart design, mountain views, and a lifestyle that actually lives well-steps from trails, parks, and neighborhood favorites. Built in 2022 by Meritage Homes, it still feels brand new (because it basically is), with luxury vinyl plank floors, designer lighting, and crisp plantation shutters setting the tone. The kitchen strikes the perfect balance of pretty and practical, featuring quartz countertops, white shaker cabinets with glass-front flair, stainless steel appliances, a breakfast bar, and-yes-a dedicated coffee station because priorities. Need a home office, reading nook, or escape-from-everyone room? The den with French doors has you covered. Downstairs, the unfinished basement is a blank canvas ready for your big ideas. Upstairs, the primary suite wakes up to mountain views and includes a walk-in closet and a spa-worthy ensuite with dual sinks and a generous walk-in shower. A secondary bath keeps the same clean, modern vibe. Outside, the low-maintenance turf yard is ideal for pets, play, or post-adventure lounging-and makes this home a true lock-and-leave dream. Four years young, zero compromises. Blink and it'll be gone-don't miss your shot to join the vibrant Village at Five Parks community!

Listing Office: 8z Real Estate

Essential Information

  • MLS® #IR1051003
  • Price$639,000
  • Bedrooms3
  • Bathrooms3.00
  • Full Baths1
  • Half Baths1
  • Square Footage1,928
  • Acres0.06
  • Year Built2022
  • TypeResidential
  • Sub-TypeTownhouse
  • StyleContemporary
  • StatusComing Soon

Community Information

  • Address8358 Howell Street B
  • SubdivisionVillage Of Five Parks Flg 6
  • CityArvada
  • CountyJefferson
  • StateCO
  • Zip Code80005

Amenities

  • Parking Spaces2
  • # of Garages2

Utilities

Electricity Available, Natural Gas Available

Interior

  • HeatingForced Air
  • CoolingCentral Air
  • StoriesTwo

Interior Features

Kitchen Island, Open Floorplan, Pantry, Walk-In Closet(s)

Appliances

Dishwasher, Disposal, Dryer, Microwave, Oven, Refrigerator, Washer

Exterior

  • WindowsWindow Coverings
  • RoofComposition
  • FoundationSlab

School Information

  • DistrictJefferson County R-1
  • ElementaryMeiklejohn
  • MiddleWayne Carle
  • HighRalston Valley

Additional Information

  • Date ListedFebruary 12th, 2026
  • ZoningRES

Listing Details

  • 8z Real Estate
Please provide a valid email address.

Terms and Conditions: The content relating to real estate for sale in this Web site comes in part from the Internet Data eXchange ("IDX") program of METROLIST, INC., DBA RECOLORADO® Real estate listings held by brokers other than RE/MAX Professionals are marked with the IDX Logo. This information is being provided for the consumers personal, non-commercial use and may not be used for any other purpose. All information subject to change and should be independently verified.

Copyright 2026 METROLIST, INC., DBA RECOLORADO® -- All Rights Reserved 6455 S. Yosemite St., Suite 500 Greenwood Village, CO 80111 USA

Listing information last updated on February 8th, 2026 at 6:48pm MST.