Connect

5213 Castle Ridge Place, Fort Collins, CO – $2,000,000

  • 4 Beds
  • 5 Baths
  • 5,687 Sqft
  • .57 Acres
  • 4 Beds
  • 5 Baths
  • 5,687 Sqft
  • .57 Acres

New Search X

5213 Castle Ridge Place

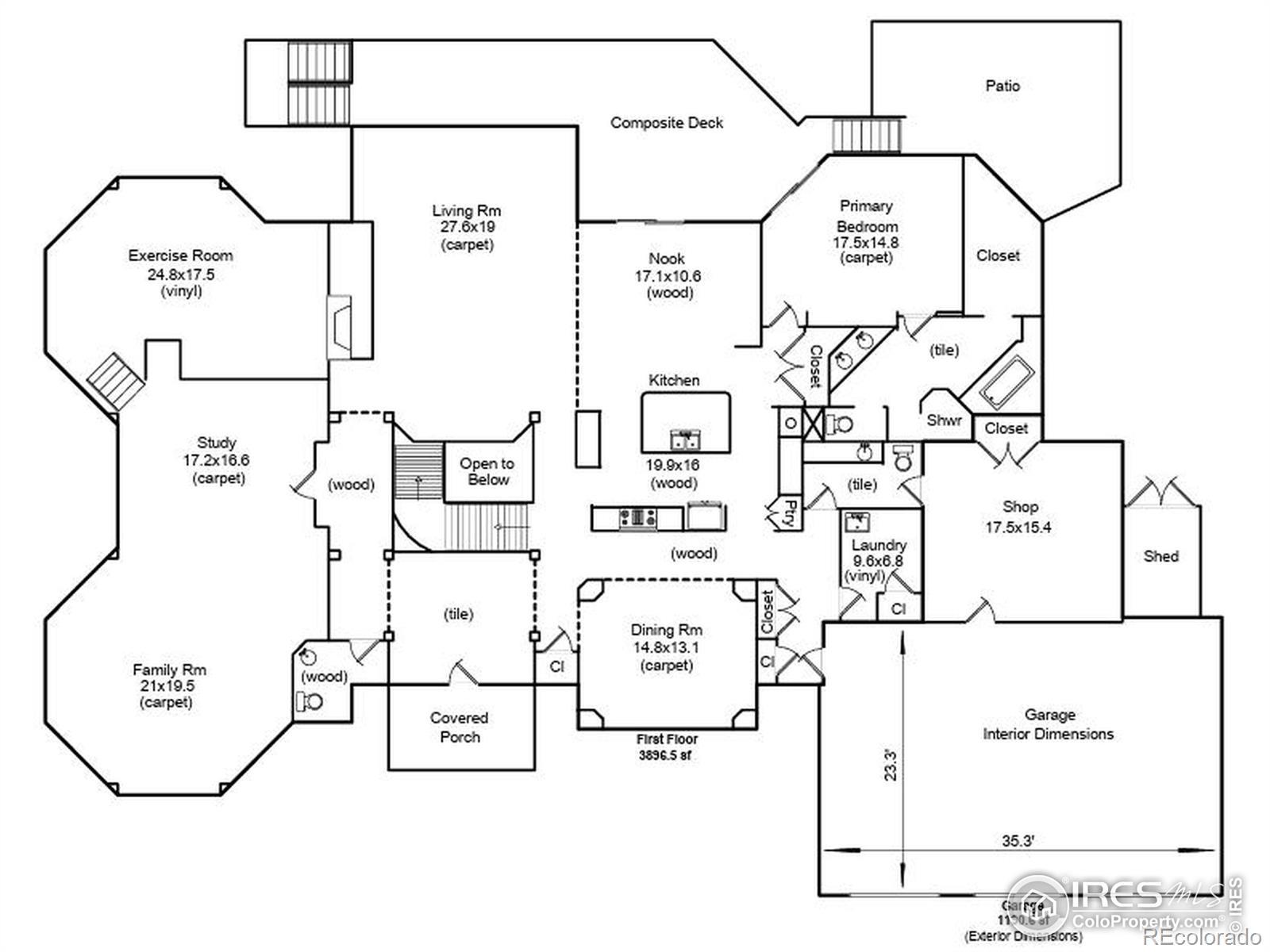
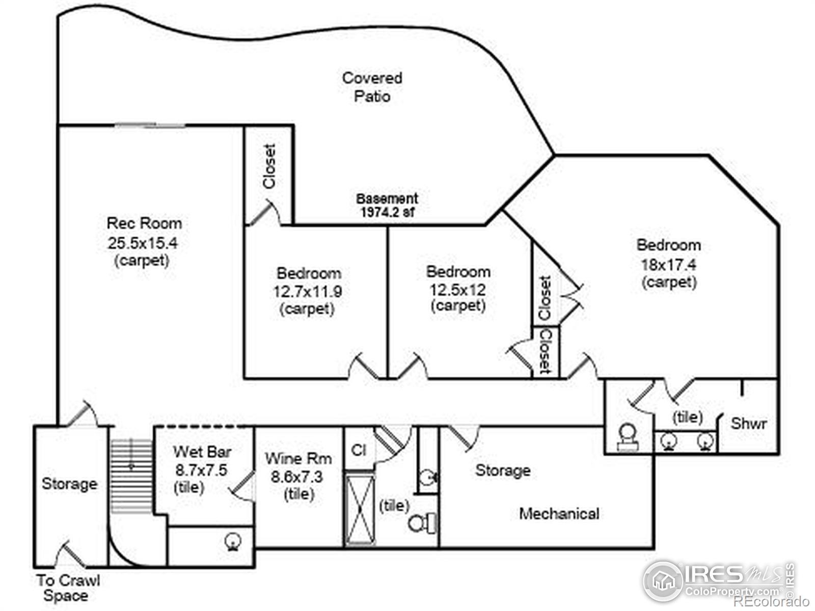
Discover this spectacular Miramont residence, perfectly positioned on a private cul-de-sac with stunning mountain views and direct access to neighborhood green space. Designed with both comfort and sophistication in mind, this home offers a spacious open floor plan filled with natural light, soaring ceilings, and high-end finishes throughout. The main floor features a luxurious primary retreat, complete with convenience of main-level laundry. A gourmet, upgraded kitchen anchors the heart of the home, ideal for both everyday living and entertaining, while multiple living spaces provide versatility and room to gather. The walkout lower level expands your lifestyle options with a brand-new wine cellar, wet bar, and generous entertaining space that flows seamlessly outdoors. Outdoor living shines here, with a huge back deck to take in the mountain views, a shaded patio, and mature landscaping that enhances privacy and beauty year-round. Car enthusiasts and hobbyists will appreciate the oversized three-car garage plus a large finished and heated shop. With thoughtful design, unique details, and a prime southeast Fort Collins location, this home balances luxury with livability. New Boiler, Humidifier, and AC & Air Handler, and newly refinished wood floors!

Listing Office: Group Mulberry

Essential Information

  • MLS® #IR1051060
  • Price$2,000,000
  • Bedrooms4
  • Bathrooms5.00
  • Full Baths1
  • Half Baths2
  • Square Footage5,687
  • Acres0.57
  • Year Built2001
  • TypeResidential
  • Sub-TypeSingle Family Residence
  • StatusActive

Community Information

  • Address5213 Castle Ridge Place
  • SubdivisionCastle Ridge At Miramont
  • CityFort Collins
  • CountyLarimer
  • StateCO
  • Zip Code80525

Amenities

  • Parking Spaces3
  • # of Garages3
  • ViewMountain(s)

Utilities

Cable Available, Electricity Available, Internet Access (Wired), Natural Gas Available

Parking

Heated Garage, Oversized, Oversized Door

Interior

  • HeatingBaseboard, Hot Water
  • CoolingCeiling Fan(s), Central Air
  • FireplaceYes
  • StoriesOne

Interior Features

Eat-in Kitchen, Five Piece Bath, Kitchen Island, Open Floorplan, Vaulted Ceiling(s)

Appliances

Dishwasher, Double Oven, Dryer, Microwave, Oven, Refrigerator, Washer

Fireplaces

Gas Log, Insert, Living Room, Other

Exterior

  • Exterior FeaturesGas Grill, Spa/Hot Tub
  • WindowsDouble Pane Windows
  • RoofConcrete

Lot Description

Cul-De-Sac, Sprinklers In Front

School Information

  • DistrictPoudre R-1
  • ElementaryWerner
  • MiddlePreston
  • HighFossil Ridge

Additional Information

  • Date ListedFebruary 6th, 2026
  • ZoningRL

Listing Details

  • Group Mulberry
Please provide a valid email address.

Terms and Conditions: The content relating to real estate for sale in this Web site comes in part from the Internet Data eXchange ("IDX") program of METROLIST, INC., DBA RECOLORADO® Real estate listings held by brokers other than RE/MAX Professionals are marked with the IDX Logo. This information is being provided for the consumers personal, non-commercial use and may not be used for any other purpose. All information subject to change and should be independently verified.

Copyright 2026 METROLIST, INC., DBA RECOLORADO® -- All Rights Reserved 6455 S. Yosemite St., Suite 500 Greenwood Village, CO 80111 USA

Listing information last updated on March 5th, 2026 at 10:33pm MST.